**Standout Features:**
- Large land plot of 1400m² with planning consent for a 3-bedroom dwelling
- Stunning panoramic views of farmland and the sea
- Modern design includes spacious open-plan living areas
- Air source heat pump for central heating
- Located in a quiet, rural area—ideal for families and remote workers
**Concerns:**
- Average mobile signal and slow broadband speeds
- Situated in an area classified as deprived, which may affect amenities
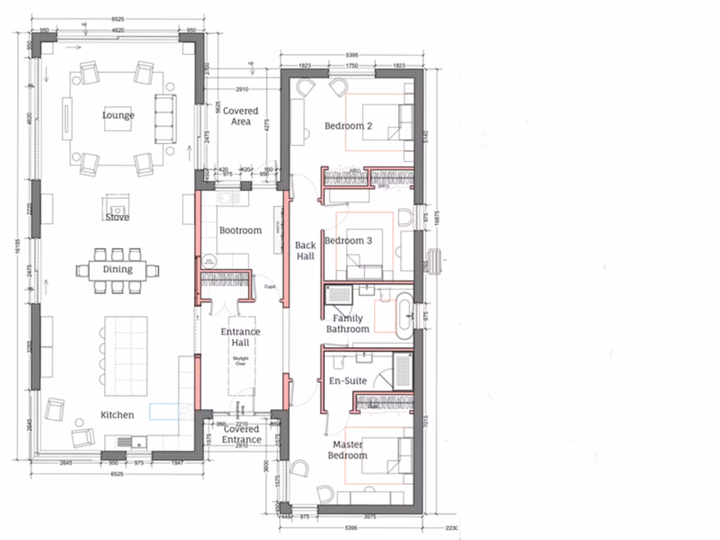
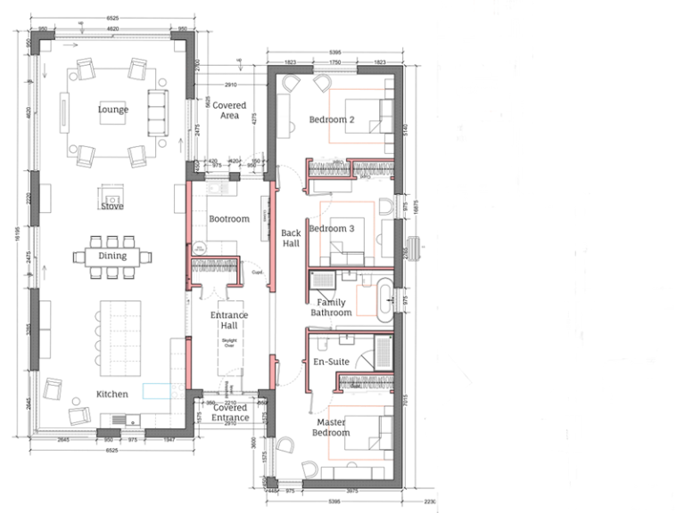
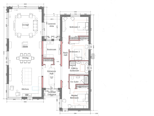
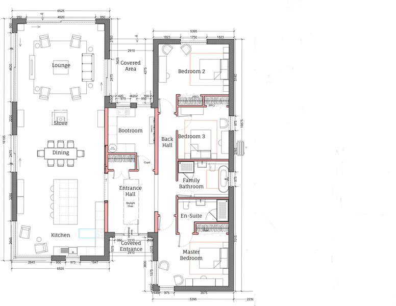
Experience the serenity of rural life with this expansive land plot in KW17 2SB, offering both the opportunity to build a beautiful modern bungalow and breathtaking views of nature. The planning consent (OIC Ref 24/002/PP) allows for a thoughtfully designed 3-bedroom home with ample space for family living, complete with a detached double garage. Enjoy an open plan layout that seamlessly integrates living and dining spaces, designed to capture the stunning landscape through large windows.
Located just two miles from Finstown and eight miles from Kirkwall, this property strikes an ideal balance between seclusion and accessibility. While the mobile and internet connectivity may be average, the tranquil environment is perfect for those seeking a peaceful retreat or investment potential in a growing community. With clear potential for future renovations and personal touches, don’t miss your chance to secure this versatile and promising land—opportunities like this are rare and won’t last long!
Land for sale in Building Site, The Paddock, Woodstock Road, Holm, KW17 — £75,000 • 1 bed • 1 bath • 23680 ft²
Plot for sale in Serviced Building Site Near Midtown, Herston, South Ronaldsay, KW17 — £50,000 • 1 bed • 1 bath • 13993 ft²
Land for sale in 2 Sites At Blinkbonny, Herston, South Ronaldsay, KW17 — £85,000 • 1 bed • 1 bath
Plot for sale in Building Site, Near Blinkbonny, Herston, KW17 — £50,000 • 1 bed • 1 bath • 16146 ft²
Plot for sale in Land at Carness Road, Orkney, Orkney Islands, KW15 — £65,000 • 1 bed • 1 bath
Plot for sale in Land Near Eastdam, St. Margarets Hope, Orkney, KW17 — £40,000 • 1 bed • 1 bath


























