Elevated plot with consent for family home and annexe near Kirkwall.
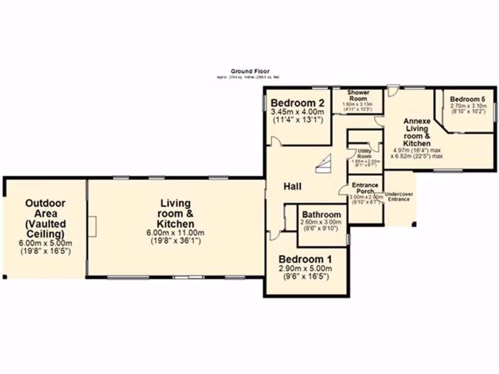
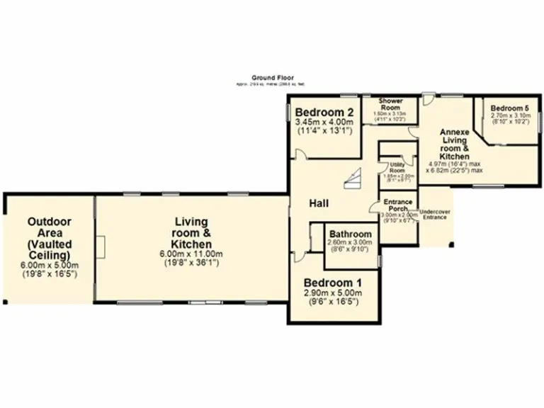
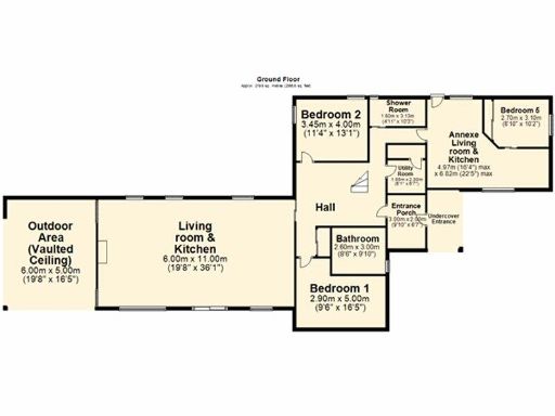
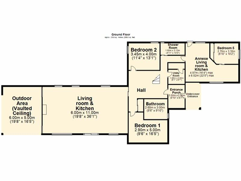
Planning consent for 4-bedroom house plus one-bedroom annexe (OIC Ref 23/151/PP)
Set on an elevated plot with sweeping views across islands and Scapa Flow, this building site benefits from full planning consent (OIC Ref 23/151/PP) for a spacious four-bedroom house with a one-bedroom annexe. The plot extends to approximately 2,200m² with mains electricity close by and mains water around 100m away, offering a clear path to build with modern services nearby.
The site sits about 8 miles from Kirkwall and roughly 3 miles from St Andrews Primary School, suitable for a family seeking a rural lifestyle within reach of town amenities. Fast broadband is available, supporting home working; mobile signal is average. The elevated position provides notable visual value—three lighthouses and multiple islands are visible from the plot.
Buyers should note practical considerations: the land is in a very deprived area and tenure is currently unknown, which may affect financing or grant eligibility. Mains water will require a short connection and there will be associated costs for bringing utilities fully to site. The rural location means services and amenities are limited and travel to Kirkwall is required for many everyday needs.
For families or investors wanting an island property with planning in place, this site offers strong development potential and attractive coastal views. The approved design includes an annexe, adding flexibility for multi-generational living or rental income, though buyers should factor in connection costs and check tenure and local planning conditions before purchase.
Land for sale in Building Site Near Hewing, Redland Road, Firth, KW17 — £85,000 • 1 bed • 1 bath • 15069 ft²
Land for sale in 6.6 Acres Of Development Land, Off New Scapa Road, KW15 — £1,500,000 • 1 bed • 1 bath
Land for sale in 2 Sites At Blinkbonny, Herston, South Ronaldsay, KW17 — £85,000 • 1 bed • 1 bath
Plot for sale in Serviced Building Site Near Midtown, Herston, South Ronaldsay, KW17 — £50,000 • 1 bed • 1 bath • 13993 ft²
Plot for sale in Land Near Eastdam, St. Margarets Hope, Orkney, KW17 — £40,000 • 1 bed • 1 bath
Plot for sale in Land at Carness Road, Orkney, Orkney Islands, KW15 — £65,000 • 1 bed • 1 bath






















