Large freehold plot with consent in affluent Scraptoft near good schools.
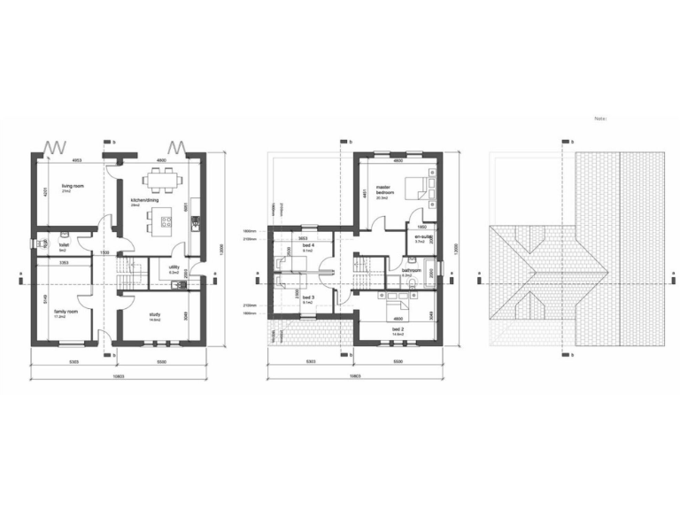
Full planning permission for circa 2,200 sq ft four-bedroom detached home
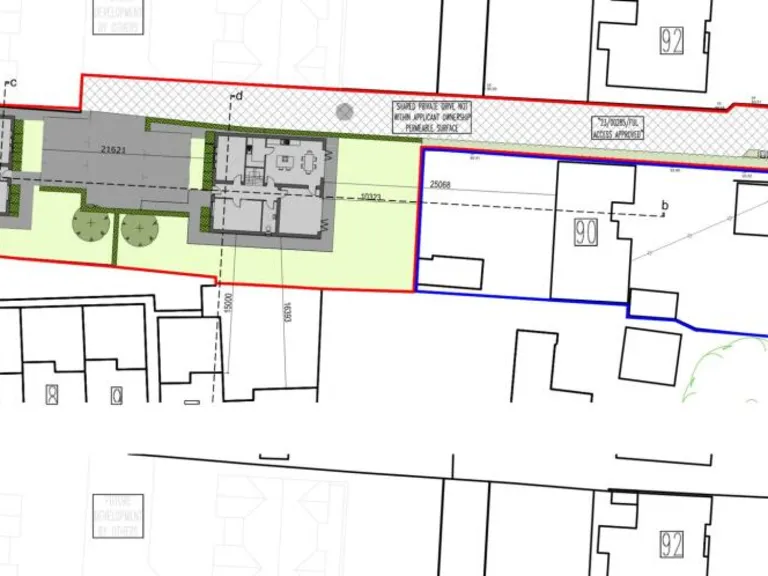
Set back from Station Lane on a private shared access road, this freehold development plot comes with full planning permission (Harborough Council ref: 25/00394/FUL) for a modern four-bedroom detached home of about 2,200 sq ft. The site suits a family seeking space and privacy in a very affluent part of Scraptoft, with fast broadband and excellent mobile signal for home working.
The current consent delivers generous accommodation across two storeys with scope to personalise or enlarge the design subject to further planning permission. Nearby schools have predominantly Good Ofsted ratings, and local services include regular bus links and leisure facilities, supporting everyday family life without long commutes.
Buyers should factor in the usual build considerations: construction costs, statutory connections, and any additional consents if you wish to change the approved scheme. The plot sits on a private shared access so there may be shared maintenance responsibilities for the drive. Council tax for the finished house is likely to be quite expensive.
Offered at £210,000, this is a rare opportunity to deliver a large, bespoke family home in a desirable location. The granted planning permission reduces some early-stage risk, but purchasers should commission their own site surveys and cost plan before exchange.
Land for sale in Station Lane, Scraptoft, LE7 — £250,000 • 1 bed • 1 bath • 3100 ft²
Land for sale in Station Lane, Scraptoft, LE7 — £275,000 • 1 bed • 1 bath • 17424 ft²
Land for sale in Station Lane, Scraptoft, LE7 — £525,000 • 1 bed • 1 bath • 17424 ft²
Land for sale in Development Opportunity - Leicester Road, Glen Parva, Leicester, LE2 — £749,000 • 4 bed • 1 bath • 1556 ft²
Land for sale in Harborough Road, Leicester, LE8 — £350,000 • 1 bed • 1 bath
Land for sale in Benscliffe Road, Markfield, LE67 — £1,250,000 • 1 bed • 1 bath • 8307 ft²


































