EX3 0LF - 4 bedroom terraced house for sale in Retreat Road, Topsham,…

View on Property Piper

4 bedroom terraced house for sale in Retreat Road, Topsham, EX3

Summary - 42 RETREAT ROAD TOPSHAM EXETER EX3 0LF

4 bed 2 bath Terraced

**Standout Features:**
- Charming Victorian mid-terrace house with bay windows
- Extended open-plan kitchen-diner with modern island and bi-fold doors
- Four spacious bedrooms, including a loft conversion with estuary views
- Two modern bathrooms
- Rear garden with slate patio and large garage
- Excellent location near Topsham's shops, restaurants, and parks
- Parking available

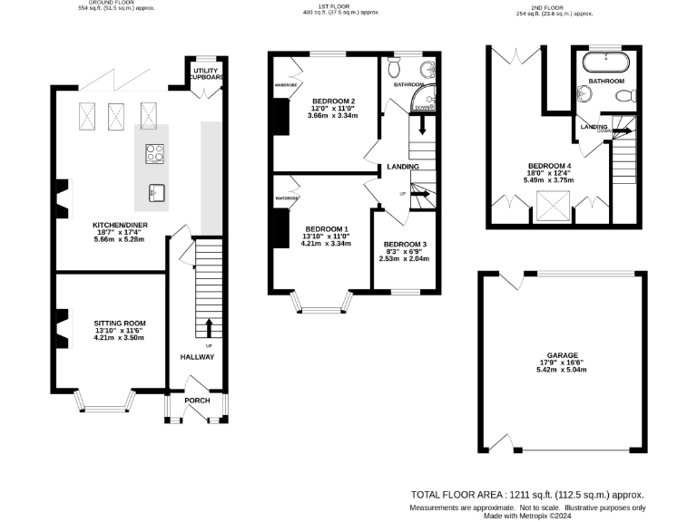
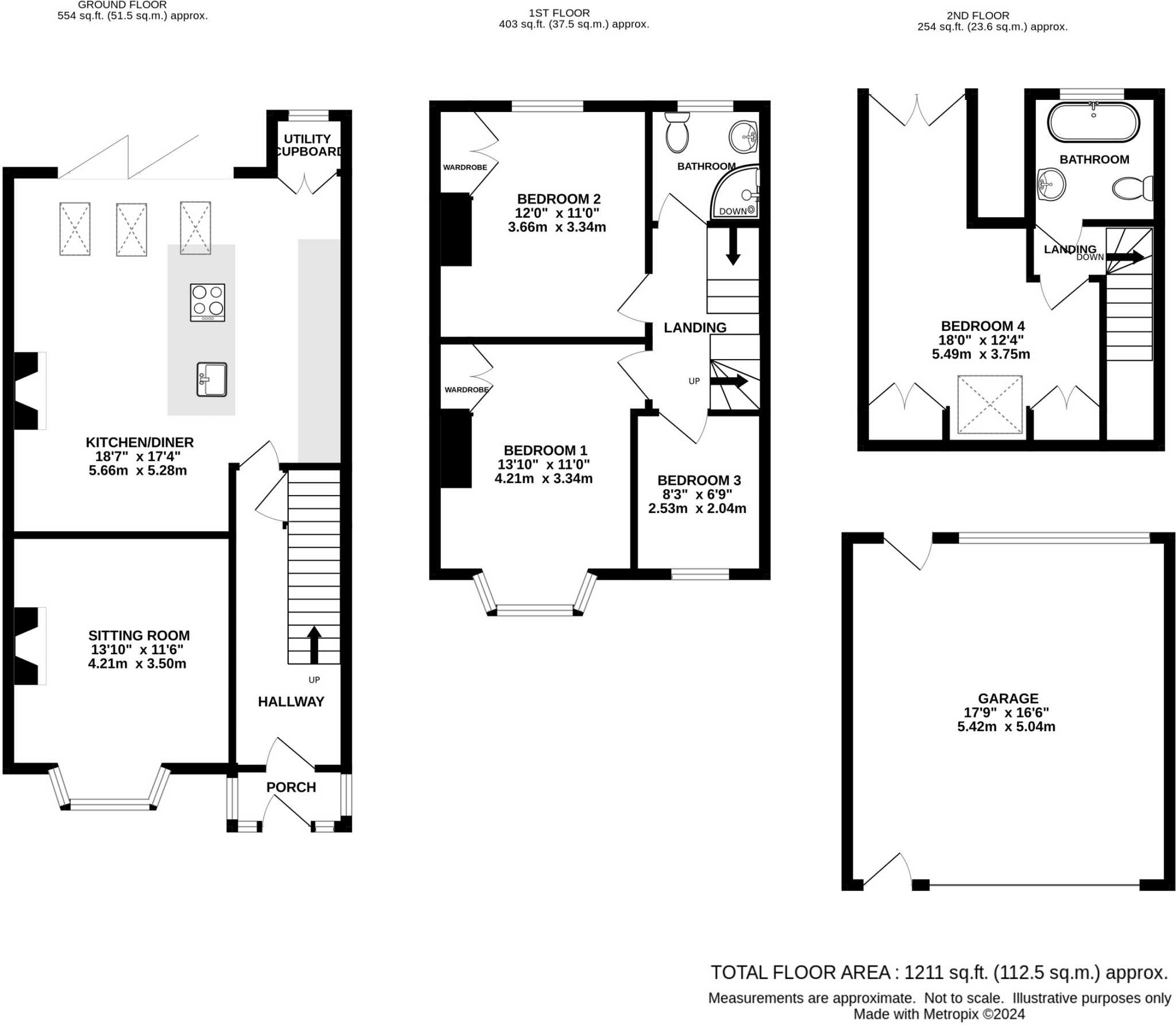
This beautifully presented Victorian mid-terrace property in the sought-after suburb of Topsham is perfect for families or first-time buyers looking for comfort and modern living. Spread over three floors, the home features an inviting front lounge with a cozy wood-burning stove and a seamlessly integrated kitchen-diner, ideal for entertaining. With four generous bedrooms, including a loft conversion boasting stunning views of the estuary, this home offers ample space for all.

Step outside to a tranquil rear garden with a spacious slate-paved patio, perfect for summer gatherings or quiet evenings, and access to a large garage and additional parking. Enjoy superb local amenities with easy access to top-rated schools, parks, and convenient transport links to Exeter and beyond. Don’t miss this opportunity to own a charming, yet modern home in a peaceful neighborhood. **Secure your viewing today as properties like this don't come around often!**

Property Details

Brochure Descriptions

Image Descriptions

Floorplan Description

Rooms

Textual Property Features

Detected Visual Features

EPC Details

Nearby Schools

Nearest Bars And Restaurants

,,,,}

Nearest General Shops

,,}

Nearest Grocery shops

,,}

Nearest Supermarkets

,,}

Nearest Religious buildings

,,}

Nearest Medical buildings

,,,}

Nearest Airports

}

Nearest Leisure Facilities

,,,,}

Nearest Tourist attractions

,,}

Nearest Train stations

,,,,}

Nearest Bus stations and stops

,,,,}

Nearest Hotels

,,}

Tags

Local Market Stats

AirBnB Data

Similar Properties

Meta

High Res Images

Compatible Images

Low res Images

Thumbnails

Raw Images

High Res Floorplan Images

Compatible Floorplan Images

Low res Floorplan Images

FloorplanImages Thumbnail

Raw Floorplan Images