Two approved bungalow homes with garages and generous gardens in a sought-after Teversal setting.
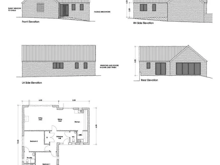
Detailed planning consent for 2 x two-bedroom detached bungalows (ref V/2019/0278)
Large freehold plot with south-west facing rear gardens
Each unit includes sizeable detached garage and driveway space
Sold at livestream auction — pre-registration required for bidders
Section of site under Japanese Knotweed treatment plan (legal pack)
No warranties on main services; buyer to verify connections
Broadband speeds slow; local area shows relatively high deprivation
Additional fees: administration charge and buyer's premium payable on exchange
A rare opportunity to acquire a large freehold site in the desirable village of Teversal with detailed planning consent (Ashfield District Council, ref V/2019/0278) for two detached two-bedroom bungalows, each with detached garage and south-west facing rear gardens. The consented designs include open-plan living, bi-fold doors and sizable garage space — attractive for a self-builder, small developer or investor seeking new-build units in a village setting.
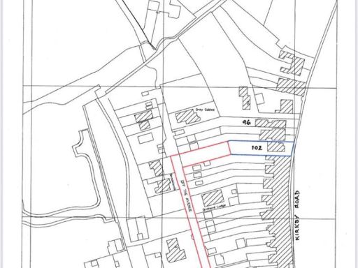
The land is sold at auction with vacant possession; bidders must pre-register for the livestream auction on 4th December 2025. The planning approval was granted on 9 July 2020 and covers both dwellings and associated garaging. The site has no recorded flood risk and sits in a quiet location close to local primary schools rated Good, recreational amenities and village green space.
Buyers should note important practical points: a section of the plot is subject to an active Japanese Knotweed treatment plan (details in the legal pack), and there are no warranties about mains service connections — purchasers must make their own enquiries. Broadband speeds are reported as slow and the local area shows higher deprivation; these factors may affect marketability to some buyers.
Additional costs will apply on top of the hammer price, including an administration fee and a buyer’s premium payable on exchange; prospective purchasers should review the legal pack for full disbursements and obligations before bidding. Overall, the site offers clear development potential with approved permission, but carries specific remediation and service-connection considerations that should be factored into budgets and timelines.
Land for sale in Land Adjacent to 28 Castleton Road, Inkersall, Chesterfield S43 3HU, S43 — £30,000 • 1 bed • 1 bath
House for sale in High Street, Tibshelf, DE55 — £175,000 • 1 bed • 1 bath
Residential development for sale in Plot 48 Newbold Back Lane, Chesterfield S40 4HQ, S40 — £100,000 • 1 bed • 1 bath
House for sale in High Street, Tibshelf, DE55 — £175,000 • 1 bed • 1 bath
Plot for sale in Off The Avenue, Sutton-In-Ashfield, NG17 — £120,000 • 1 bed • 1 bath
Land for sale in 128 Church Street, Eastwood, Nottingham, NG16 — £100,000 • 1 bed • 1 bath • 2585 ft²






























