Characterful two-bedroom cottage in central Chipping Norton, sold freehold and chain-free.
Town-centre position, immediate access to shops and amenities
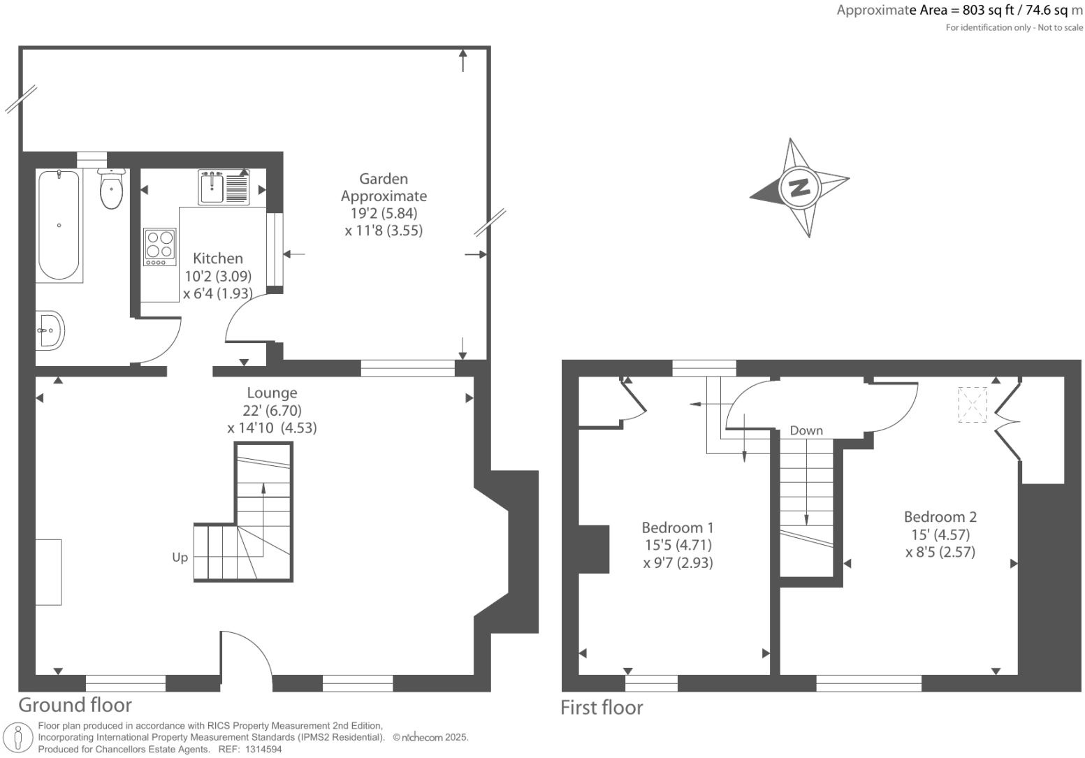
This two-bedroom period cottage sits in the heart of Chipping Norton, offering immediate town-centre convenience and plenty of character. The 22' open-plan principal reception centres on a classic inglenook fireplace with a wood-burning stove, while the master bedroom’s vaulted ceiling adds real personality and space.
Sold freehold and without onward chain, the home is well suited to first-time buyers or those seeking a central pied-à-terre. The property benefits from a private south-easterly courtyard garden, countryside views to the front and modern essentials such as mains gas heating and double glazing already installed.
Buyers should note a few practical limitations: the mid-terrace stone walls are assumed uninsulated, the double glazing dates from before 2002, and the plot and courtyard are small. Local recorded crime is above average for the area, and the cottage’s period construction may need ongoing maintenance or sympathetic upgrading.
Overall this cottage offers authentic period charm and a central location with clear potential for cosmetic improvement and energy-efficiency upgrades. Viewings are recommended to appreciate the space, proportions and town-centre lifestyle on offer.
2 bedroom cottage for sale in Chipping Norton, Oxfordshire, OX7 — £270,000 • 2 bed • 1 bath • 521 ft²
3 bedroom terraced house for sale in Chipping Norton, Oxfordshire, OX7 — £400,000 • 3 bed • 2 bath • 1406 ft²
2 bedroom detached house for sale in Victoria Place, Chipping Norton, Oxfordshire, OX7 — £405,000 • 2 bed • 1 bath • 809 ft²
2 bedroom detached house for sale in Chipping Norton, Oxfordshire, OX7 — £325,000 • 2 bed • 1 bath • 610 ft²
2 bedroom terraced house for sale in Horsefair, Chipping Norton, OX7 — £375,000 • 2 bed • 1 bath • 831 ft²
3 bedroom cottage for sale in New Street, Chipping Norton, OX7 — £400,000 • 3 bed • 1 bath • 883 ft²


















































































