Characterful central home with studio and garden, ideal for families or professionals.
- C16th terraced cottage retaining original beams and stone walls
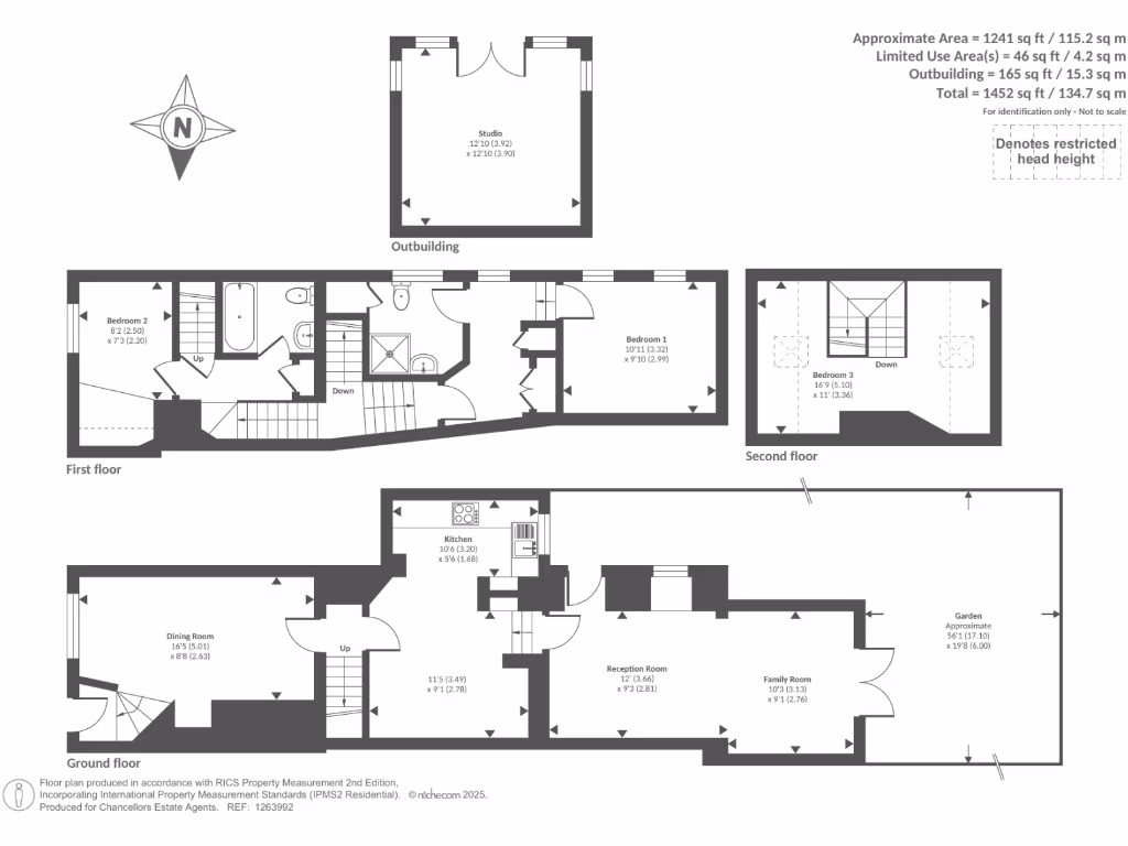
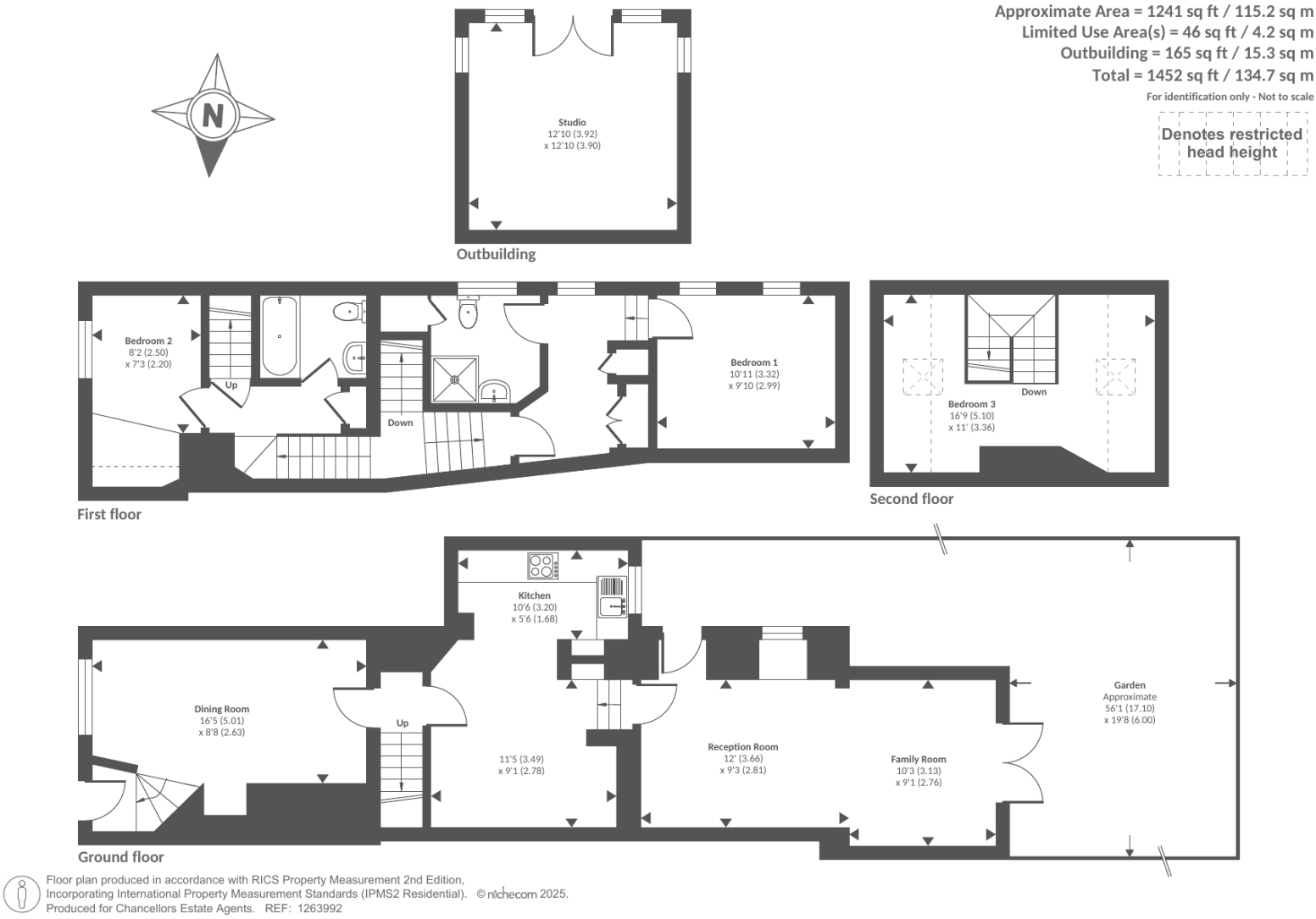
- Three reception rooms and versatile three-floor layout
- Refitted kitchen and two recently updated bathrooms
- Well-proportioned rear garden with patio and powered studio
- Small town-centre plot and modest ceiling heights in places
- Stone walls assumed uninsulated; further insulation may be needed
- Double glazing installed before 2002; mains gas central heating
- Above-average local crime; freehold tenure and moderate council tax
A rare c16th terraced cottage in the heart of Chipping Norton, sympathetically renovated to retain exposed beams, stone walls and period character. The house offers versatile accommodation across three floors with three reception rooms, a refitted kitchen and two recently updated bathrooms — ready for immediate living.
Light-filled principal rooms lead to a well-proportioned rear garden with patio and a powered outside studio, ideal for home working, hobbies or storage. The property is double-glazed and heated by a mains-gas boiler with radiators; broadband speeds are fast and mobile signal is excellent.
Practical points to note: the original limestone/sandstone walls are assumed uninsulated and some windows and ceilings are modest in height, so further insulation or sensitive upgrading could improve thermal performance. The plot is small and the setting is a lively town-centre location with above-average local crime statistics. Freehold tenure and a moderate council tax band complete the picture.
This home will suit buyers seeking character and town-centre convenience — families who want local schools and amenities on the doorstep, or professionals wanting a central base with studio space. Viewings are recommended to appreciate the scale and character of the accommodation.
2 bedroom cottage for sale in Chipping Norton, Oxfordshire, OX7 — £300,000 • 2 bed • 1 bath • 803 ft²
1 bedroom cottage for sale in Church Street, Chipping Norton, OX7 — £279,500 • 1 bed • 1 bath • 532 ft²
2 bedroom detached house for sale in Chipping Norton, Oxfordshire, OX7 — £300,000 • 2 bed • 1 bath • 610 ft²
3 bedroom detached house for sale in Spring Street, Chipping Norton, OX7 — £599,000 • 3 bed • 2 bath • 1018 ft²
2 bedroom detached house for sale in Victoria Place, Chipping Norton, Oxfordshire, OX7 — £405,000 • 2 bed • 1 bath • 809 ft²
2 bedroom cottage for sale in Chipping Norton, Oxfordshire, OX7 — £270,000 • 2 bed • 1 bath • 521 ft²






















































































