Move-in-ready two-bedroom home with private gardens and no chain.
Fully refurbished throughout with new kitchen and bathroom fittings
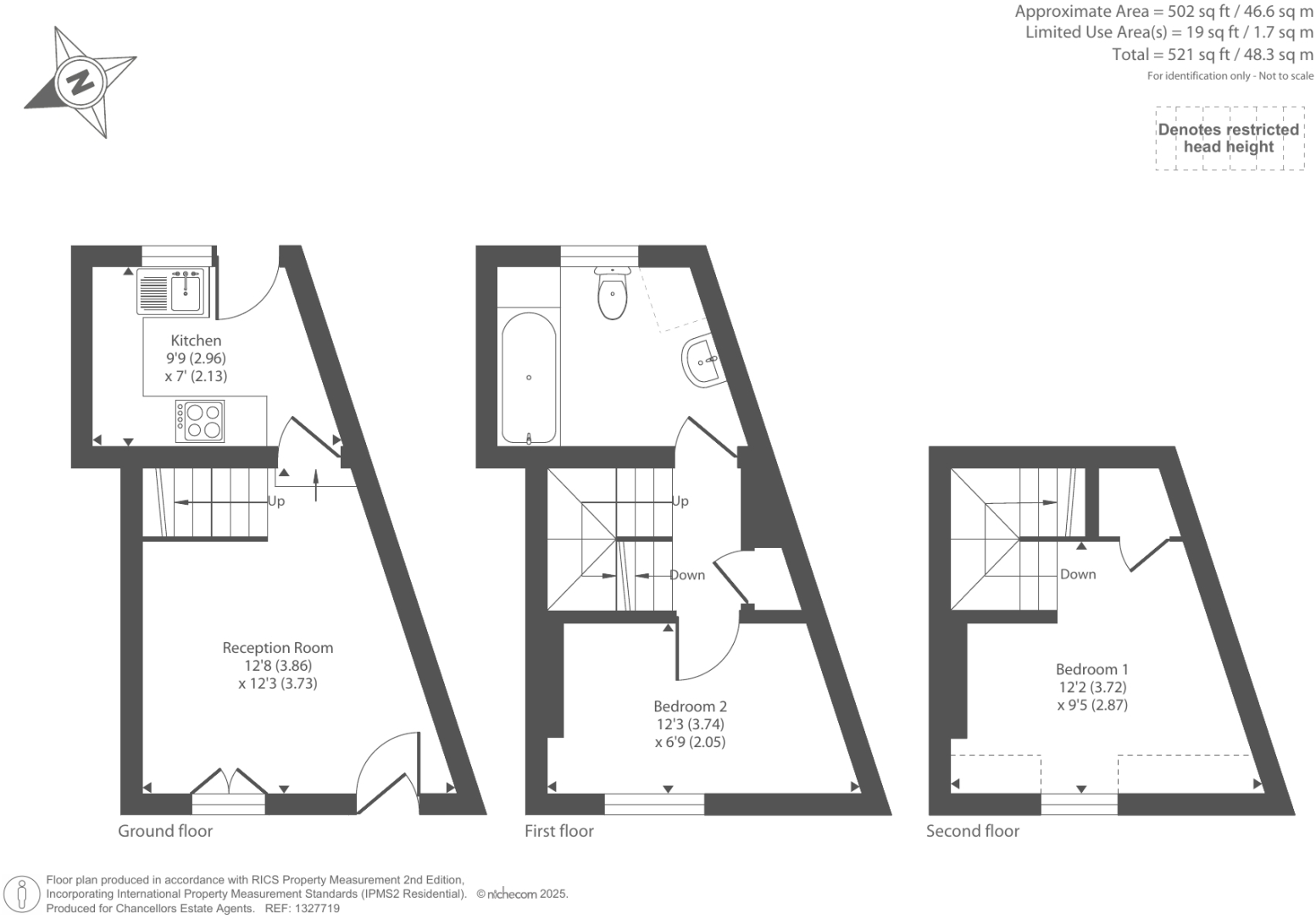
This compact two-bedroom, three-storey cottage sits in the heart of Chipping Norton and has been fully refurbished to a high standard. New kitchen and bathroom fittings, refreshed interiors and retained character such as exposed stone and a wood burner create an appealing, move-in-ready home for a first-time buyer.
Outdoor space is generous for the size: a private courtyard plus a rear garden with two large sheds and a greenhouse. The town-centre position places cafes, shops and transport on the doorstep, while the property is offered freehold and with no onward chain for a straightforward purchase.
Practical considerations are clear and factual. The total internal area is small (approximately 521 sq ft) and accommodation is arranged over three floors, which may not suit those needing single-level living. Heating is via electric storage heaters and the stone walls are assumed uninsulated; double glazing was installed before 2002. Crime levels in the area are above average, and the property’s construction dates from the early 20th century.
For buyers seeking a characterful starter home in a very central location, this cottage offers a rare combination of newly-fitted services, period charm and private gardens. Viewings are recommended to assess the layout and size in person.
2 bedroom cottage for sale in Chipping Norton, Oxfordshire, OX7 — £300,000 • 2 bed • 1 bath • 803 ft²
2 bedroom detached house for sale in Chipping Norton, Oxfordshire, OX7 — £300,000 • 2 bed • 1 bath • 610 ft²
3 bedroom terraced house for sale in Chipping Norton, Oxfordshire, OX7 — £400,000 • 3 bed • 2 bath • 1406 ft²
2 bedroom detached house for sale in Victoria Place, Chipping Norton, Oxfordshire, OX7 — £395,000 • 2 bed • 1 bath • 809 ft²
2 bedroom semi-detached house for sale in Stanley Close, Chipping Norton, OX7 — £325,000 • 2 bed • 1 bath • 650 ft²
3 bedroom cottage for sale in Spring Street, Chipping Norton, OX7 5NN, OX7 — £545,000 • 3 bed • 2 bath • 1484 ft²


















































































