Spacious riverside living with excellent schools nearby.
Four bedrooms including en suite to principal bedroom
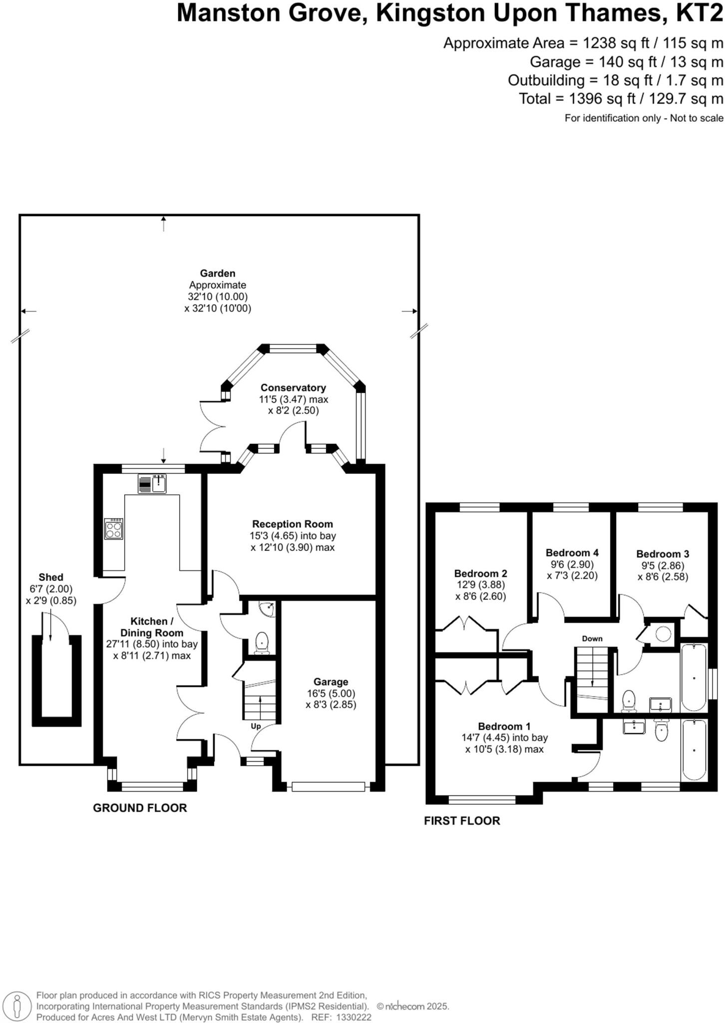
A well-proportioned four-bedroom detached home in the sought-after Royal Park Gate development, ideal for growing families seeking space and riverside access. The ground floor offers a long 27' kitchen/diner, a separate reception room that flows into a conservatory, and a convenient cloakroom and integral garage with driveway parking.
Upstairs are four bedrooms, including a generous principal with en suite and fitted storage, plus a family bathroom. The 32' landscaped rear garden with lawn, patio and side shed provides a secure outdoor space for children and pets, with scope for further landscaping or extension subject to planning.
The house has been well maintained and is ready to move into, while offering clear potential for cosmetic updating to suit a buyer’s taste. Practical points: the property has an EPC rating of D and council tax is relatively high for the area. Many homes of this age may contain materials such as asbestos; buyers should obtain specialist advice if concerned.
Positioned between Ham Lands Nature Reserve and the River Thames towpath, the location benefits from excellent local schools, pleasant riverside walks and easy access to Kingston and Richmond rail links. Freehold tenure, mains gas heating and no recorded flooding risk add to the practical appeal for family purchasers.
4 bedroom detached house for sale in Tangmere Grove, Kingston Upon Thames, KT2 — £1,200,000 • 4 bed • 2 bath • 15898 ft²
3 bedroom terraced house for sale in Debden Close, Kingston Upon Thames, KT2 — £895,000 • 3 bed • 2 bath • 1378 ft²
4 bedroom terraced house for sale in Breamwater Gardens, Richmond, TW10 — £850,000 • 4 bed • 2 bath • 1378 ft²
4 bedroom town house for sale in Samuel Gray Gardens, Kingston Upon Thames, KT2 — £1,250,000 • 4 bed • 3 bath • 1649 ft²
4 bedroom semi-detached house for sale in Sopwith Close, Kingston upon Thames, KT2 — £835,000 • 4 bed • 2 bath • 1308 ft²
4 bedroom town house for sale in Blenheim Gardens, Kingston Upon Thames, KT2 — £875,000 • 4 bed • 2 bath • 1767 ft²














































































