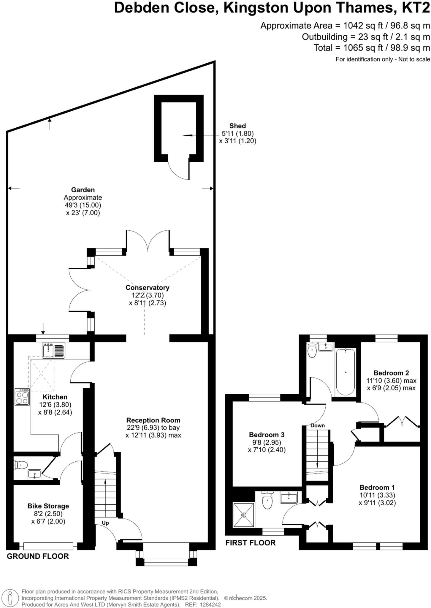
Three double bedrooms, principal bedroom with en suite
Set in a quiet cul-de-sac close to Ham Lands and the Thames, this spacious three-bedroom mid-terrace offers practical family living across multiple floors. The bright 22' reception with bi-fold doors flows into a large conservatory, creating flexible living and dining space for everyday life and entertaining. A modern fitted kitchen and ground-floor WC add convenience, while three double bedrooms upstairs include a principal with en suite.
Outside, the low-maintenance rear garden with decking, separate bike garage/utility room and shed make outdoor life and storage straightforward. Driveway parking to the front is a useful asset in this residential pocket. The property sits within easy reach of strong local schools (including The Tiffin Girls’ and other highly rated primaries) and local amenities, appealing to families wanting green space with good transport links.
Practical considerations are set out clearly: the house dates from the late 1970s/early 1980s with double glazing installed before 2002, cavity walls with only partial insulation, and an EPC rating of E. Council tax is high. Many homes of this era may contain some asbestos elements — buyers concerned about this should arrange specialist assessment. These facts mean there is scope for targeted improvement, insulation upgrades and energy-efficiency work to reduce running costs and personalise the home.
Overall, the property combines readable family-focused living space and useful outbuildings in a peaceful location. It will suit buyers looking for a roomy, well-located freehold home with potential to modernise energy performance and interior finishes to their taste.
3 bedroom terraced house for sale in Sopwith Close, Kingston upon Thames, KT2 — £625,000 • 3 bed • 1 bath • 1011 ft²
3 bedroom house for sale in Mowbray Road, Richmond, TW10 — £725,000 • 3 bed • 1 bath • 791 ft²
4 bedroom terraced house for sale in Breamwater Gardens, Richmond, TW10 — £850,000 • 4 bed • 2 bath • 1378 ft²
3 bedroom terraced house for sale in Earle Gardens, Kingston Upon Thames, KT2 — £785,000 • 3 bed • 1 bath • 1057 ft²
3 bedroom end of terrace house for sale in Ashburnham Road, Richmond, TW10 — £700,000 • 3 bed • 1 bath • 926 ft²
4 bedroom terraced house for sale in Murray Road, Richmond, TW10 — £750,000 • 4 bed • 1 bath • 1087 ft²


















































































