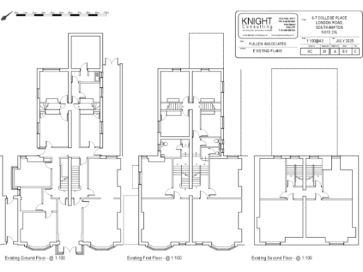
Extremely large freehold building — 3,354 sq ft over three floors plus basement
Potential for Class MA residential conversion (subject to prior approval)
Forecourt parking for 6 cars; rear space for about 9 cars (layout dependent)
EPC asset rating 122 (Band E) — energy improvements likely required
Period Edwardian/Victorian features; high ceilings and spacious rooms
Requires maintenance and roof repairs; modernization needed throughout
Located opposite law courts and near Southampton station and amenities
Local area: very high crime and deprived classification — impacts valuation
A substantial freehold building in a prominent London Road position, offered with vacant possession and clear potential for residential conversion under Class MA (subject to prior approval). The linked Edwardian/Victorian offices total 3,354 sq ft over three floors plus two small basement rooms, and include forecourt parking for six cars with additional rear spaces that could accommodate about nine vehicles.
The location delivers city-centre convenience: opposite the Combined Law Courts, close to hotels, shops and Southampton railway station, and surrounded by other converted apartment buildings. This makes the site appealing to investors or developers seeking a conversion opportunity with excellent transport links and local amenities.
The property requires modernisation and some maintenance — roof wear and general wear are noted, and the building has an EPC asset rating of 122 (Band E). The immediate area records very high crime levels and is classified as deprived, which will affect rental values and resale positioning; these factors should be weighed into any conversion appraisal or refurbishment budget. Business Rates are assessed at a Rateable Value of £42,750.
Offered at a guide price of £650,000, this is a value-driven redevelopment prospect for buyers able to manage prior approval processes and deliver a sensitive refurbishment or conversion scheme. The site’s scale, central position and existing parking provision are strong practical advantages for a residential scheme or continued commercial use.
6 bedroom terraced house for sale in Portland Street, Southampton, SO14 — £1,250,000 • 6 bed • 4 bath • 2718 ft²
Land for sale in Surety House, Old Redbridge Road, Southampton, Hampshire, SO15 0NE, SO15 — £1,250,000 • 1 bed • 1 bath • 7522 ft²
Office for sale in 75 Bedford Place, Southampton, Hampshire, SO15 2DF, SO15 — £295,000 • 1 bed • 1 bath • 1006 ft²
4 bedroom flat for sale in Southampton, SO15 — £300,000 • 4 bed • 2 bath • 1204 ft²
Residential development for sale in Samaritans, 11 College Place, Southampton, SO15 — £375,000 • 1 bed • 1 bath • 3659 ft²
High street retail property for sale in Bedford Place, Southampton, Hampshire, SO15 — £295,000 • 1 bed • 1 bath • 1400 ft²






























