**Standout Features:**
- Freehold commercial property in a highly popular location, Bedford Place, Southampton
- Grade II Listed character mid-terrace with period features and natural light
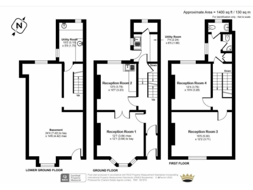
- Spacious layout: approximately 1,400 sq. ft. spread over three levels
- Rear parking: 2 off-street spaces
- Vacant possession available for immediate use or rental
- Potential for a lucrative rental income (ERV £30,000 pa)
**Summary:**
Discover the unique opportunity to own this Grade II Listed commercial property in the bustling Bedford Place area of Southampton. Spanning over 1,400 sq. ft., this character-rich mid-terrace features large bay windows that flood the interior with light. The property has a versatile layout, including a large reception room, several well-proportioned workspace areas, and essential amenities such as separate WC facilities. Ideal for an owner-occupier or an astute investor, this property boasts a strong potential for rental income.
While the charming period aspects enhance the property’s appeal, prospective buyers should note the listed status may present challenges for extensive modifications. Nonetheless, the local cosmopolitan environment, bustling with shops, cafes, and leisure activities, allows for future growth and investment potential. Secure this property for a guide price of £295,000 and capitalize on the demand in this thriving commercial hub. Don’t miss out on this promising opportunity!
Office for sale in 79 Bedford Place, Southampton, Hampshire, SO15 2DF, SO15 — £295,000 • 1 bed • 1 bath • 1021 ft²
Office for sale in 75 Bedford Place, Southampton, Hampshire, SO15 2DF, SO15 — £295,000 • 1 bed • 1 bath • 1006 ft²
High street retail property for sale in 73 Bedford Place, Southampton, SO15 2DF, SO15 — £295,000 • 1 bed • 1 bath • 1313 ft²
Office for sale in 1 Brunswick Place, Southampton, SO15 2AN, SO15 — £325,000 • 1 bed • 1 bath • 3367 ft²
Leisure facility for sale in 30 Carlton Place, Southampton, SO15 2DX, SO15 — £750,000 • 1 bed • 1 bath • 7405 ft²
Shop for sale in The Square, Bishops Waltham, Southampton, Hampshire, SO32 1AF, SO32 — £395,000 • 1 bed • 1 bath • 2047 ft²














































