Garden and renovation potential close to Walworth Road amenities and transport.
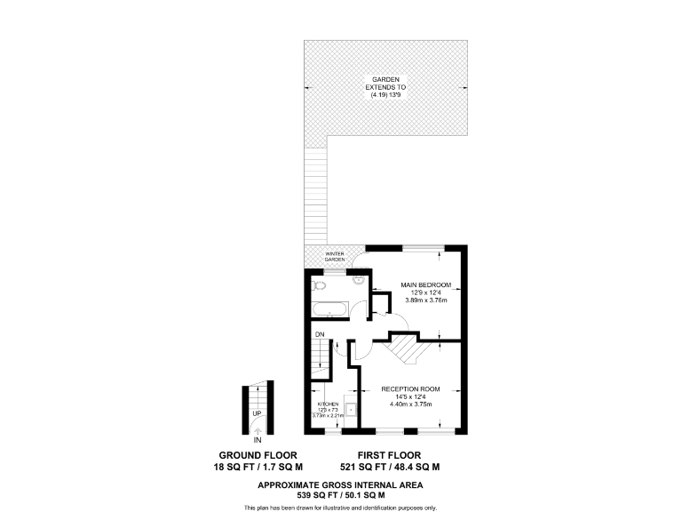
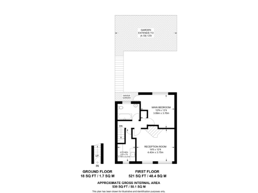
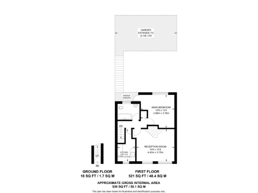
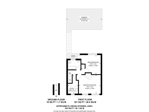
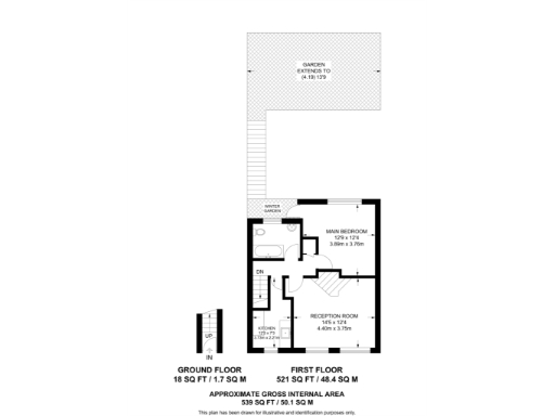
Large reception room and separate modern kitchen
Set on the first floor with a private ground-floor entrance, this 1-bedroom maisonette offers well-proportioned living across 539 sq ft. The large reception room and separate modern kitchen create functional day-to-day space, while a private garden provides a rare outdoor area for this type of property in SE17. Share of freehold and mains gas heating add practical ownership and running-cost advantages.
The flat shows signs of a light renovation project: an unfinished room with exposed floorboards and some assumed lack of wall insulation typical of the 1900–1929 build. The lease has 87 years remaining—adequate but something to review for long-term finance and resale plans. Double glazing is present though install date is unknown.
Location is highly convenient for Walworth Road amenities, shops and transport links, with excellent mobile signal and fast broadband. Local schools have strong Ofsted ratings, which may suit buyers planning for future family needs or renting to students and professionals. Be aware the immediate area records higher crime and faces wider deprivation; this affects local perception and should be weighed against the property’s size and garden.
This maisonette will suit a buyer seeking a character period property with garden access and refurbishment potential: either a first-time purchaser wanting to add value, or an investor targeting rental demand near central transport and universities.
2 bedroom flat for sale in Fleming Road, Kennington, London, SE17 — £575,000 • 2 bed • 2 bath • 923 ft²
1 bedroom maisonette for sale in Wooler Street, London, SE17 — £470,000 • 1 bed • 1 bath • 506 ft²
3 bedroom maisonette for sale in Boundary Lane, Elephant and Castle, London, SE17 — £550,000 • 3 bed • 1 bath • 871 ft²
2 bedroom maisonette for sale in Weston Street, Borough, London, SE1 — £485,000 • 2 bed • 1 bath • 568 ft²
1 bedroom flat for sale in Wilmot Close, Peckham, London, SE15 — £325,000 • 1 bed • 1 bath • 497 ft²
3 bedroom maisonette for sale in Cator Street, Peckham, London, SE15 — £400,000 • 3 bed • 1 bath • 1026 ft²


















































































































