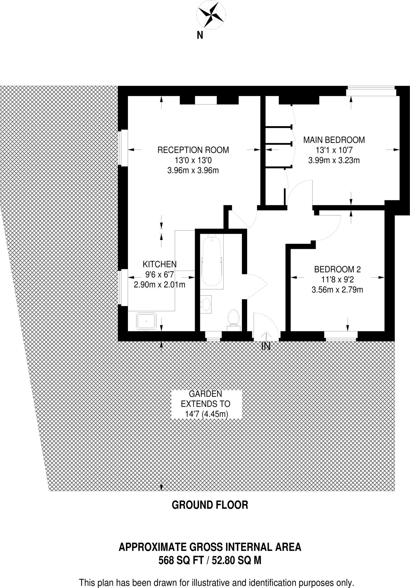
Bright, two-bedroom ground-floor home with rare wrap-around garden near Borough station.
Ground-floor two-bedroom maisonette with open-plan reception and kitchen
Set on the ground floor of a 1930s estate, this well-arranged two-bedroom maisonette combines contemporary open-plan living with a rare wrap-around garden in central SE1. The large reception area and integrated kitchen create a bright, flexible living space, while two double bedrooms and a sleek bathroom provide straightforward, comfortable accommodation for a couple or small family.
The property occupies 568 sq ft and benefits from double glazing, mains gas central heating and excellent mobile and broadband connectivity — useful for professionals working from home. Commuting is straightforward: Borough High Street and Borough Underground Station are within easy reach, and local amenities from supermarkets to cafés are plentiful.
Practical details to note: the flat is leasehold with 105 years remaining, an average service charge of £1,605 pa and a small ground rent. The building’s solid brick walls are assumed to lack insulation and the area records higher-than-average crime and local deprivation indicators. Overall this is an attractive, low-flood-risk central pied-à-terre with good rental or owner-occupier appeal, but buyers should factor in running costs, communal charges and potential retrofit work to improve insulation.
2 bedroom flat for sale in Southwark Bridge Road, London Bridge, SE1 — £700,000 • 2 bed • 2 bath • 888 ft²
2 bedroom apartment for sale in Old Kent Road, London, SE1 — £475,000 • 2 bed • 1 bath • 681 ft²
3 bedroom apartment for sale in Kipling Estate, London Bridge, London, SE1 — £640,000 • 3 bed • 1 bath • 875 ft²
2 bedroom flat for sale in Southwark Bridge Road, London Bridge, SE1 — £700,000 • 2 bed • 2 bath • 888 ft²
2 bedroom flat for sale in Tooley Street, London, SE1 — £550,000 • 2 bed • 2 bath • 711 ft²
2 bedroom flat for sale in Townsend House, Bermondsey, SE16, SE1 — £375,000 • 2 bed • 1 bath • 772 ft²






































































































































