Well-located home with garden and modern kitchen for first-time buyers.
Three double bedrooms across two floors
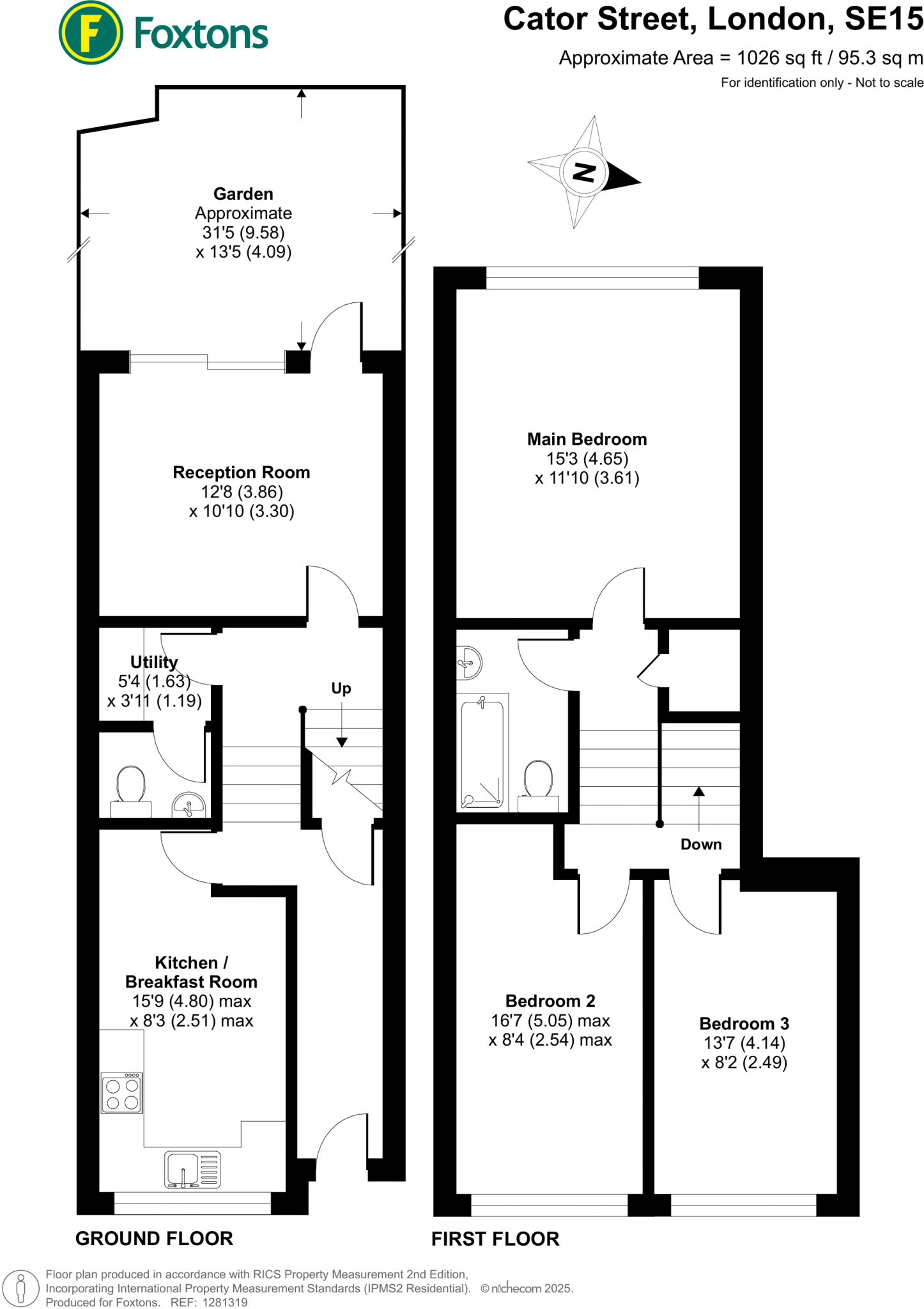
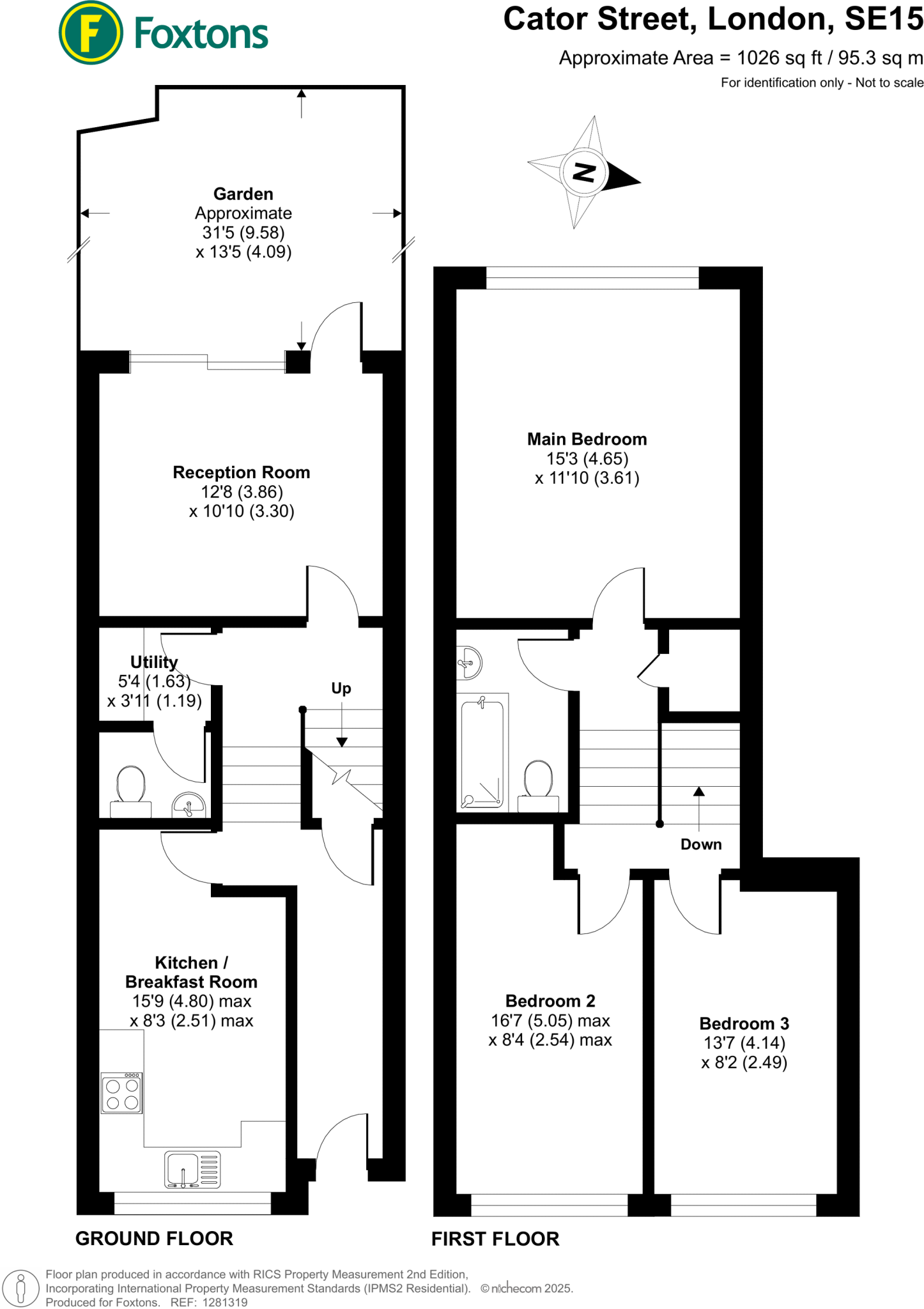
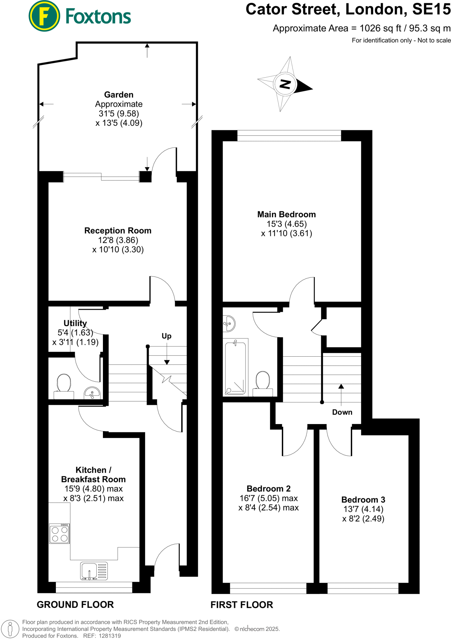
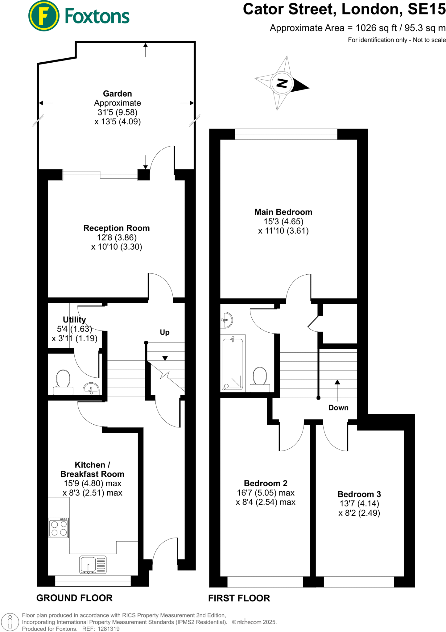
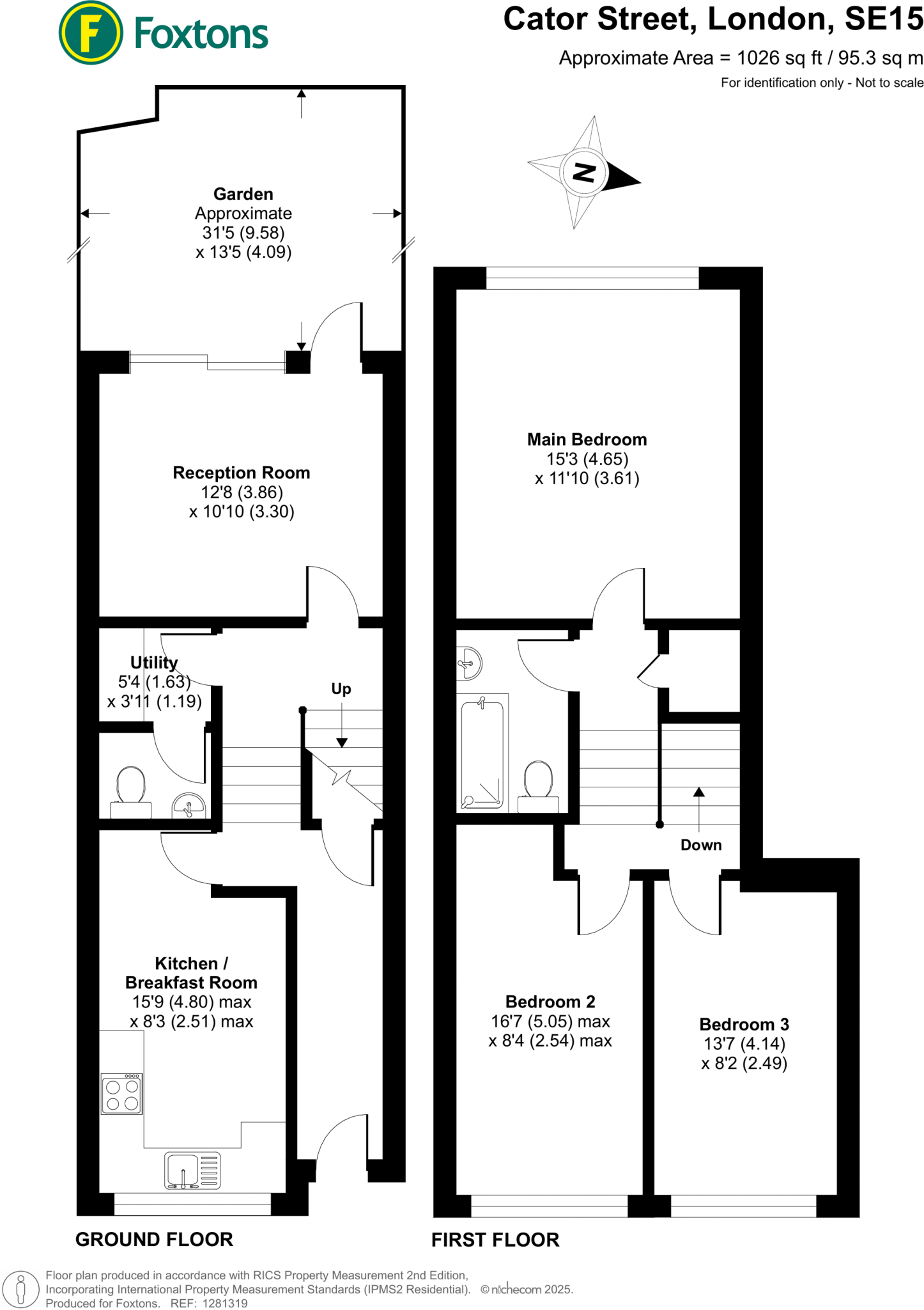
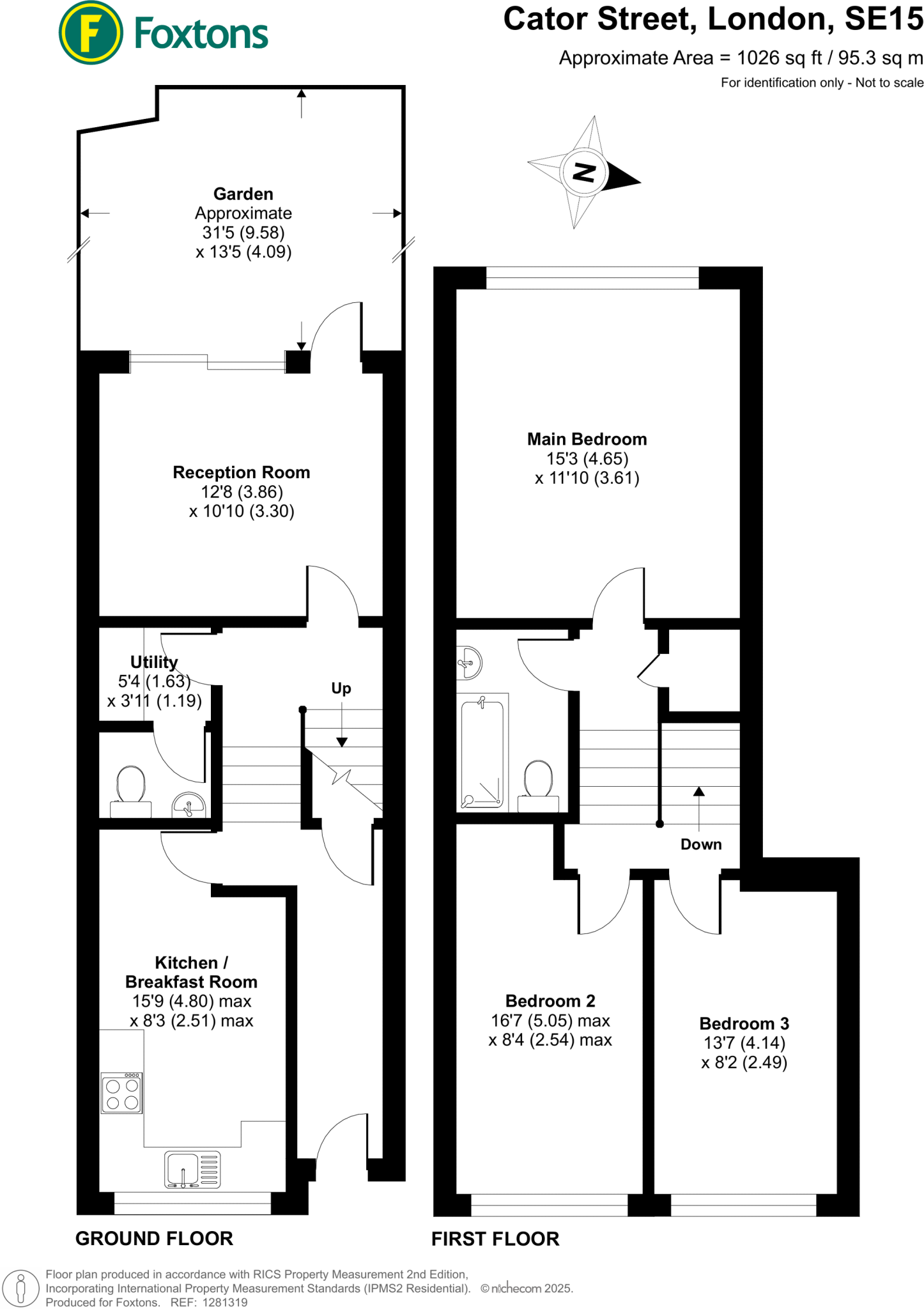
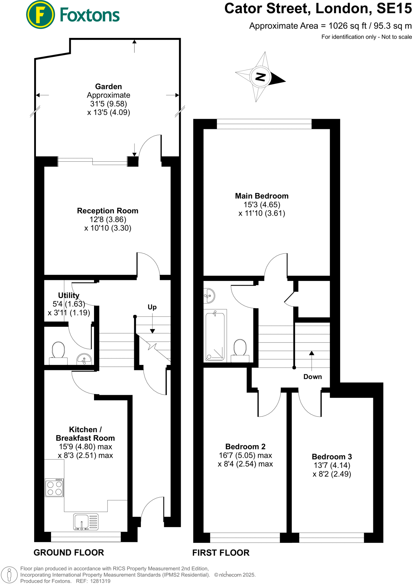
This bright three-bedroom maisonette is arranged over two floors and offers generous living space for a first-time buyer or growing household. A naturally lit reception room flows from the main entrance, while a modern eat-in kitchen with integrated appliances provides a practical hub for daily life. There is direct access to a rear garden suitable for relaxing and entertaining.
The property totals approximately 1,026 sq ft, with three well-proportioned bedrooms, a family bathroom and a useful utility room with an additional WC. Fast broadband and excellent mobile signal make the home well suited to hybrid working and connected family life. Burgess Park and local amenities are close by, and several well-rated primary and secondary schools are within easy reach.
Buyers should note this is a leasehold property with 87 years remaining and a nominal ground rent (£10). Heating is via a community mains-gas scheme, which may limit individual control and future running costs; cavity walls were built without insulation (assumed) and could benefit from upgrading. There is only one family bathroom for three bedrooms.
Overall, the maisonette presents a comfortable, low-maintenance home with scope to improve energy performance and personalise finishes. It will suit purchasers seeking a well-located, move-in-ready property with garden space and good transport links into central London.
3 bedroom maisonette for sale in Boundary Lane, Elephant and Castle, London, SE17 — £550,000 • 3 bed • 1 bath • 871 ft²
3 bedroom maisonette for sale in Caspian Street, Camberwell, London, SE5 — £375,000 • 3 bed • 1 bath • 836 ft²
2 bedroom maisonette for sale in Bibury Close, Peckham, London, SE15 — £350,000 • 2 bed • 1 bath • 893 ft²
3 bedroom apartment for sale in Southampton Way, London, SE5 — £670,000 • 3 bed • 2 bath • 1346 ft²
3 bedroom flat for sale in Mona Road, Nunhead, London, SE15 — £500,000 • 3 bed • 1 bath • 832 ft²
2 bedroom maisonette for sale in Wells Way, Camberwell, London, SE5 — £420,000 • 2 bed • 1 bath • 777 ft²










































































































































































































































































































































































































































































































































