### Standout Features:
- **Planning Permission**: Approved for seven dwellings.
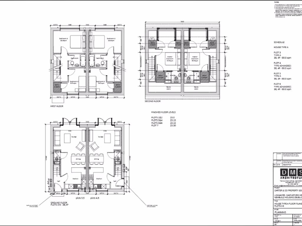
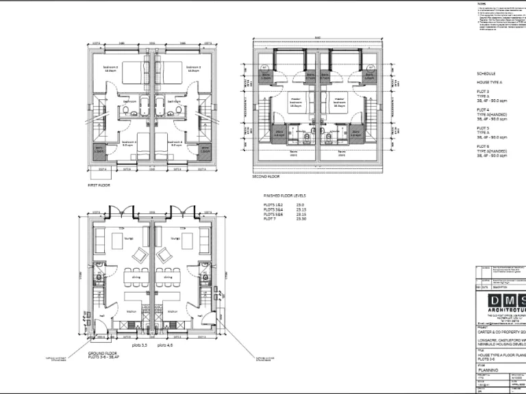
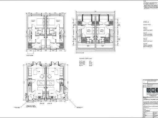
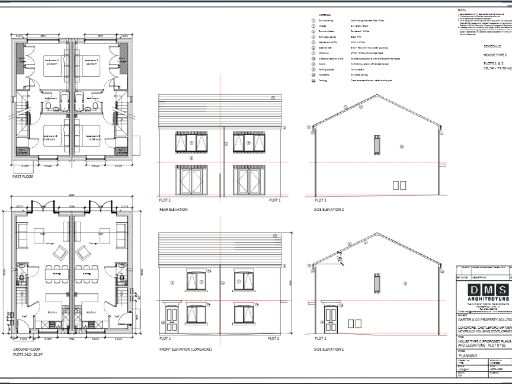
- **Diverse Building Types**: Three distinct types—three-bedroom semi-detached townhouses, a three-bedroom detached home, and two-bedroom semi-detached homes.
- **Generous Lot Size**: Approximately 0.33 acres, allowing for ample landscaping and outdoor spaces.
- **Location**: Close to local amenities, schools, and transport links.
- **Investment Potential**: Perfect for developers seeking to create a desirable community.
### Summary:
Unlock a prime investment opportunity with this expansive 0.33-acre plot at Longacre, Castleford, complete with planning permission for seven new dwellings. The approved designs cater to a variety of buyers, featuring three types of homes: Type A three-bedroom semi-detached townhouses spread over three floors, a Type B three-bedroom detached home, and Type C two-bedroom semi-detached houses. This strategically located site is within arm’s reach of local conveniences, reputable schools, and excellent transport links, making it ideal for family living or investment in a growing area.
The site is situated in a neighborhood with strong demand, ensuring potential for quick sales or rentals. However, prospective buyers should consider the local economic context, as the area is classified as deprived, which may influence market dynamics. With the opportunity to create a modern residential community, don't miss out on this unique chance—such offerings are rare and won't stay available for long. Act now and make your mark in Castleford’s evolving landscape!
Land for sale in Land On Methley Road, Castleford, WF10 — £90,000 • 1 bed • 1 bath • 3289 ft²
Land for sale in Leeds Road, Allerton Bywater, Castleford, WF10 — £300,000 • 1 bed • 1 bath • 19166 ft²
Land for sale in Wakefield, WF3 — £230,000 • 1 bed • 1 bath • 8407 ft²
Land for sale in Hill Top, Newmillerdam, Wakefield, West Yorkshire, WF2 — £450,000 • 1 bed • 1 bath
Land for sale in Normandy Court, Whitwood, WF10 — £75,000 • 1 bed • 1 bath
Land for sale in Womersley Road, Knottingley, WF11 0DB, WF11 — £630,000 • 5 bed • 1 bath • 3034 ft²














































