**Standout Features:**
- Full planning permission granted for 3 new dwellings and refurbishment of existing cottage (Planning reference: 19/02912/FL).
- Elevated plot of 0.33 acres with far-reaching views.
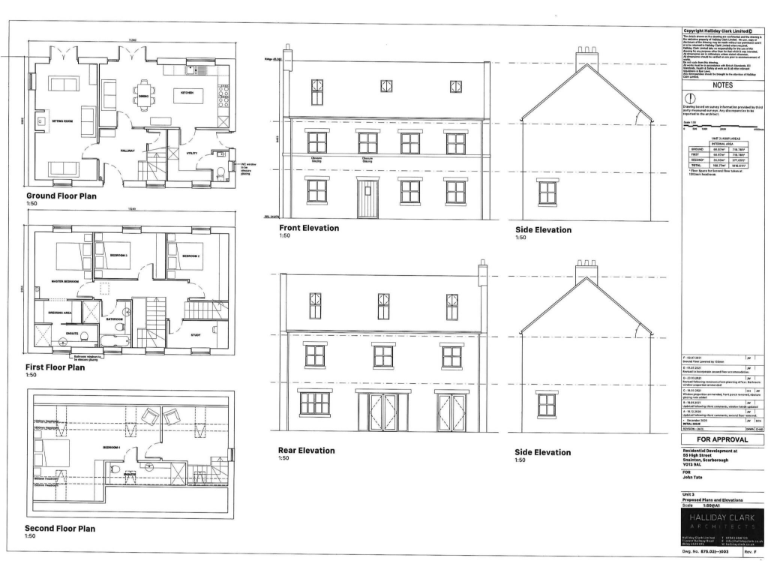
- Potential for a substantial four-bedroom family home (1,816 sq ft) and two additional three-bedroom mews-style cottages (961-1005 sq ft each).
- Charming historic stone cottage on-site requiring full renovation but with great potential.
- Off-street parking and good access to mains services.
**Summary:**
Nestled in the serene village of Snainton, this expansive development site at 55 High Street offers a prime opportunity for aspiring homeowners or investors. With full planning permission in place for three new residential properties and the renovation of a quaint historic cottage, there's immense potential to create a unique community space. The large 0.33-acre plot boasts stunning countryside views, making it ideal for the creation of a spacious family home alongside two mews-style cottages.
Although the existing cottage needs significant refurbishment, it holds the charm of traditional stone architecture and offers a remarkable canvas for those willing to invest in revitalization. The opportunity to build in such an idyllic rural setting is increasingly rare, especially given the absence of occupancy conditions on the new dwellings. Enjoy the tranquility of village life while being conveniently close to local amenities, including schools, shops, and public transport. Act quickly, as such development opportunities in desirable locations do not last long!
3 bedroom detached house for sale in High Street, Snainton, YO13 — £450,000 • 3 bed • 1 bath • 1600 ft²
3 bedroom detached house for sale in High Street, Snainton, Scarborough, North Yorkshire, YO13 — £650,000 • 3 bed • 1 bath • 5375 ft²
4 bedroom detached house for sale in High Street, Snainton, Scarborough, North Yorkshire, YO13 — £699,995 • 4 bed • 2 bath • 3820 ft²
Barn conversion for sale in West Lane, Snainton, Scarborough, YO13 — £180,000 • 1 bed • 1 bath • 2113 ft²
7 bedroom character property for sale in Snainton, Scarborough, YO13 — £1,200,000 • 7 bed • 4 bath • 4000 ft²
5 bedroom house for sale in High Street, Snainton, Scarborough, YO13 — £550,000 • 5 bed • 3 bath • 3696 ft²










































