Spacious historic plot with multi‑unit flexibility and outbuildings.
Two Grade II listed adjoining properties with separate entrances
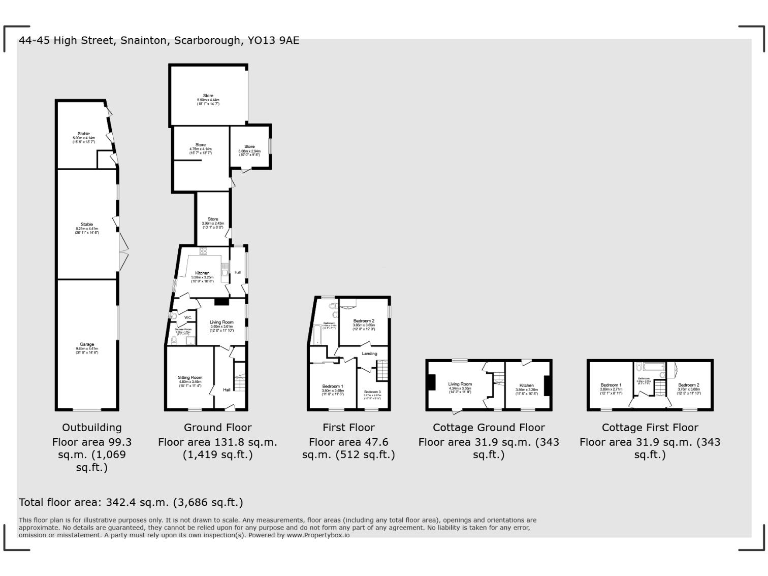
A rare village holding: two adjoining Grade II listed stone properties with separate entrances, ideal for extended family living or combined home-and-income use. The pair sit on about 3/4 acre with multiple outbuildings, garage and generous off‑street parking — space for vehicles, hobbies and storage.
The homes provide abundant living space across approximately 3,696 sq ft: five bedrooms, three bathrooms and three reception rooms in total, plus a mix of heating systems (air‑source heat pump, boiler, underfloor heating and wood pellets) and double glazing added after 2002. Fast broadband and excellent mobile signal support home working or holiday‑let use.
Important practical points: both buildings need renovation and modernisation, and the Grade II listing will restrict changes and may make planning or structural works more complex and costly. The external stone walls are assumed uninsulated and improvements will be required to reach modern energy standards. Council tax is moderate (bands B and D).
This property suits multigenerational buyers wanting separate living units, an investor seeking conversion or holiday‑let potential (subject to permissions), or a buyer prepared to restore a characterful historic home. Viewing is recommended to assess scope and costs before committing to works.
6 bedroom detached house for sale in Folkton, Scarborough, YO11 — £450,000 • 6 bed • 3 bath • 2058 ft²
3 bedroom cottage for sale in High Street, Snainton, Scarborough, YO13 — £235,000 • 3 bed • 2 bath • 771 ft²
7 bedroom detached house for sale in House + Land + Stables + Holiday Lets - Main Street, Seamer, YO12 — £675,000 • 7 bed • 6 bath • 4009 ft²
5 bedroom detached house for sale in West Street, Muston, Filey, YO14 — £475,000 • 5 bed • 5 bath • 2932 ft²
5 bedroom detached house for sale in Folkton, Scarborough, YO11 — £450,000 • 5 bed • 3 bath • 2153 ft²
3 bedroom detached house for sale in High Street, Snainton, Scarborough, North Yorkshire, YO13 — £650,000 • 3 bed • 1 bath • 5375 ft²










































































































