Personalise a bright, energy-efficient home close to countryside walks and good commuter links.
- Three bedrooms, two bathrooms including en-suite
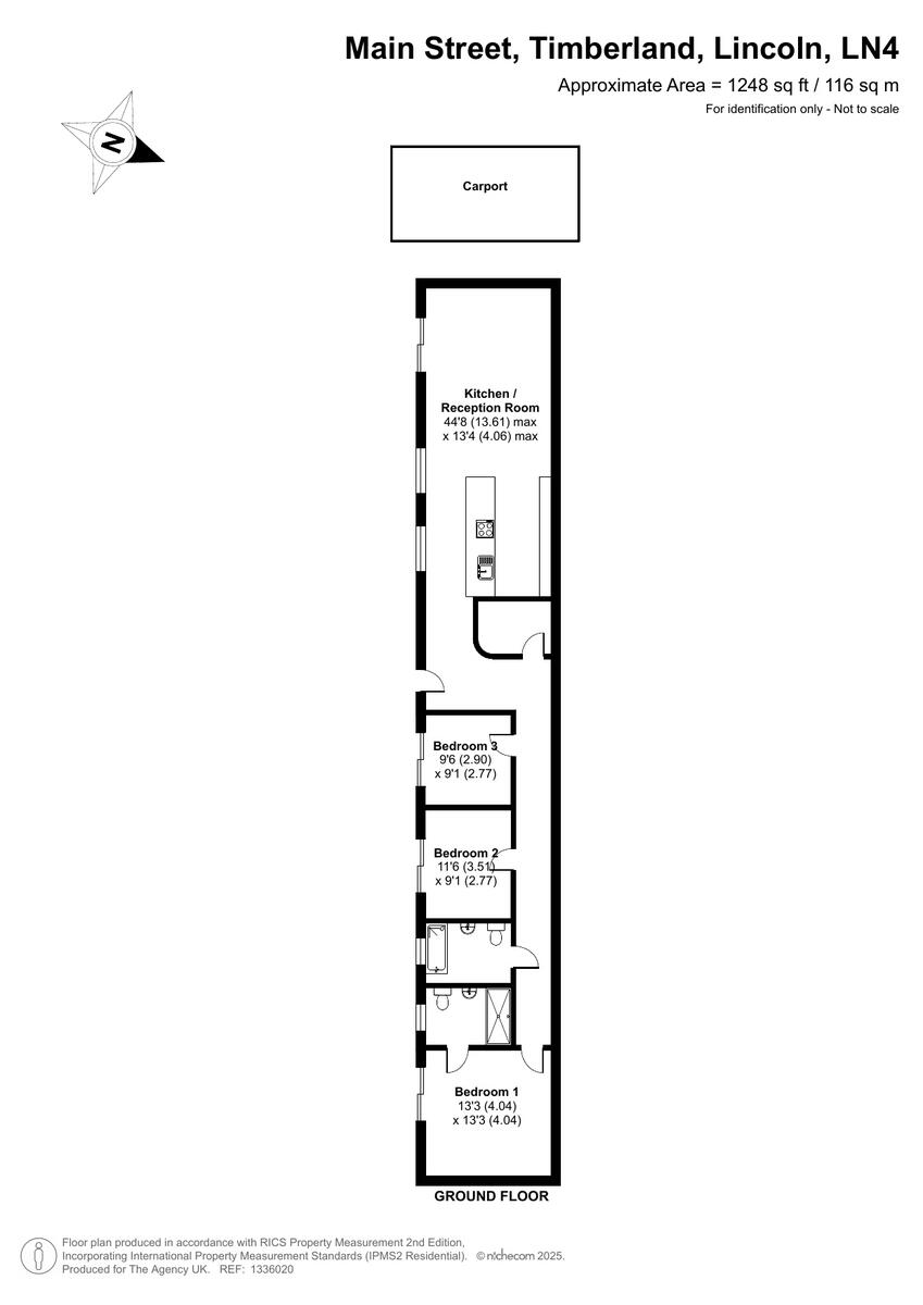
- 1,248 sq ft living space, detached layout
- Personalise kitchen, bathrooms and flooring before completion
- Open-plan kitchen, dining and living with exposed beams
- Large landscaped garden and private car port included
- Air-source heat pump with underfloor heating (electric)
- Located in a remoter village; limited local amenities
- CGI images illustrative; final finishes may differ
A newly built barn conversion offering three bedrooms and flexible living across a generous 1,248 sq ft. The Long Barn is offered as a near-finished home where you can personalise kitchen, bathrooms and flooring choices before completion. The open-plan kitchen, dining and living area features high ceilings and exposed beams, creating a bright family hub.
Practical comforts include an air-source heat pump with underfloor heating, fast broadband and a private car port. The large landscaped garden and detached layout suit outdoor family life and entertaining, while the freehold tenure and no flood risk add ownership reassurance.
Be realistic about location: Timberland is a quiet, remoter village within established farming communities, so local amenities are limited though Lincoln, Waddington and Grantham remain accessible. The property is electricity-fuelled (no gas), newly renovated/constructed in 2021 and finished using CGI visuals to illustrate potential final specifications — actual finishes may vary. This is a good choice for buyers seeking countryside character with modern energy-efficient heating and the opportunity to tailor interior finishes to taste.
3 bedroom barn conversion for sale in The Cart Shed, Timberland, Lincoln, LN4 — £650,000 • 3 bed • 2 bath • 1916 ft²
4 bedroom barn conversion for sale in Lineside, Amber Hill, Boston, PE20 — £695,000 • 4 bed • 4 bath • 2414 ft²
3 bedroom detached house for sale in Aunsby, Sleaford, Lincolnshire, NG34 — £375,000 • 3 bed • 3 bath • 1560 ft²
4 bedroom detached house for sale in Martin Road, Timberland, Lincoln, LN4 — £675,000 • 4 bed • 3 bath • 2880 ft²
4 bedroom barn conversion for sale in Chapel Road, Fiskerton, Lincoln, Lincolnshire, LN3 — £575,000 • 4 bed • 3 bath • 2459 ft²
3 bedroom barn conversion for sale in The Barns, Westlaby, Snelland, LN3 — £425,000 • 3 bed • 2 bath • 2093 ft²


































