Ready-to-build nine-home site with rural views close to coast and market town.
- Full planning approved for nine detached dwellings (ref DC/23/4868/FUL)
- Freehold plot on edge of village with rural field views
- Served from previously consented access DC/21/3216/FUL
- Energy-efficient new-build designs with garages and gardens
- Large rectangular plot with woodland/hedgerow boundary privacy
- No flood risk; low local crime and excellent mobile signal
- Slow broadband speeds in the area may deter remote workers
- Local secondary provision includes a school rated "Requires improvement"
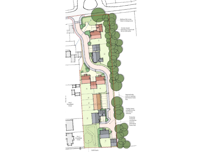
A rare edge-of-village development parcel with full planning consent (East Suffolk Council ref DC/23/4868/FUL) for nine new detached homes. The site sits adjoining the historic Sotterley Estate, with open agricultural views to the north and woodland/hedgerow boundaries that provide privacy and a strong rural setting. The consented scheme delivers a mix of 2, 3 and 4-bedroom two-storey homes, private gardens, garages and off-road parking, designed to be energy-efficient and family-focused.
This is a straightforward acquisition for a developer or investor: freehold title, served from a previously consented access (DC/21/3216/FUL), no flood risk and good road links to Beccles, the A12 and the Suffolk coast. The village location and proximity to popular coastal destinations make the site attractive for holiday homeowners, second-home purchasers or owner-occupiers seeking a rural lifestyle with commuter convenience.
Notable practical points are stated plainly. Broadband speeds in the area are slow, which may affect marketing to home-workers unless upgraded. Local secondary schooling provision includes at least one state school rated “Requires improvement”, which could influence family purchasers. Council tax details are not provided. The site is a large rectangular parcel on the village edge, so buyers should factor in potential planning conditions tied to countryside boundaries, tree preservation and landscaping commitments.
Overall, this is a ready-to-build, low-risk development opportunity in a desirable Suffolk setting. The planning permission and previously consented access substantially de-risk site delivery; value will be driven by build costs, local sales values and any required infrastructure or tree-protection works.
Plot for sale in Sotterley Road, Suffolk, NR34 — £750,000 • 1 bed • 1 bath
Land for sale in Cucumber Lane, Weston, NR34 — £680,000 • 1 bed • 1 bath
4 bedroom detached house for sale in Angel Lane, Blythburgh, Halesworth, Suffolk, IP19 — £300,000 • 4 bed • 3 bath • 4680 ft²
Plot for sale in Elm Tree Road, Oulton Broad, Lowestoft, NR33 — £125,000 • 1 bed • 1 bath • 376 ft²
Land for sale in Swan Lane, Barnby, NR34 — £590,000 • 1 bed • 1 bath
Land for sale in Beccles Road, Burgh St. Peter, Beccles, Norfolk, NR34 — £100,000 • 1 bed • 1 bath • 1001 ft²


























































