**Standout Features:**
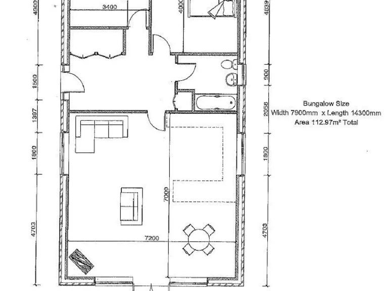
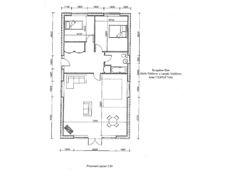
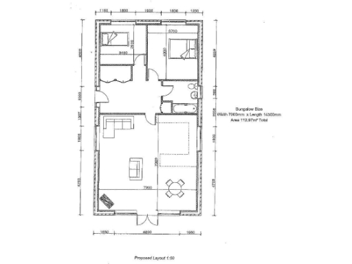
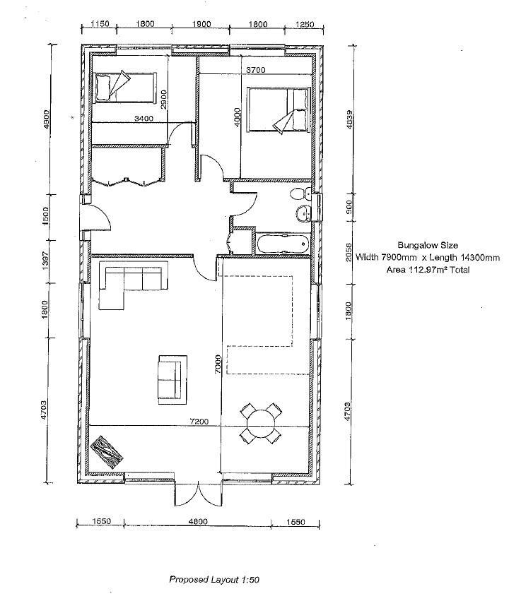
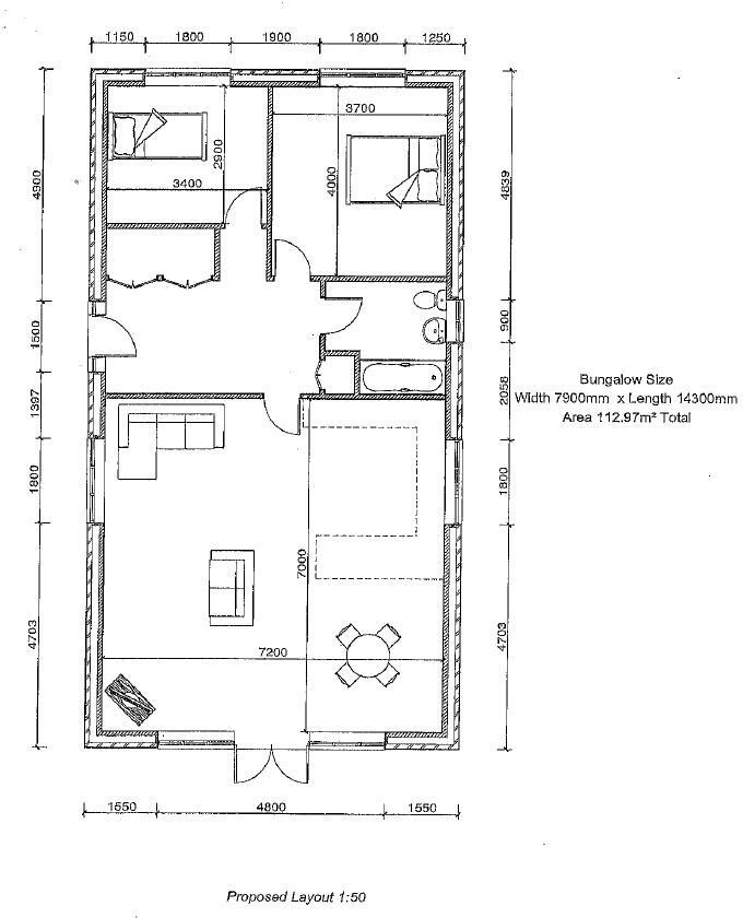
- **Building Plot**: Freehold with full planning permission for a 2-bedroom detached bungalow (granted October 2, 2023).
- **Location**: Quietly set off a private roadway, mere minutes from Oulton Broad and Lowestoft’s beach.
- **Size**: Spacious plot of approximately 350 square meters with additional parking space.
- **Utilities**: Mains water supply and very low flood risk.
- **Community**: Low crime rate and located in an affluent area with viable mobile and internet connectivity.
**Summary Description:**
Seize the opportunity to craft your dream home on this exceptional freehold building plot, ideally situated just off Elm Tree Road. With planning permission already in place for a modern 2-bedroom bungalow, this site offers the perfect balance of privacy and accessibility, nestled amongst mature trees and surrounded by tranquil greenery. The plot measures approximately 350 square meters, providing ample room for both your future home and serene garden space.
This sought-after location boasts easy access to Oulton Broad’s recreational facilities and the stunning beaches of Lowestoft, just a few miles away. Benefit from excellent local amenities and highly-rated schools in a low-crime, family-friendly environment. While there are rights of way across the unmade access road, potential buyers should consider future repairs as needed. Embrace this rare chance to develop a property tailored to your lifestyle in an increasingly desirable area—opportunity awaits, and it won’t last long!
Land for sale in Building Plots Marsh Lane, Carlton Colville, Lowestoft, NR33 — £500,000 • 1 bed • 1 bath
Land for sale in Marsh Lane, Carlton Colville, Lowestoft, NR33 — £500,000 • 1 bed • 1 bath
Land for sale in Land/Grass Verge, Fronting Long Road, Lowestoft, Suffolk NR33 9JJ, NR33 — £450 • 1 bed • 1 bath
3 bedroom detached house for sale in Normanston Drive, Lowestoft - House And Building Plot, NR32 — £300,000 • 3 bed • 1 bath • 1411 ft²
Land for sale in Building Plots Marsh Lane, Carlton Colville, Lowestoft, NR33 — £500,000 • 1 bed • 1 bath
Land for sale in Ringsfield Road, Beccles, NR34 — £250,000 • 4 bed • 4 bath






















