Self-build opportunity in a tranquil riverside village with field views.
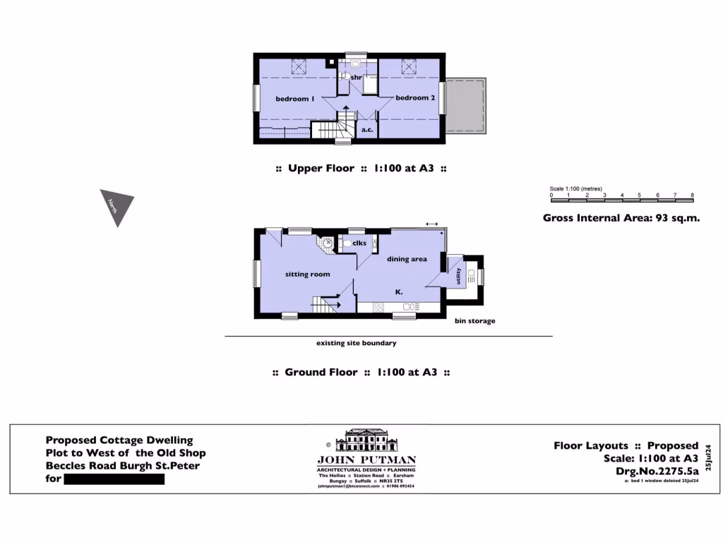
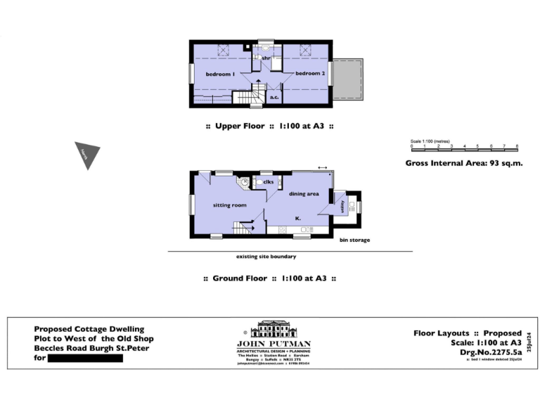
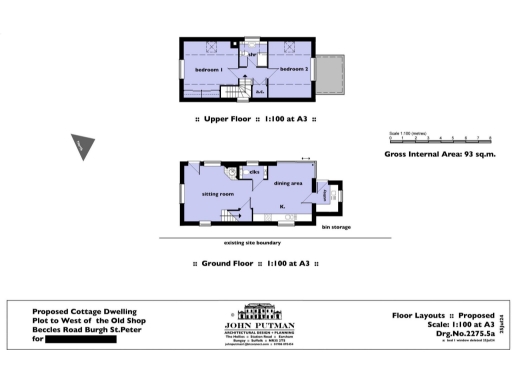
Planning permission granted for a one-and-a-half storey cottage (ref 2024/1992).
Peaceful village setting with rear views over open fields.
Off-street parking provided; small rear garden overlooking fields.
Existing garage/outbuilding present but shows disrepair and vegetation.
Plot is small — limited scope for large extensions or landscaping.
Broadband speeds are slow; mobile signal average.
Tenure not specified — buyers must verify ownership details.
No flood risk reported; local crime levels very low.
This tucked-away plot in Burgh St. Peter comes with granted self-build planning permission for a one-and-a-half storey cottage (planning ref: 2024/1992). The approved design offers a triple-aspect sitting room, kitchen/dining, utility and ground-floor WC, with two double bedrooms and a shower room above — a compact, sensible layout aimed at practical family living or a first self-build project.
The site benefits from a peaceful village location with field views to the rear, off-street parking and an existing garage/outbuilding that could serve storage or be considered for conversion subject to consents. There are useful local amenities nearby — a farm shop/café, well-regarded pub and the Waveney River Centre with family facilities — and primary and secondary schools within reasonable distance.
Buyers should note a few material points: the outbuilding shows signs of disrepair and vegetation; broadband speeds are slow; tenure is not specified; and the plot is small, limiting extensive landscaping or large ancillary buildings. Flood risk is reported as none and local crime levels are very low, but anyone considering purchase should verify services, tenure and any further constraints before committing.
Offered at a modest price point, this plot suits a buyer wanting a manageable self-build in a tranquil countryside setting — ideal for a first-time self-builder or someone downsizing to a simpler, newly constructed home.
Land for sale in Swan Lane, Barnby, NR34 — £590,000 • 1 bed • 1 bath
Land for sale in Hillside Road West, Bungay, NR35 — £200,000 • 1 bed • 1 bath
Plot for sale in Elm Tree Road, Oulton Broad, Lowestoft, NR33 — £125,000 • 1 bed • 1 bath • 376 ft²
Plot for sale in Sotterley Road, Suffolk, NR34 — £750,000 • 1 bed • 1 bath
Land for sale in Cucumber Lane, Weston, NR34 — £680,000 • 1 bed • 1 bath
2 bedroom cottage for sale in Staithe Road, Beccles, NR34 0, NR34 — £165,000 • 2 bed • 1 bath • 1743 ft²






































