Family-friendly home near town centre, schools and countryside with garden.
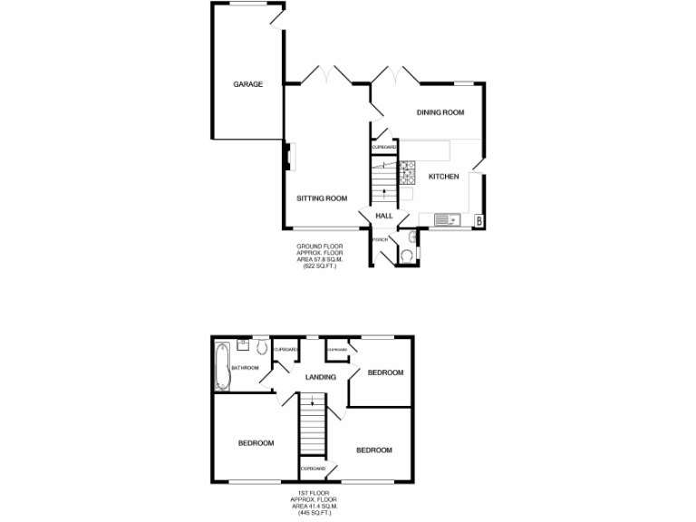
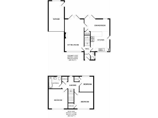
Three bedrooms in a link-detached house, built early 1980s
Open-plan kitchen/dining room and sitting room with fireplace
Private south-facing rear garden and decent plot size
Garage and driveway parking linked to the house
PVCu double-glazing (installed before 2002) and gas central heating
Single family bathroom only — limited bathroom provision
Partial cavity wall insulation assumed; possible energy improvements
Council tax band above average
This well-presented three-bedroom link-detached house, built in the early 1980s, sits on a decent plot just over half a mile from Steyning town centre. The ground floor offers an open-plan kitchen/dining room that flows to a sitting room with an open fireplace, while PVCu double-glazed windows and gas central heating provide everyday comfort. A private, south-facing rear garden and a garage with driveway complete the outdoor space.
The location suits families: primary and secondary schools are within easy walking distance, and local amenities include shops, a health centre, library and leisure centre with pool. The town lies at the foot of the South Downs with the coast a short drive away, offering easy access to countryside and seaside recreation. Broadband is fast and mobile signal is excellent, and the area records low crime.
Buyers should note there is a single family bathroom and that the double glazing was installed before 2002; the cavity walls are partially insulated (assumed). Council tax is above average. The house presents straightforward scope for updating rather than a major renovation, making it suitable for families wanting immediate occupation with potential to personalise over time.
4 bedroom detached house for sale in Newham Lane, Steyning, BN44 3LR, BN44 — £650,000 • 4 bed • 2 bath • 1700 ft²
3 bedroom detached house for sale in Kings Barn Lane, Steyning, West Sussex, BN44 — £750,000 • 3 bed • 1 bath • 1249 ft²
4 bedroom detached house for sale in Steyning, BN44 — £650,000 • 4 bed • 2 bath • 1180 ft²
4 bedroom detached house for sale in Bowmans Close, Steyning, West Sussex, BN44 3SR, BN44 — £615,000 • 4 bed • 2 bath • 1456 ft²
3 bedroom semi-detached house for sale in Kings Barn Lane, Steyning, BN44 3YR, BN44 — £524,000 • 3 bed • 1 bath • 1356 ft²
5 bedroom detached house for sale in Goring Road, Steyning, BN44 3GF, BN44 — £1,000,000 • 5 bed • 3 bath • 2175 ft²










































