Income now with development upside in a busy Worthing parade.
- Large mixed-use freehold, total c.2,852 sq ft
- Ground-floor double-fronted commercial unit (vacant on completion)
- First-floor self-contained two-bedroom flat let at £950 pcm
- Off-street forecourt parking for 1–2 cars
- Possible rear development subject to planning consent
- EPC D for the residential unit (147B)
- Solid brick construction; likely no cavity insulation
- Local area records higher crime rates
A substantial mixed-use freehold on Tarring Road offering immediate income and medium-term development upside. The property comprises a double-fronted ground-floor commercial unit (vacant for purchaser) and a self-contained two-bedroom flat above let at £950 pcm, providing an existing rental return with clear scope for uplift.
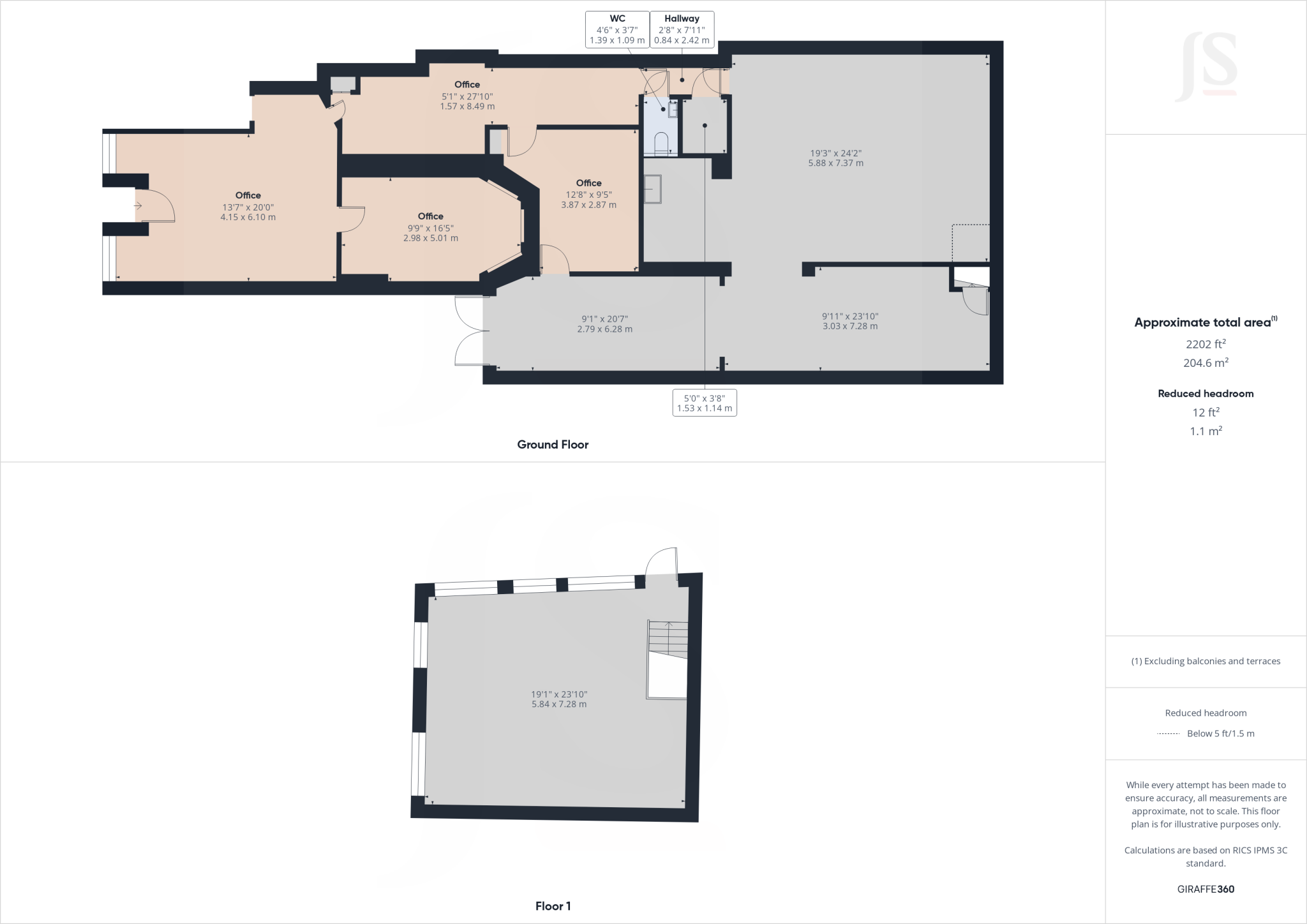
The commercial space is bright, with skylights, LED lighting, air conditioning, partitioned offices and generous rear storage plus first-floor workshop space. There is off-street forecourt parking for one to two cars and potential scope to develop the rear (subject to planning) to increase accommodation or income.
Practical considerations: the building is traditional solid-brick Edwardian construction with no assumed cavity insulation, and the flat holds an EPC rating of D (68). The local area records higher crime levels, which may influence lettings or repurposing decisions. Planning advice is recommended before pursuing any extension or change of use.
Overall this is a pragmatic purchase for an investor or developer seeking an income-producing asset with immediate asset-management opportunities — consolidation of the commercial unit, targeted refurbishment of the flat, and exploration of rear-site development could each enhance value.
Mixed use property for sale in 145-147 Tarring Road, Worthing, West Sussex, BN11 4HE, BN11 — £750,000 • 1 bed • 1 bath • 4026 ft²
Mixed use property for sale in 2 Gratwicke Road, Worthing, West Sussex, BN11 4BH, BN11 — £450,000 • 1 bed • 1 bath • 1055 ft²
High street retail property for sale in 58-59 New Broadway, Worthing, West Sussex, BN11 4HS, BN11 — £100,000 • 1 bed • 1 bath • 516 ft²
High street retail property for sale in 42 Broadwater Road, Worthing, West Sussex, BN14 — £215,000 • 1 bed • 1 bath • 1175 ft²
Mixed use property for sale in 39-41 Rowlands Road, Worthing, West Sussex, BN11 3JJ, BN11 — £750,000 • 1 bed • 1 bath • 4491 ft²
Mixed use property for sale in 19 Rowlands Road, Worthing, West Sussex, BN11 3JJ, BN11 — £775,000 • 1 bed • 1 bath • 1891 ft²


















































