Fully let mixed-use freehold with immediate rental income and upgrade potential.
Income-producing freehold generating £46,704 per annum
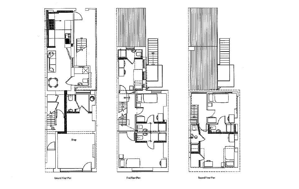
An income-producing, mixed-use freehold in Worthing town centre, strategically positioned on a busy thoroughfare with high pedestrian flow. The building comprises a fully let ground-floor commercial unit and a fully let HMO above, providing a reported combined income of £46,704 per year and immediate cashflow for an investor.
The property is a period mid-terrace (pre-1900) with a Georgian shopfront and traditional solid brick construction. Its EPC ratings are B (ground) and C (flat), and the site benefits from 100% Small Business Rate Relief (STS) for the commercial element. Public transport and Worthing station are within walking distance, and the area hosts a wide range of local amenities that support tenant demand.
Buyers should note material negatives up front: the neighbourhood records very high crime and above-average deprivation, which can affect tenant mix and management costs. Heating is electric via room heaters and the solid walls are assumed uninsulated, so energy efficiency improvements may be needed. The plot is small and rooms are compact, limiting expansion without planning.
This holding suits investors seeking immediate rental income with short-term upside from energy upgrades, potential reconfiguration, or future rent reviews. It is best for buyers experienced in central urban lettings and HMO management who can factor in higher management and maintenance requirements associated with the location and building fabric.
Mixed use property for sale in 19 Rowlands Road, Worthing, West Sussex, BN11 3JJ, BN11 — £775,000 • 1 bed • 1 bath • 1891 ft²
Mixed use property for sale in 39-41 Rowlands Road, Worthing, West Sussex, BN11 3JJ, BN11 — £750,000 • 1 bed • 1 bath • 4491 ft²
Shop for sale in Montague Street, Worthing, BN11 — £375,000 • 1 bed • 1 bath • 1111 ft²
Mixed use property for sale in 145-147 Tarring Road, Worthing, West Sussex, BN11 4HE, BN11 — £800,000 • 1 bed • 1 bath • 4026 ft²
Cafe for sale in 38 - 40 Ann Street, Worthing, West Sussex, BN11 — £420,000 • 1 bed • 1 bath • 3469 ft²
Studio apartment for sale in Montague Street, Worthing, BN11 — £375,000 • 1 bed • 1 bath • 613 ft²










