Income-producing asset with development upside and forecourt parking.
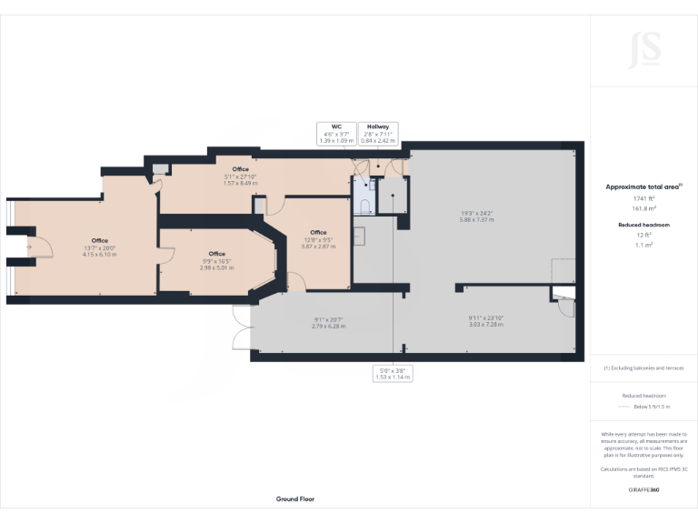
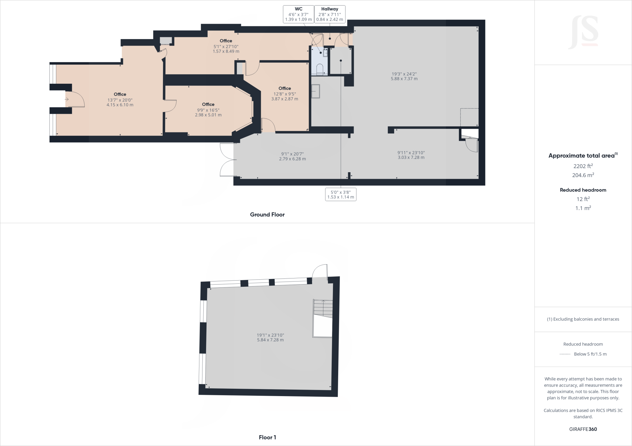
Large mixed-use freehold of approximately 4,026 sq ft
A substantial mixed-use freehold on busy Tarring Road offering immediate rental income and clear development upside. The property comprises a large double-fronted commercial unit (vacant on completion), a self-contained two-bedroom flat and an adjoining four-bedroom house — total area about 4,026 sq ft with forecourt parking. Current residential rent totals £20,600 pa; overall income is £26,400 pa with scope for uplift.
The commercial ground floor is well-lit with skylights, air conditioning and flexible partitioning; it will be offered with vacant possession, making it suitable for an owner-occupier or a new lettable unit. The upper flat and house are long-let and well positioned for ongoing demand in Worthing. The rear site offers potential for additional development, subject to planning consent (STNC).
Known negatives are factual and material: the building is Edwardian solid brick with no installed cavity insulation (assumed), EPCs currently at D (66 and 68), and the local area records higher-than-average crime rates. The commercial unit has no recent EPC publicly supplied. Refurbishment and modernisation will be needed to maximise rental values and energy performance.
This is a pragmatic opportunity for an investor or developer who can accept short-term works to unlock longer-term value — through refurbishment, rental review, subdivision of the house (subject to consent), or rear redevelopment. Excellent transport links and a busy local retail catchment support both commercial and residential demand.
Mixed use property for sale in 147 Tarring Road, Worthing, West Sussex, BN11 4HE, BN11 — £400,000 • 1 bed • 1 bath • 2852 ft²
Mixed use property for sale in 2 Gratwicke Road, Worthing, West Sussex, BN11 4BH, BN11 — £450,000 • 1 bed • 1 bath • 1055 ft²
High street retail property for sale in 58-59 New Broadway, Worthing, West Sussex, BN11 4HS, BN11 — £100,000 • 1 bed • 1 bath • 516 ft²
Mixed use property for sale in 19 Rowlands Road, Worthing, West Sussex, BN11 3JJ, BN11 — £775,000 • 1 bed • 1 bath • 1891 ft²
High street retail property for sale in 42 Broadwater Road, Worthing, West Sussex, BN14 — £215,000 • 1 bed • 1 bath • 1175 ft²
Mixed use property for sale in 39-41 Rowlands Road, Worthing, West Sussex, BN11 3JJ, BN11 — £750,000 • 1 bed • 1 bath • 4491 ft²


























































































