PL6 5JB - 6 bed spacious detached family home in Glade Close, PL6 5JB

View on Property Piper

6 bedroom detached house for sale in Derriford, Plymouth, PL6

Summary - 7 GLADE CLOSE PLYMOUTH PL6 5JB

6 bed 3 bath Detached

Large modern family home on a very large plot with garage and gated cul-de-sac location.
Six bedrooms including master with dressing room and en-suite
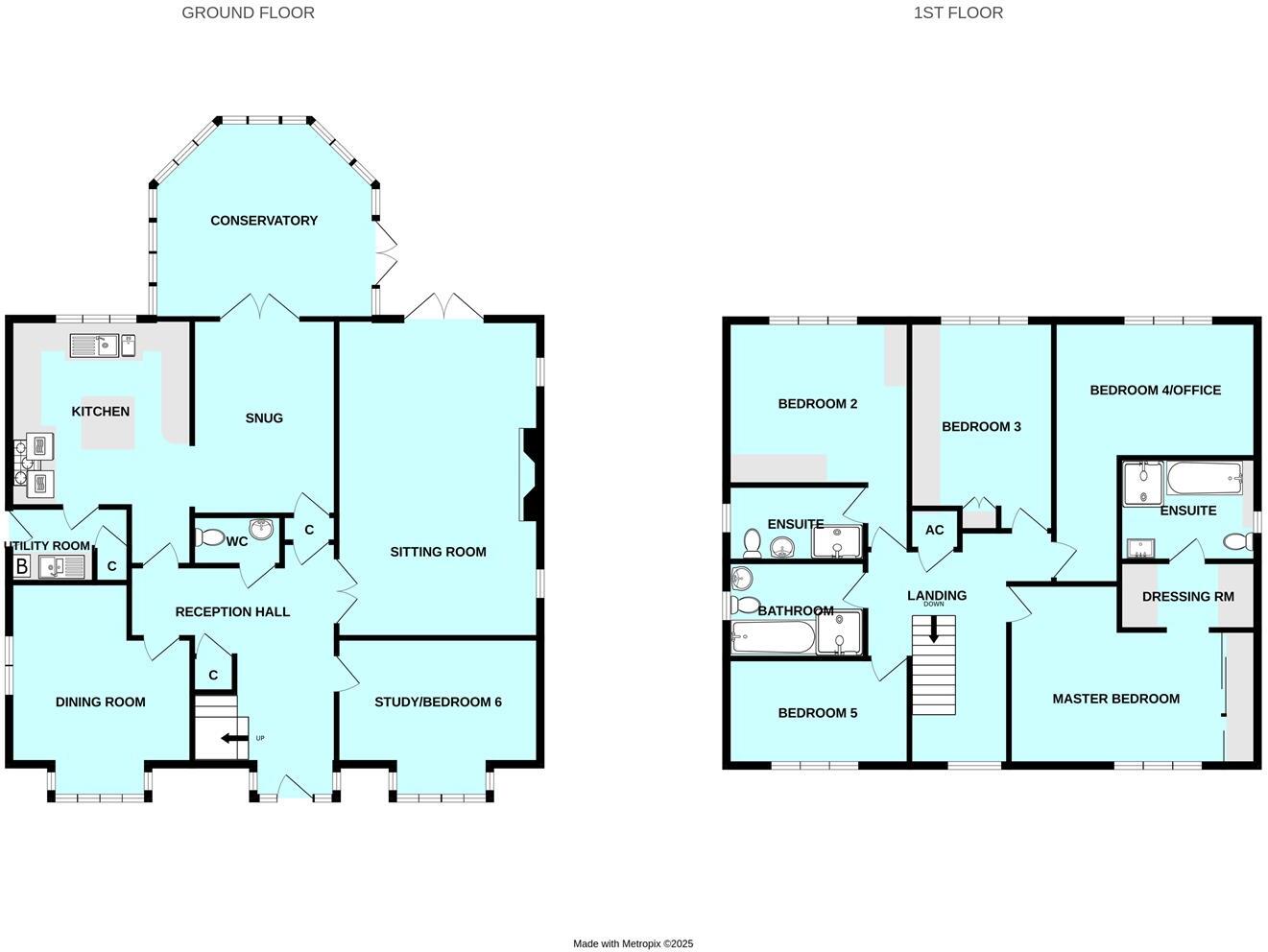
This substantial detached home in Glade Close offers generous, adaptable accommodation across two floors — designed for a busy family and built to a modern specification in c.2002. The ground floor provides three reception rooms, a study/bedroom six, a large conservatory and a well-equipped kitchen with utility, while the first floor hosts a master suite with dressing room and en-suite, a guest en-suite and three further bedrooms.

Set on a very large, mature plot at the head of a quiet cul-de-sac in a secure gated enclave, the property benefits from excellent parking (double-width, double-length drive) and a large detached double garage. The landscaped rear garden includes an extensive patio, lawns, summer house and garden store — ideal for family entertaining but requiring routine upkeep to maintain the planted borders and outbuildings.

Practical features include quality double glazing, mains gas boiler and radiators, fast broadband and excellent mobile signal; the area has low crime and highly regarded local schools nearby. The house is vacant and offered with no onward chain, which supports a straightforward move.

Considerations: the home sits in Council Tax Band G, so running costs are relatively high. The property is a large family house — buyers seeking a smaller, lower-maintenance home should note the garden and overall footprint will require ongoing care.

Property Details

Brochure Descriptions

Image Descriptions

Floorplan Description

Rooms

Textual Property Features

Target Audience

AI Tags

Detected Visual Features

EPC Details

Nearby Schools

Nearest Bars And Restaurants

,,,,}

Nearest General Shops

,,}

Nearest Grocery shops

,,}

Nearest Supermarkets

,,}

Nearest Religious buildings

,,}

Nearest Medical buildings

,,,}

Nearest Leisure Facilities

,,,,}

Nearest Tourist attractions

,,}

Nearest Train stations

,,,,}

Nearest Bus stations and stops

,,,,}

Nearest Hotels

,,}

Tags

Local Market Stats

AirBnB Data

Similar Properties

Meta

High Res Images

Compatible Images

Low res Images

Thumbnails

Raw Images

High Res Floorplan Images

Compatible Floorplan Images

Low res Floorplan Images

FloorplanImages Thumbnail

Raw Floorplan Images