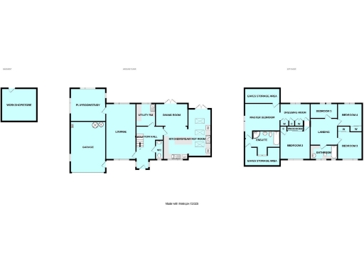
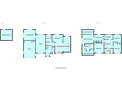
- Five double bedrooms, master with dressing room and en-suite
- Large open-plan kitchen/breakfast/dining room with island
- Recent kitchen upgrades: new appliances, granite worktops, Quooker
- Vaillant gas boiler and large Viessmann hot water tanks
- Generous landscaped rear garden with new patio/seating areas
- Large integral garage plus workshop; driveway for up to six cars
- Flexible layout with potential for sixth bedroom or annexe
- Council Tax Band G — relatively high running cost
A spacious, well-presented five-bedroom detached home on a generous plot in Derriford, offered as freehold and ready for family living. The ground floor is arranged for modern family life with a large open-plan kitchen/breakfast/dining room, separate lounge and an additional reception/playroom; recent kitchen upgrades include new appliances, granite worktops and a Quooker. The property sits behind a wide block-paved drive with parking for multiple vehicles and a large integral garage with workshop and remote roller door.
The first-floor master suite includes a dressing room and full en-suite; four further bedrooms and a family bathroom complete the accommodation. Heating and hot water are provided by a Vaillant gas boiler with large capacity tanks (Viessmann) and the house benefits from uPVC double glazing. The layout is flexible — there is scope to create a sixth bedroom or a small annexe subject to consent, making the house adaptable as family needs change.
Well-maintained landscaped rear gardens and new patio/seating areas provide attractive outdoor space for entertaining and family use. Practical details: freehold tenure, no flood risk, low local crime and excellent broadband and mobile signal. Buyers should note the property is from the 1960s so some original building elements remain, and it falls in Council Tax Band G (relatively costly). Overall this is a large, comfortable family home in a popular suburban location with strong parking, garaging and flexible living space.































































































































































































