Chain‑free lower‑ground apartment with direct outdoor access and ready‑to‑move‑in finishes.
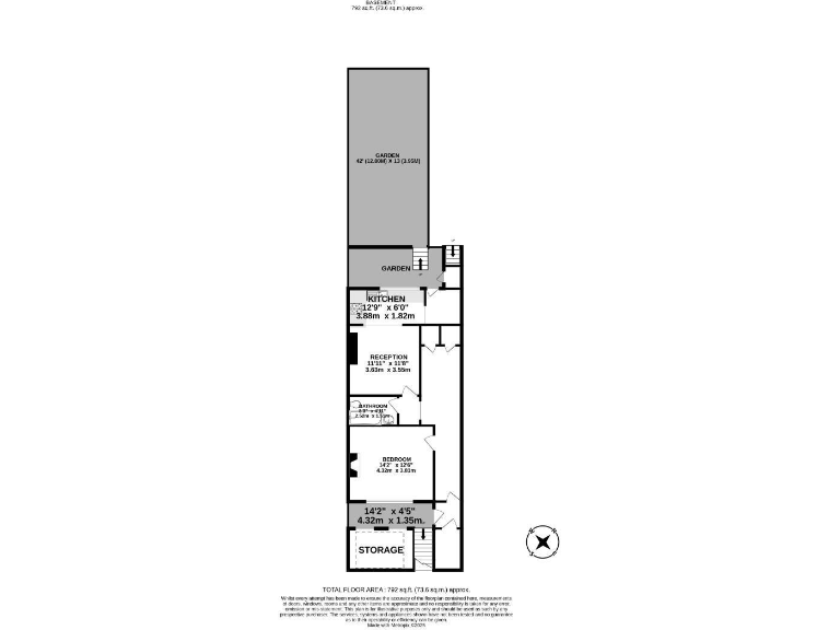
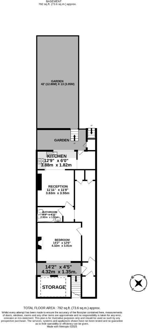
Approximately 792 sq ft (≈73 sq m) one‑bed flat
Set within a Victorian terrace on a quiet Islington street, this lower‑ground period conversion offers a rare combination of space and outdoor living. At approximately 792 sq ft (≈73 sq m) the layout feels generous for a one‑bed flat, with a double bedroom, modern bathroom, reception room and a fitted kitchen that opens directly onto a private garden of around 42 ft (12.8 m).
Practical ownership is straightforward: the flat is chain‑free and sold with a share of freehold. The current finishes are clean and contemporary, with wood‑effect flooring and a modern kitchen that will suit first‑time buyers or buy‑to‑let investors seeking a ready‑to‑move‑into home in a well‑connected neighbourhood. Excellent Overground links and frequent buses give quick access to Canonbury, Dalston and the City.
There is clear potential to add value: planning permission for a generous extension was previously granted, although that consent has lapsed and any future work would require fresh approvals. Buyers should note the flat is lower‑ground, so while rooms receive good light the level differs from street level. The building’s solid brick construction is typical of its era but likely needs insulation upgrades if higher thermal efficiency is desired.
The surrounding area is inner‑city cosmopolitan with strong local amenities and good schools nearby, but the locality is flagged as relatively deprived, and buyers should factor in the typical mixed‑use urban environment. Council tax is described as affordable and broadband and mobile connectivity are strong, which supports both home and hybrid working.
1 bedroom flat for sale in New North Road, Islington, London, N1 7BJ, N1 — £450,000 • 1 bed • 1 bath • 474 ft²
2 bedroom flat for sale in Grosvenor Avenue, N5 2NH, N5 — £850,000 • 2 bed • 1 bath • 1015 ft²
Studio flat for sale in St. Pauls Road, London, N1 — £375,000 • 1 bed • 1 bath • 546 ft²
2 bedroom apartment for sale in Mildmay Park, Islington, London, N1 — £850,000 • 2 bed • 2 bath • 778 ft²
1 bedroom apartment for sale in Beresford Road, London, N5 — £565,000 • 1 bed • 1 bath • 478 ft²
1 bedroom flat for sale in Caledonian Road,
Kings Cross, N1 — £450,000 • 1 bed • 1 bath • 603 ft²


















































