Build a single-storey 3-bed home with garden and four parking spaces.
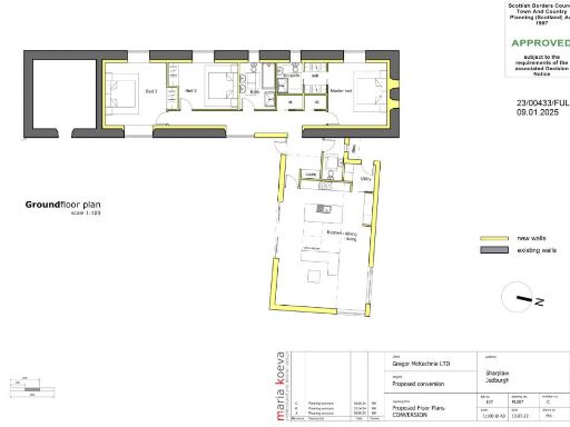
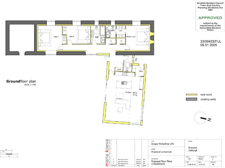
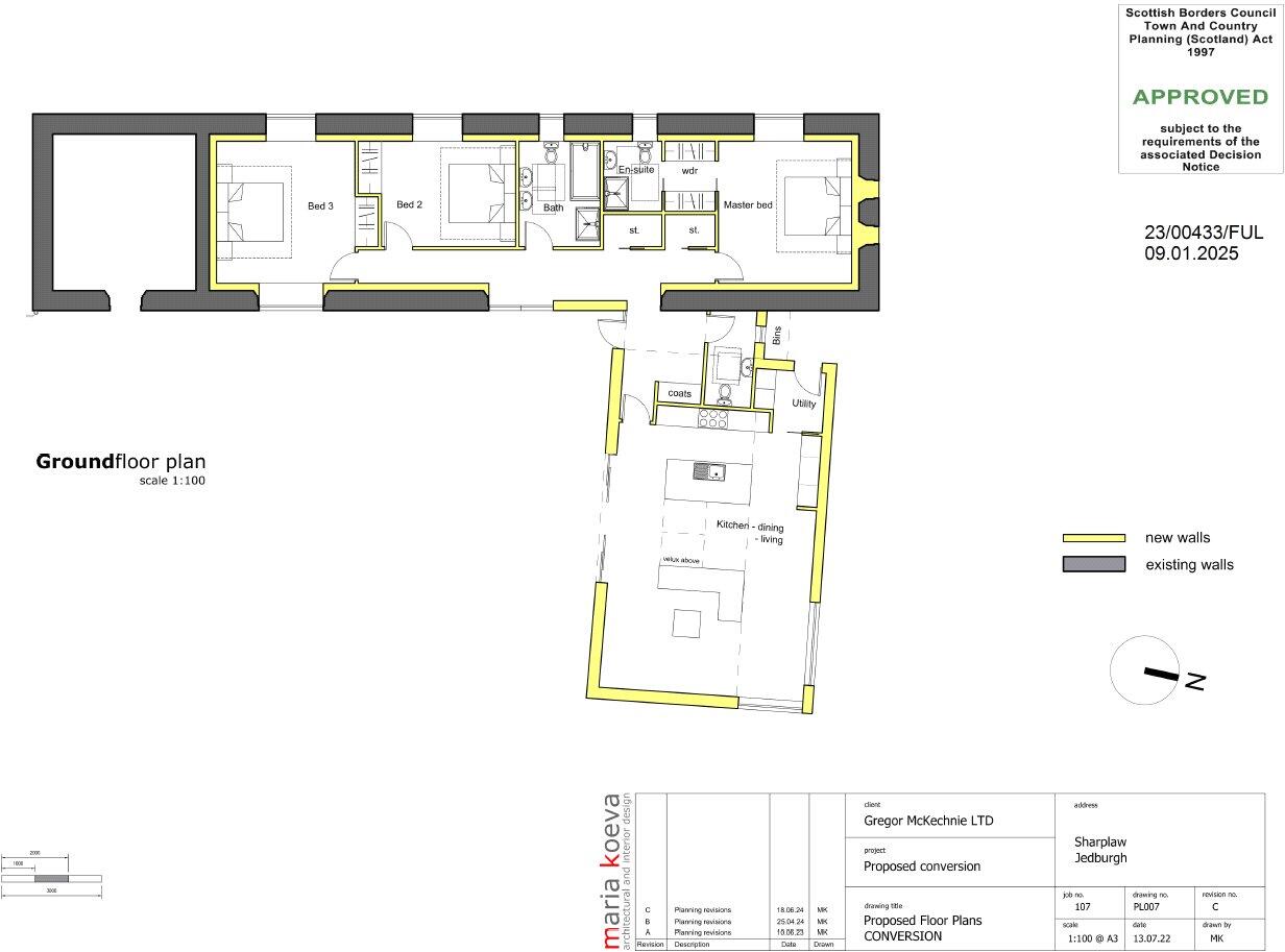
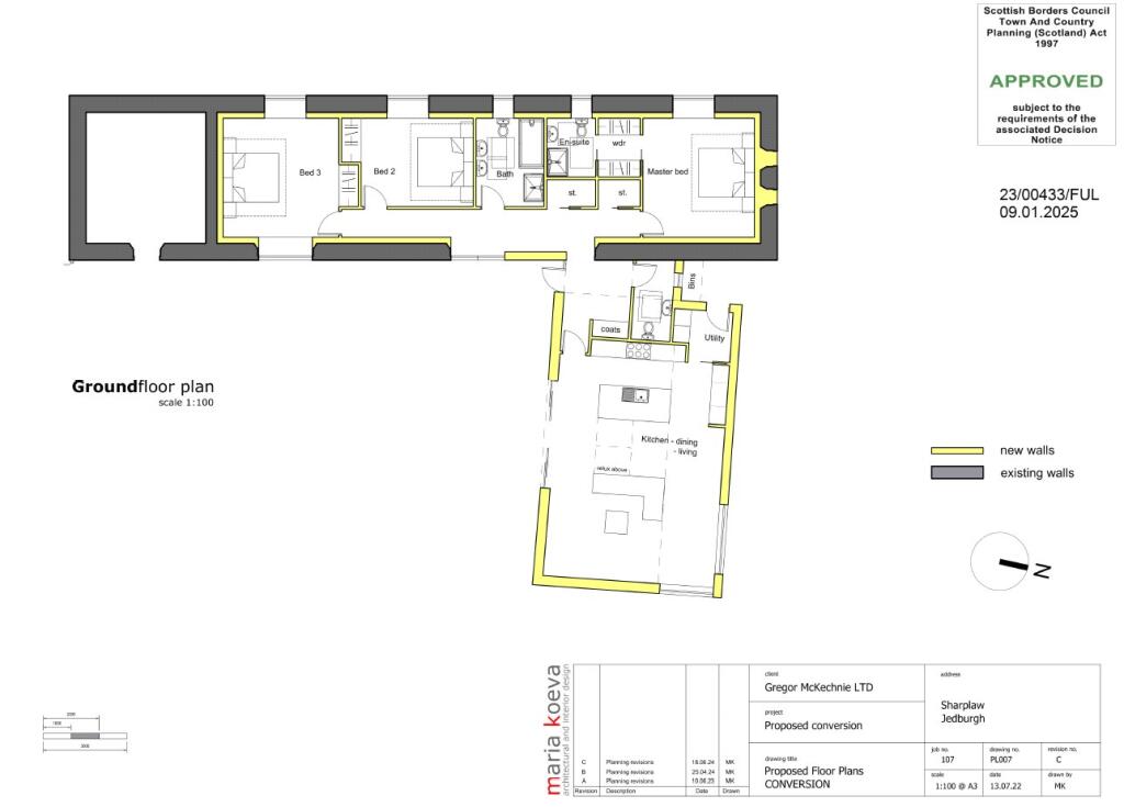
Full planning permission for 3-bedroom single-storey conversion (Ref: 23/00433/FUL)
A rare Borders plot with full planning permission (Ref: 23/00433/FUL) to convert and extend a former outbuilding into a single-storey 3-bedroom home. The approved layout delivers a generous open-plan living, kitchen and dining area, a principal bedroom with en suite, two further double bedrooms, utility and family bathroom — all set within a private garden and off-street parking for four cars. The peaceful rural setting offers wide countryside views and easy access to Jedburgh and nearby Borders towns.
This plot suits buyers seeking a self-build conversion, a holiday home or a rental/investment project. Permissions are already in place, reducing lead time compared with a new planning application. The site may be purchased individually or together with two other lots at Sharplaw, offering flexibility for a single buyer or a small development investor.
Buyers should note practical considerations: broadband speeds are reported as slow and purchasers are advised to obtain independent advice on the availability and cost of connecting services. The immediate area is classified as remoter agricultural countryside and recorded as very deprived, which may affect local service provision and resale dynamics. The site benefits from excellent mobile signal but any purchaser should factor in conversion costs and on-site works associated with adapting a former outbuilding to modern standards.
Overall, Lot 3 is a straightforward opportunity to deliver a contemporary single-storey home in a tranquil Borders location with planning cleared and parking and garden already considered in the consented design.
3 bedroom house for sale in The Steading, Broomhills, Chesters, Nr Hawick, TD9 8TJ, TD9 — £120,000 • 3 bed • 3 bath • 667 ft²
Plot for sale in Residential Plots, Smailholm Knowe, Smailholm, Kelso, TD5 — £175,000 • 1 bed • 1 bath • 961 ft²
Plot for sale in Charlesfield, St. Boswells, Melrose, TD6 — £95,000 • 1 bed • 1 bath
Plot for sale in Residential Plot, Softlaw East Mains Kelso, Roxburghshire, TD5 8PA, TD5 — £150,000 • 4 bed • 1 bath • 7750 ft²
Plot for sale in Charlesfield, St. Boswells, Melrose, TD6 — £185,000 • 1 bed • 1 bath
Land for sale in Plot 5, Leaburn Drive, Hawick, TD9 9NZ, TD9 — £85,000 • 1 bed • 1 bath


















































