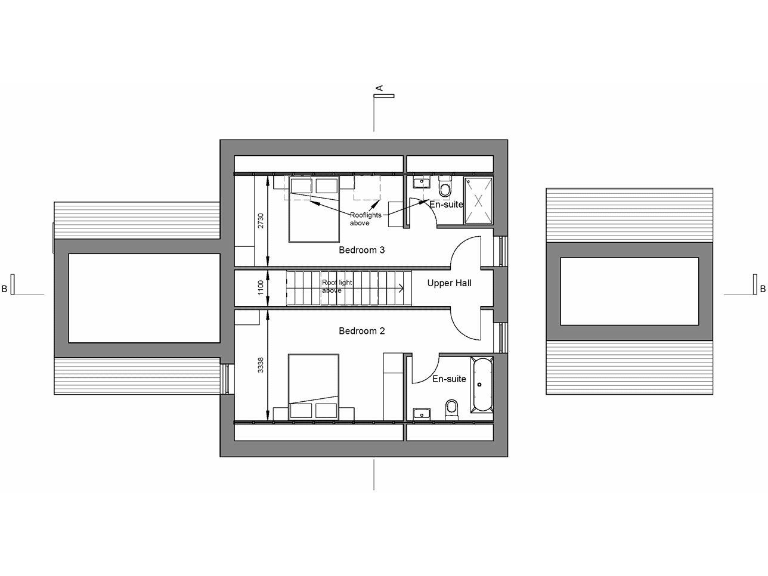
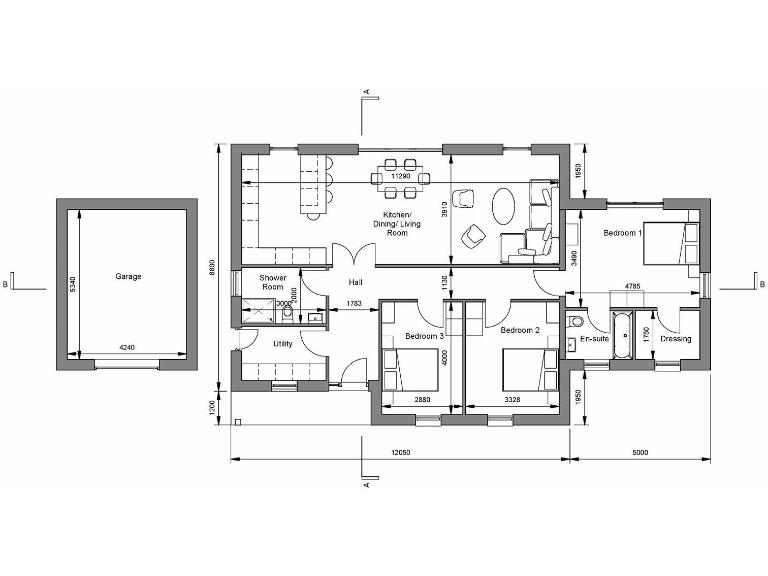
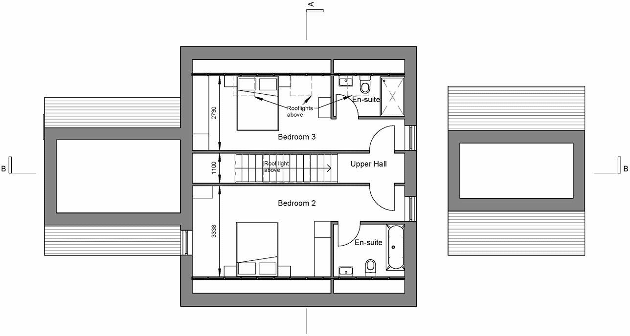
**Notable Features:**
- Generous 1.3-acre residential plot
- Full planning permission for two contemporary dwellings (Ref: 22/00323/FUL)
- Beautiful rural location with extensive views
- Close proximity to the village hall and a historic Church (1632)
- Well-defined outdoor spaces with potential for gardens
- Average mobile and broadband connectivity
**Potential Concerns:**
- Requires some infrastructure development (private drainage, nearby mains for electricity and water)
- Located in an area classified as "very deprived"
Discover a rare opportunity to create your dream homes in the charming village of Smailholm, where planning permission is already in place for two thoughtfully designed dwellings on a generous 1.3-acre plot. Perfect for families or investors, this spacious site boasts expansive rural vistas, enhancing the feeling of tranquility and community.
Embrace the unique character of this conservation area, surrounded by scenic landscapes and rich history, including the iconic Smailholm Tower and local amenities in nearby Kelso. The proposed homes offer contemporary layouts, maximizing natural light and outdoor space for leisure or potential gardening.
While the infrastructure will require some attention with private drainage and access to utilities, the stunning setting and promising plans make this a compelling investment with endless future potential. Act quickly and envision the lifestyle this exclusive location affords!
Plot for sale in Two Residential Building Plots, Upper Huntlywood, Earlston, Scottish Borders, TD4 — £220,000 • 1 bed • 1 bath
Plot for sale in Greenlaw, Duns, Scottish Borders, TD10 — £125,000 • 1 bed • 1 bath
Plot for sale in Charlesfield, St. Boswells, Melrose, TD6 — £185,000 • 1 bed • 1 bath
Plot for sale in Plot 4, Birkenside Farm, Earlston, Berwickshire, TD4 6AR, TD4 — £150,000 • 1 bed • 1 bath • 12197 ft²
Land for sale in Sharplaw Development Site, Sharplaw Road, Jedburgh, Scottish Borders, TD8 — £470,000 • 1 bed • 1 bath
Plot for sale in Residential Plot, Ladyrig, Kelso, Scottish Borders, TD5 — £149,000 • 1 bed • 1 bath • 5726 ft²






























































