Stone-built rural project with expansive views and included workshop.
Full planning application being lodged for a two-storey, three-bedroom conversion
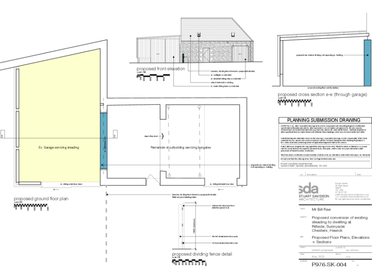
A traditional stone steading offering a clear development opportunity in open Borders countryside. The existing single-storey workshop/steading has three internal sections and generous loft space, and a full planning application is being lodged to convert the building into a two-storey, three-bedroom home with parking and gardens. The plot totals around 0.4 acres and includes an adjacent metal-framed workshop (approx 6.2m x 10m) for storage or further conversion potential.
The site suits a buyer comfortable with rural renovation and planning-led change. Services include mains water and electricity; broadband speeds are fast and mobile signal is average. The property’s modest internal area (about 667 sq ft) and the current layout mean substantial structural and internal works are likely if pursuing the two-storey conversion shown in the submitted drawings.
Benefits include extensive, open views, generous external space and proximity to Hawick and Jedburgh (around nine miles). The location supports outdoor activities and countryside living, but the immediate area is classified as remoter and agriculturally focused, with a higher level of area deprivation; local amenities are limited. There is no flood risk recorded. Buyers should factor in conversion costs, planning risk, and access/shared drive arrangements with neighbouring properties.
4 bedroom detached house for sale in Colislinn Steadings, Newmill On Slitrig, Hawick, Scottish Borders, TD9 — £750,000 • 4 bed • 4 bath • 3946 ft²
4 bedroom bungalow for sale in Bungalow at Broomhills, Chesters, Nr Hawick, TD9 8TJ, TD9 — £425,000 • 4 bed • 2 bath
Land for sale in Plot 5, Leaburn Drive, Hawick, TD9 9NZ, TD9 — £85,000 • 1 bed • 1 bath
Farm land for sale in Lot 2 Hyndlee, Hawick, TD9 9TB, TD9 — £505,000 • 1 bed • 1 bath • 8163 ft²
Land for sale in Crumhaugh Road, Hawick, TD9 — £400,000 • 1 bed • 1 bath
4 bedroom detached house for sale in Colislinn Steadings, Newmill On Slitrig, Hawick, Roxburghshire, TD9 — £750,000 • 4 bed • 4 bath • 3946 ft²


























































