**Standout Features:**
- **Location:** Central High Street in Blaenau Ffestiniog, a historic mining town.
- **Planning Permission:** Granted for a mixed-use development including residential and retail spaces.
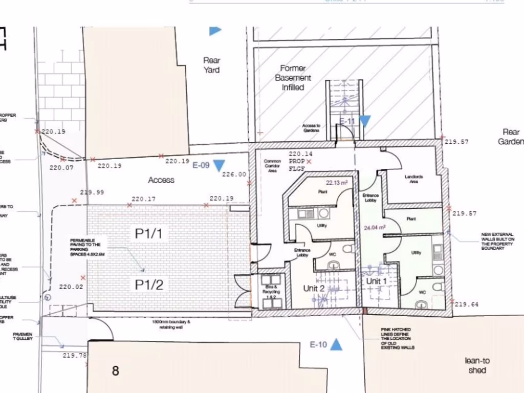
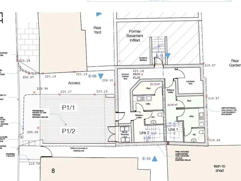
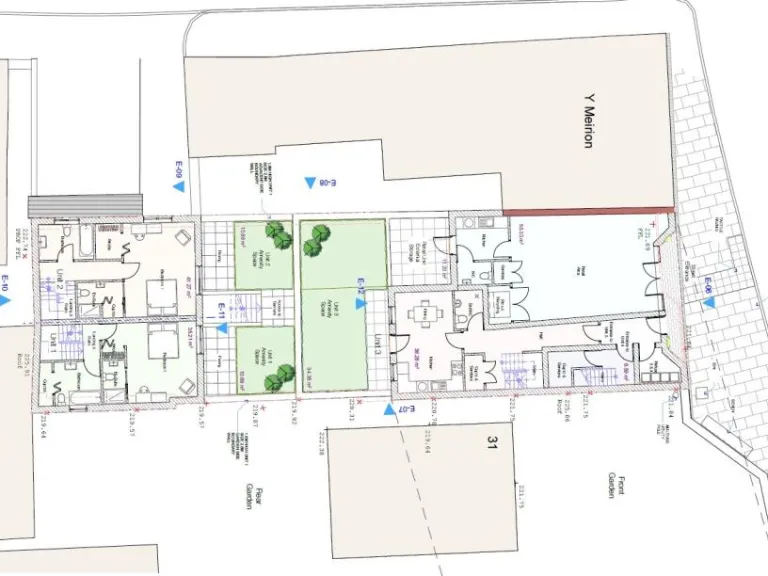
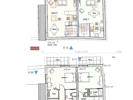
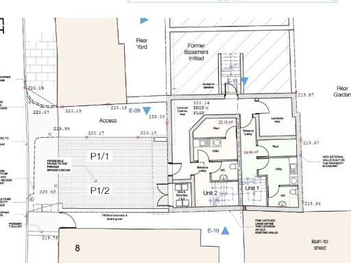
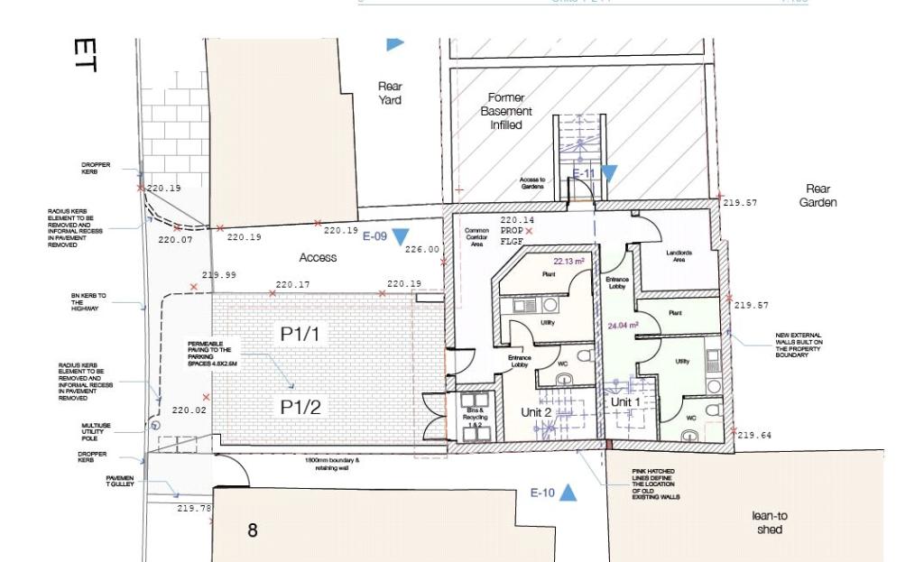
- **Development Potential:** Plans for two 1-bedroom townhouses, a 2-bedroom apartment, and a 1-bedroom maisonette.
- **Parking:** Allocated parking spaces included in the project plans.
- **Amenities:** Nearby access to multiple shops, eateries, and leisure facilities.
- **Accessibility:** Excellent mobile signal and fast broadband speeds.
**Summary:**
This exciting freehold development site located at 30 High Street, Blaenau Ffestiniog offers a unique opportunity for investors and developers alike. With planning permission already granted for a mixed-use premises, the site presents a vision of transforming the local area with a retail unit, two 1-bedroom townhouses, a first-floor two-bedroom apartment, and a one-bedroom maisonette. The location is ideal, nestled in a town known as the Slate Capital of the World and now participating in a UNESCO Heritage Site, ensuring vibrant foot traffic and potential rental interest.
Nearby amenities and low crime rates add to its appeal, while the allocated parking and planned amenity space further enhance the project's attractiveness. While some may consider the area’s socio-economic challenges, it reflects immense potential for development and growth, especially given the ongoing interest in Blaenau Ffestiniog's historical allure. Given its substantial nature and location, this site won't stay on the market long—act swiftly to seize this promising investment opportunity!
Plot for sale in High Street, Blaenau Ffestiniog, Gwynedd, LL41 — £99,000 • 1 bed • 1 bath
Land for sale in Former Garage Site, Sun Street, Llanffestiniog, LL41 — £190,000 • 1 bed • 1 bath
Land for sale in Land Adjacent Moelwyn Motors, High Street, Blaenau Ffestiniog, LL41 — £95,000 • 1 bed • 1 bath
Land for sale in Former Garage Site, Sun Street, Llanffestiniog, LL41 — £190,000 • 1 bed • 1 bath
3 bedroom terraced house for sale in Newborough Street, BLAENAU FFESTINIOG, Gwynedd, LL41 — £100,000 • 3 bed • 1 bath • 791 ft²
3 bedroom semi-detached house for sale in Lord Street, Blaenau Ffestiniog, LL41 — £149,995 • 3 bed • 1 bath • 614 ft²














































