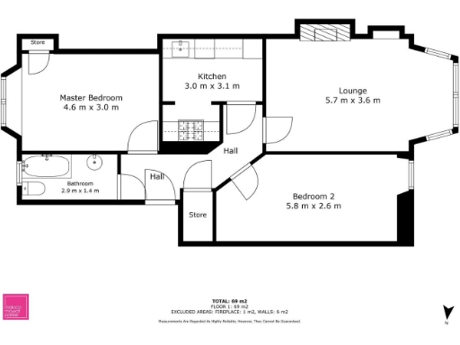
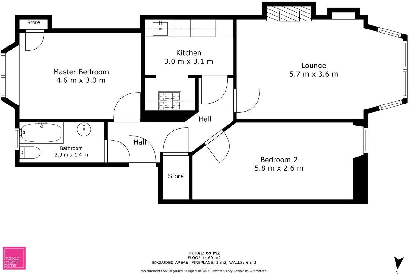
**Standout Features:**
- Cozy two-bedroom flat in a traditional tenement building
- Bay window living room with feature fireplace and Victorian elements
- Functional kitchen with integrated appliances and good worktop space
- Partially tiled family bathroom with a shower over the bath
- Well-kept communal gardens
- Permit and metered on-street parking available
**Concerns:**
- No significant downsides noted, though maintenance of shared areas is the collective responsibility of residents
Located in the sought-after residential area of Comely Bank, this well-presented first-floor flat offers a blend of classic charm and modern convenience. Step inside to find a bright bay window living room adorned with decorative cornicing and a cozy fireplace, perfect for unwinding after a long day. The property features a functional kitchen with a stylish range of white gloss units and essential integrated appliances, making meal prep a breeze. Both bedrooms offer a comfortable retreat, while the family bathroom is equipped with practical amenities.
The flat enjoys a prime location surrounded by boutique shops, cafes, and local parks, with excellent transport links including the nearby Haymarket Rail Station and easy access to both the M90 motorway and the scenic Waters of Leith. Whether you're a small family, a couple, or an investor, this property provides a fantastic opportunity in a vibrant community. Don't miss your chance to secure a piece of Edinburgh's historic charm—properties like this in such a desirable area are likely to go quickly!
3 bedroom flat for sale in 11 Learmonth Avenue, Edinburgh, EH4 1DG, EH4 — £425,000 • 3 bed • 1 bath • 902 ft²
4 bedroom flat for sale in 1/3 South Learmonth Gardens, Edinburgh, EH4 1EY, EH4 — £600,000 • 4 bed • 2 bath • 1205 ft²
2 bedroom flat for sale in 1 Learmonth Gardens, Comely Bank, Edinburgh, EH4 1HD, EH4 — £345,000 • 2 bed • 1 bath • 621 ft²
2 bedroom flat for sale in 14 Comely Bank Terrace, Comely Bank, Edinburgh EH4 1AS, EH4 — £435,000 • 2 bed • 1 bath • 540 ft²
2 bedroom flat for sale in 33/2 Mayfield Gardens, Newington, Edinburgh, EH9 2BX, EH9 — £350,000 • 2 bed • 1 bath • 748 ft²
2 bedroom flat for sale in 15 Comely Bank Street, Edinburgh, EH4 1AP, EH4 — £395,000 • 2 bed • 1 bath • 775 ft²






























































































