Ideal starter home with two allocated parking spaces and small private garden.
Three bedrooms with principal en-suite and family bathroom
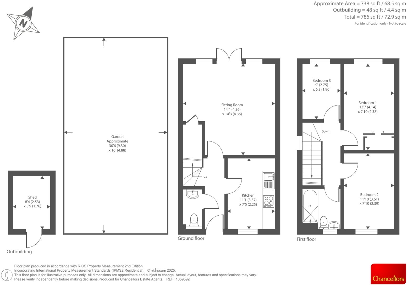
This modern three-bedroom end-of-terrace in Banbury offers a compact, low-maintenance home ideal for first-time buyers. Built by Taylor Wimpey and set in a quiet pocket off Broughton Road, the property benefits from contemporary finishes, allocated parking for two cars and a small enclosed garden — practical features for everyday family life.
Internally the layout is efficient across approximately 786 sq ft, with a family bathroom plus an en-suite serving the principal bedroom. Broadband speeds are fast and mobile signal is excellent, supporting home working and streaming. The area is very affluent with low crime and a mix of good local schools nearby, including Wykham Park and Harriers Banbury Academy rated Good by Ofsted.
Size and plot are modest: the house and garden are small compared with typical family homes, which may limit extension potential. This is a straightforward, move-in-ready starter property with scope to personalise rather than a large renovation project. Tenure is freehold and council tax is described as affordable, which helps overall running costs.
3 bedroom end of terrace house for sale in Banbury, Oxfordshire, OX16 — £325,000 • 3 bed • 2 bath • 1392 ft²
3 bedroom terraced house for sale in Padbury Drive, Banbury, Oxfordshire, OX16 — £325,000 • 3 bed • 3 bath • 953 ft²
3 bedroom end of terrace house for sale in Banbury, Oxfordshire, OX16 — £260,000 • 3 bed • 1 bath • 846 ft²
3 bedroom end of terrace house for sale in Banbury, Oxfordshire, OX16 — £280,000 • 3 bed • 1 bath • 775 ft²
3 bedroom terraced house for sale in Red Poll Close, Banbury, OX16 — £255,000 • 3 bed • 1 bath • 749 ft²
3 bedroom semi-detached house for sale in Bodicote, Banbury, Oxfordshire, OX15 — £350,000 • 3 bed • 3 bath • 1015 ft²


































































































































