**Highlights:**
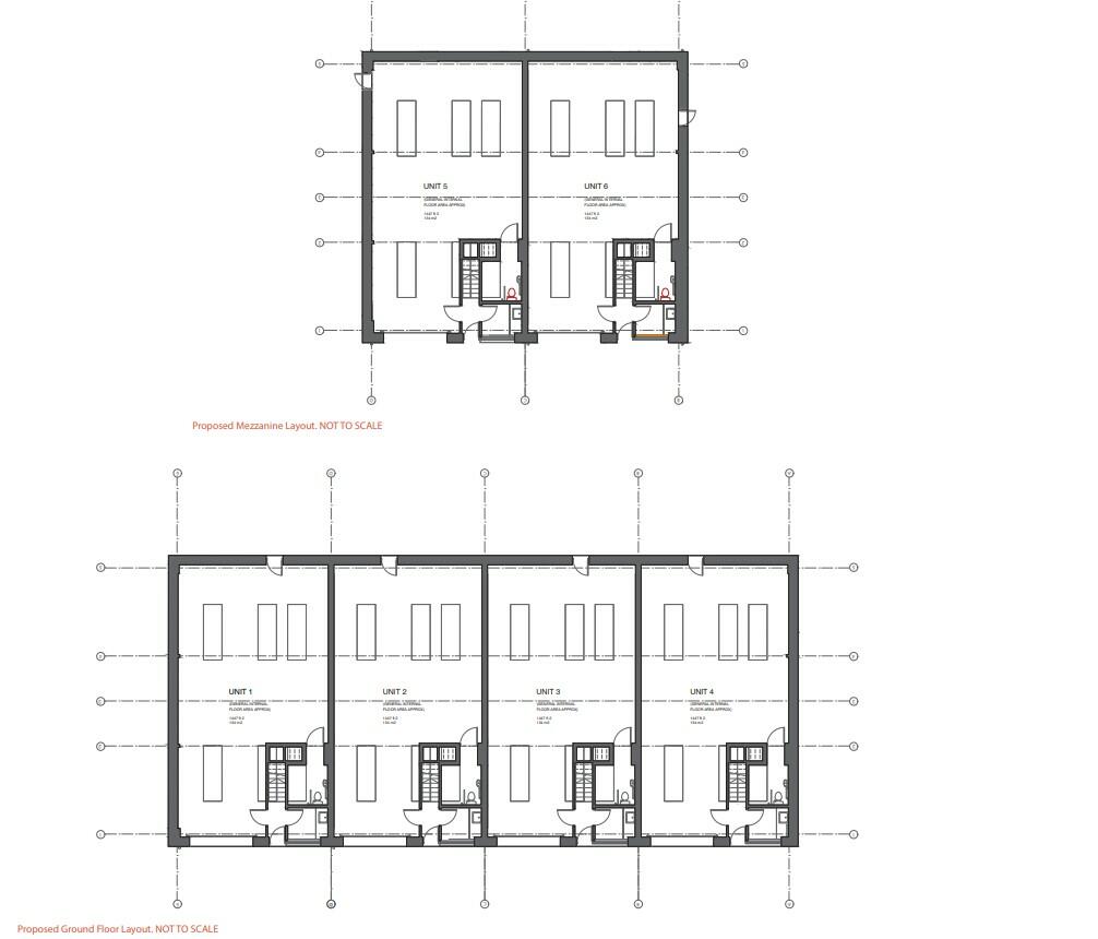
- **Commercial Development Site**: Approximately 0.69 acres with planning consent for 6 industrial units.
- **Total Area**: 804m² / 8,654ft² (GIA) across two terraces.
- **Location**: Close to Wigan town center, benefiting from a mix of industrial and commercial surroundings.
- **Parking**: On-site parking included.
- **Future Potential**: Excellent opportunity for investors or businesses to capitalize on a high-demand area.
This commercial property offers a prime opportunity for developers and investors looking to expand in the industrious Wigan area. Set on a substantial 0.69-acre site in Sovereign Business Park, it comes with planning consent from Wigan Council (ref: A/23/95244/FULL) for six new industrial units, totaling approximately 8,654ft². Each unit will feature 134m², including a ground floor and mezzanine level, ideally suited for light industrial or storage use (B2/B8).
Conveniently located less than a mile from the town center and train stations, this site benefits from on-site parking and a mix of local amenities, ensuring ease of access and operation. As a freehold property, it allows for long-term ownership with flexibility for future development. However, prospective buyers should be aware of the legal obligations associated with auction bidding, including immediate deposits and potential additional fees.
This is a rare chance to secure a development site in an established location with ample growth potential. Don't miss out—consider placing your bid during the online auction from September 17th to 18th, 2024.
Light industrial facility for sale in 2, JGB Investment Park, Stephens Way, Wigan WN3 6PH, WN3 — £450,000 • 1 bed • 1 bath • 10400 ft²
Light industrial facility for sale in Units 1-3 , Meridian 6, Bolton Road, Ashton-in-makerfield, WN4 8AB, WN4 — POA • 1 bed • 1 bath • 990 ft²
High street retail property for sale in 53 Mesnes Street, Wigan, Greater Manchester WN1 1QX, WN1 — £110,000 • 1 bed • 1 bath • 905 ft²
Parking for sale in Land Rear Of 60-62 Wallgate, Wigan, Lancashire, WN1 — £195,000 • 1 bed • 1 bath • 13504 ft²
Light industrial facility for sale in Former ATS, 76-78 Warrington Road, Wigan, WN5 9AL, WN5 — £500,000 • 1 bed • 1 bath • 5864 ft²
Land for sale in Development Land, Warrington Road, Wigan, Lancashire, WN3 — POA • 1 bed • 1 bath










