Compact character flat with garden and easy Northern Line access.
Two-bedroom Edwardian upper maisonette with private garden
Approximately 539 sq ft — compact rooms, efficient layout
Share of freehold simplifies long-term ownership arrangements
Generous loft storage adds practical space
Double glazing present; install date unknown — may need checks
Main heating: mains gas boiler and radiators; check service history
No allocated parking; on-street restrictions likely
Area records above-average crime; consider security measures
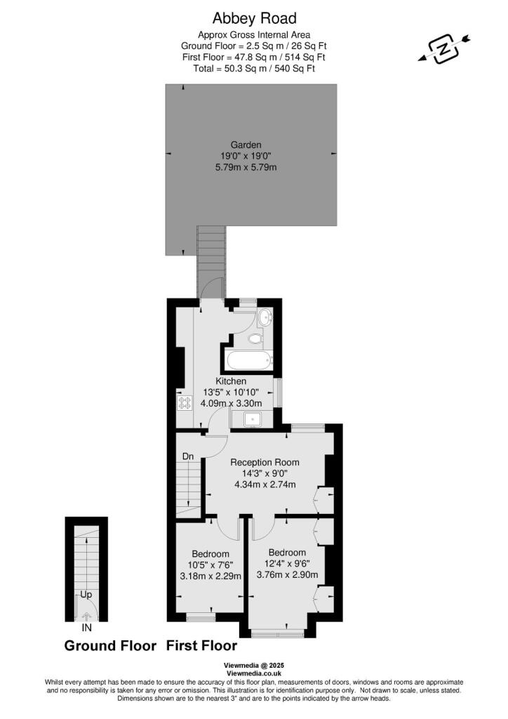
Set over the first floor of an Edwardian terrace, this two-bedroom maisonette offers character details, high ceilings and a private garden — a rare outdoor space for this size. The layout includes a reception room, separate kitchen, bathroom and generous loft storage, useful for downsizing owners or investors seeking easy storage and rental appeal.
The property measures approximately 539 sq ft, so rooms feel compact rather than expansive. It retains period charm but will benefit from targeted updating; laminate flooring, double glazing of unknown age and an older gas boiler are present and may need assessment. Solid-brick walls were built before cavity insulation became standard, so improving thermal performance could be a worthwhile upgrade.
Practical points: the flat is sold as a share of freehold, simplifying long-term ownership compared with short leases. There is no allocated parking and the area records above-average crime rates, which prospective buyers should factor into budgeting and security measures. Transport is a strong positive — South Wimbledon and Colliers Wood (Northern Line) are within reach — and local schools include several rated Good or Outstanding.
This maisonette suits first-time buyers wanting a character home they can personalise, or investors seeking a garden-flat with rental demand near Tube connections. Expect some refurbishment costs to modernise heating, insulation and kitchen/bathroom fixtures, but also the chance to add value in an established south-west London location.
2 bedroom house for sale in Abbey Road, London, SW19 — £450,000 • 2 bed • 1 bath • 521 ft²
2 bedroom apartment for sale in College Road, London, SW19 — £425,000 • 2 bed • 1 bath • 680 ft²
2 bedroom maisonette for sale in Byegrove Road, Colliers Wood, London, SW19 — £475,000 • 2 bed • 1 bath • 676 ft²
2 bedroom maisonette for sale in University Road , SW19 — £500,000 • 2 bed • 1 bath • 588 ft²
2 bedroom maisonette for sale in Kimble Road, Colliers Wood, SW19 — £345,000 • 2 bed • 1 bath • 542 ft²
2 bedroom flat for sale in Kimble Road, London, SW19 — £437,500 • 2 bed • 1 bath • 565 ft²










































