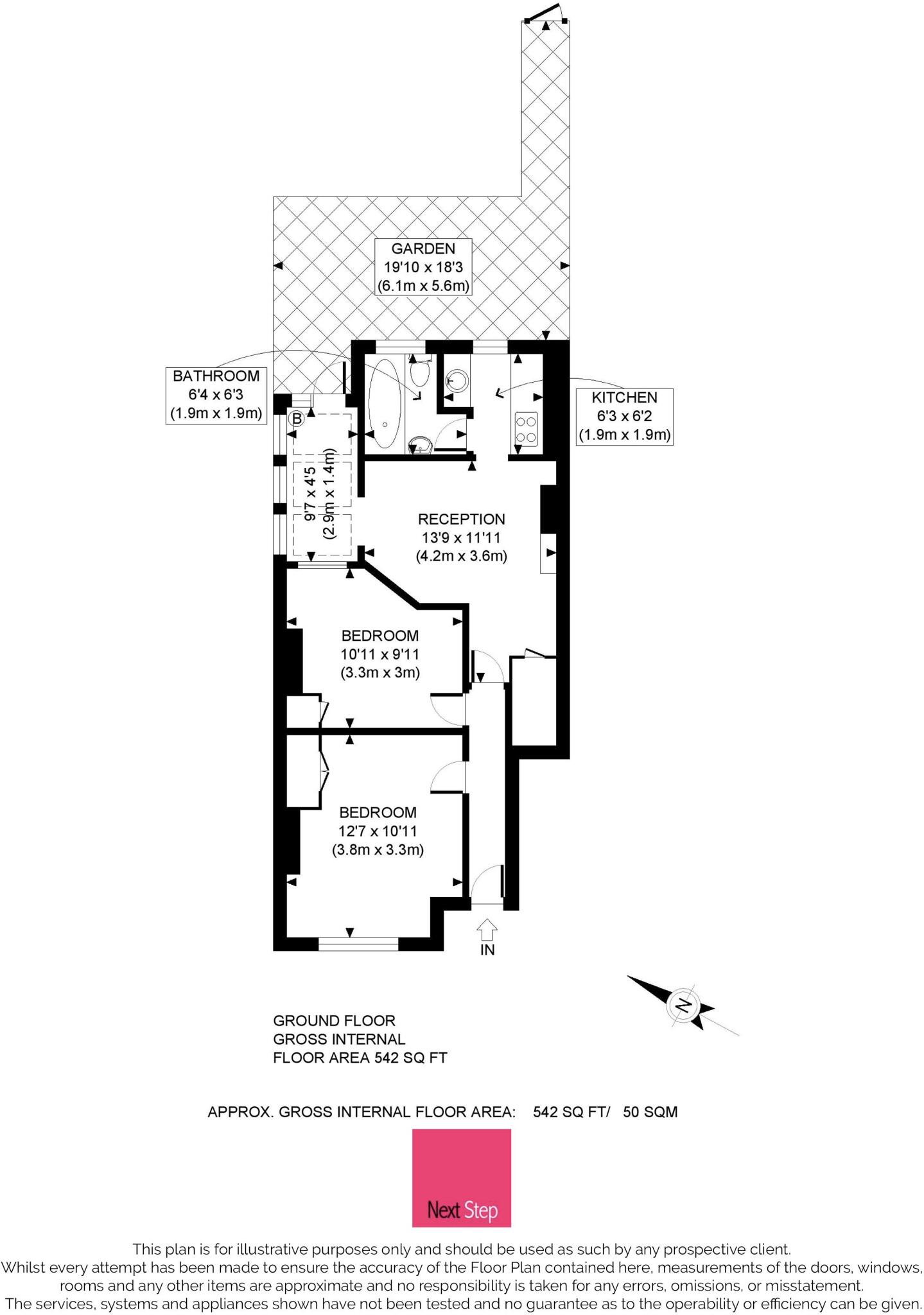
**Standout Features:**
- 2-bedroom ground floor maisonette with private garden
- Share of freehold (50%)
- Modern interior with open plan layout and good natural light
- Located on a quiet no-through road
- Close to Colliers Wood Tube Station (10-minute walk)
- Chain free, ready for immediate occupancy
- Access to local green spaces (Wandle Park, Wandle Meadow Nature Park)
- Excellent local amenities, shops, restaurants, and bars nearby
**Potential Concerns:**
- Small overall size (542 sq ft)
- Double glazing installation date unknown; potential for energy efficiency upgrades
- Solid brick walls with no insulation; may require future investment for improvements
---
Discover this charming and well-proportioned two-bedroom ground floor maisonette nestled in a peaceful cul-de-sac, just moments away from the vibrant Colliers Wood High Street. Ideal for first-time buyers or those looking to invest, this property offers a fantastic opportunity with a private garden and a 50% share of freehold, making it a rare find in this cosmopolitan inner-city area.
The modern open-plan interior is flooded with natural light, providing a warm and inviting atmosphere perfect for entertaining or relaxation. Both bedrooms are generously sized, and with the property maintaining a good decorative order, buyers can easily personalize the space to their taste. Situated conveniently close to Wandle Park and various local amenities along the high street, as well as excellent transport links to Tooting and Wimbledon, this home is perfect for families or professionals seeking comfort and accessibility.
Don’t miss out on this chain-free gem—opportunities like this are hard to come by, especially in such a desirable location!
2 bedroom flat for sale in Kimble Road, Colliers Wood, SW19 — £450,000 • 2 bed • 1 bath • 549 ft²
1 bedroom flat for sale in Briscoe Road, Colliers Wood/Tooting Borders, SW19 — £420,000 • 1 bed • 1 bath • 578 ft²
2 bedroom flat for sale in Clarendon Road, London, SW19 — £500,000 • 2 bed • 1 bath • 679 ft²
2 bedroom maisonette for sale in Boundary Road, London, SW19 — £475,000 • 2 bed • 1 bath • 679 ft²
2 bedroom maisonette for sale in University Road, Colliers Wood, SW19 — £475,000 • 2 bed • 1 bath • 571 ft²
2 bedroom maisonette for sale in Boyd Road, SW19 — £490,000 • 2 bed • 1 bath • 639 ft²


















































