Fully let mixed-use freehold near Bruce Grove station — strong income, active management needed.
Freehold Victorian mixed-use building with commercial ground floor and upper flats
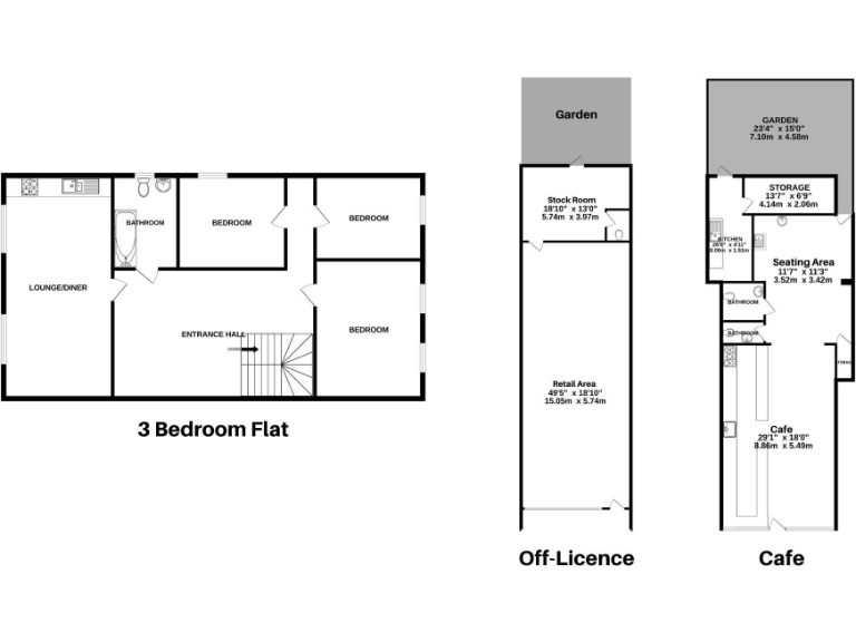
A substantial freehold mixed-use building on Bruce Grove offering immediate rental income from two ground-floor commercial units and upper residential accommodation. The property is currently producing a combined rental income of £73,000 per annum (café £25,000; shop £30,000; upper flat £18,000), presenting a clear cash-flow asset for a buy-and-hold investor. The building’s Victorian brick façade, high ceilings and generous internal footprint (approx. 2,000 sq ft) are strong physical assets and suit a range of commercial uses.
Location is a material part of the proposition: the property sits a short walk from Bruce Grove Overground Station with good transport links to central London and sits within an area experiencing local regeneration. There is scope to increase income through active asset management, lease reviews or reletting the commercial units to higher-yielding operators.
Buyers should weigh the investment upside against clear local market challenges. The area is classified as very deprived with above-average crime rates and a small plot size, which can affect capital growth and tenant risk. One upper unit has been sold leasehold with ground-rent income (reducing some future upside) and some tenure/occupation details require careful due diligence. The building will need routine maintenance and ongoing management given its mixed-use nature.
Overall, this is a hands-on, cash-generating freehold suited to investors comfortable operating in an inner-city, high-demand rental market. It works best for buyers focused on yield and active asset management rather than passive long-term capital appreciation.
Property for sale in High Road, Tottenham, London, N17 — £465,000 • 1 bed • 1 bath
High street retail property for sale in High Road, London, N17 — £500,000 • 1 bed • 1 bath • 3500 ft²
High street retail property for sale in 1 Bruce Grove, London, N17 6RA, N17 — £875,000 • 1 bed • 1 bath • 4000 ft²
Commercial property for sale in 491a High Road, London, N17 — £695,000 • 1 bed • 1 bath • 850 ft²
High street retail property for sale in Unit 1 & 2 The Roundway, 52 Lordship Lane, London, N17 7QG, N17 — £725,000 • 1 bed • 1 bath • 3500 ft²
2 bedroom flat for sale in Hartham Road, Tottenham, London, N17 — £375,000 • 2 bed • 1 bath • 633 ft²






