**Standout Features:**
- Prime retail location on High Road, Tottenham
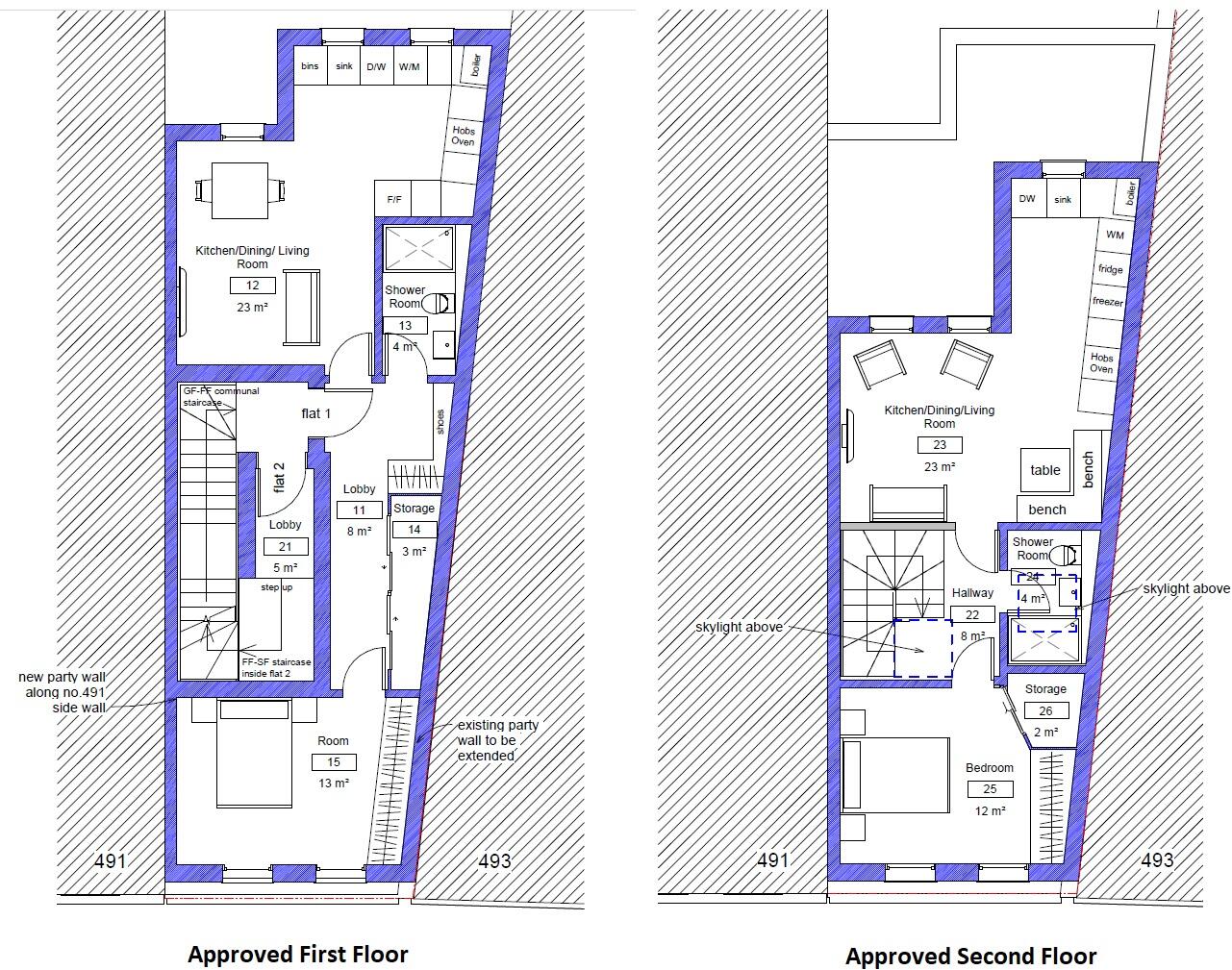
- Planning approved for two 1-bedroom flats (June 2024)
- Ground floor retail space with a current income of £30,000 p.a.
- Strong gross initial yield of 4.32%
- Close proximity to Bruce Grove Overground station
- Surrounded by established retailers like Asda, McDonald's, and Nationwide
**Potential Concerns:**
- Current lease only has 7 years remaining, which may deter mortgage lenders
- Area noted for high crime rates; potential impact on investment appeal
- Future development will require careful management and oversight
This exceptional commercial property at 491a High Road, Tottenham, is an attractive investment opportunity boasting a prime ground floor retail space with additional air rights above. The current tenant provides a stable rental income of £30,000 annually, contributing to a promising gross initial yield of 4.32%. With planning permission secured for a first and second floor extension to develop two stylish 1-bedroom flats, this property offers significant potential for added value and future profitability.
Located just steps away from Bruce Grove Overground station, you’ll enjoy high foot traffic and the bustling atmosphere of a diverse high street, perfect for retail endeavors. While the current lease may pose challenges for financing, the area is rapidly evolving, especially with the recent developments around the Tottenham Hotspur Stadium. Don’t miss out on this remarkable opportunity to enhance your investment portfolio in a dynamic part of London. Act quickly, as opportunities like this are sure to gain interest fast!
High street retail property for sale in High Road, London, N17 — £500,000 • 1 bed • 1 bath • 3500 ft²
Property for sale in High Road, Tottenham, London, N17 — £465,000 • 1 bed • 1 bath
High street retail property for sale in 1 Bruce Grove, London, N17 6RA, N17 — £875,000 • 1 bed • 1 bath • 4000 ft²
High street retail property for sale in 95 Seven Sisters Road and 165 & 167 Hornsey Road, London N7 6RA, N7 — £1,200,000 • 1 bed • 1 bath • 3163 ft²
1 bedroom mixed use property for sale in 47 The Roundway, Tottenham, London, N17 7HA, N17 — £390,000 • 1 bed • 1 bath • 1595 ft²
Commercial property for sale in Topsfield Parade, Tottenham Lane, London, N8 — £500,000 • 1 bed • 1 bath • 820 ft²














