Period character near Lordship Lane amenities and transport links.
Two double bedrooms with characterful period proportions
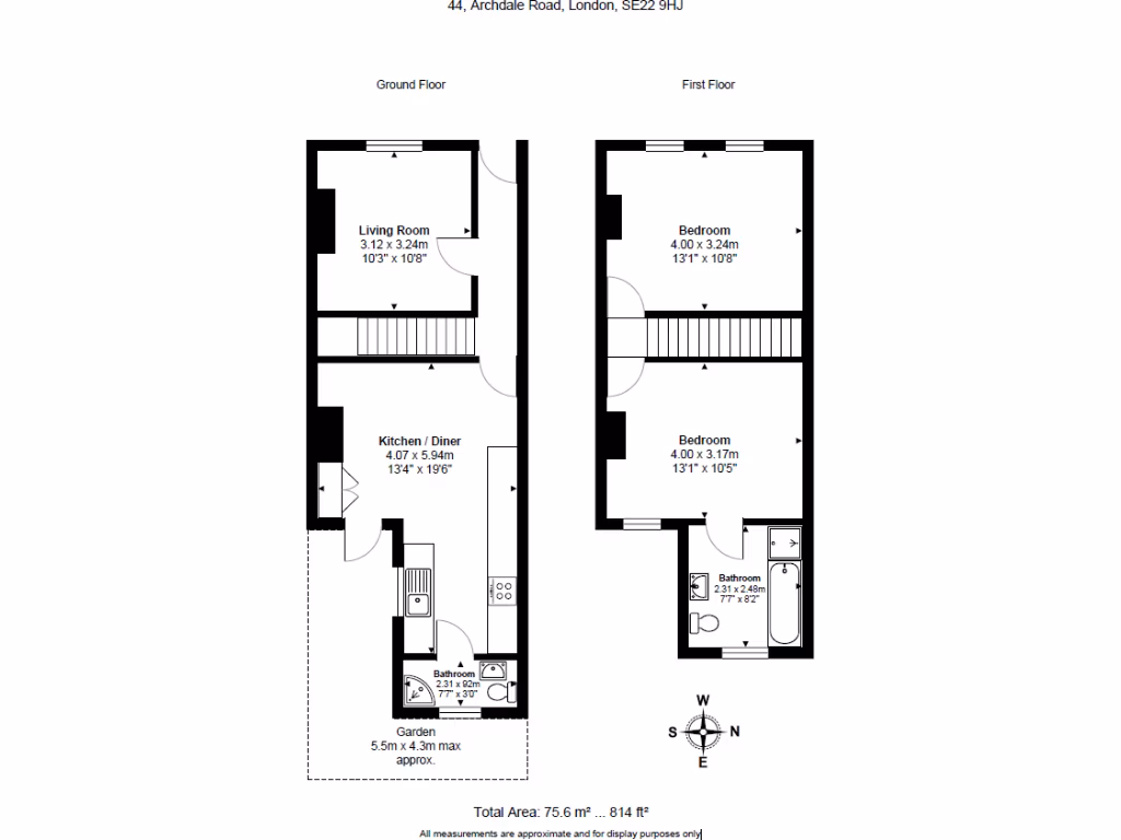
Set on a quiet stretch off Lordship Lane, this two-double-bedroom Victorian mid-terrace offers a comfortable family base in East Dulwich. Period features such as high ceilings, original floorboards and built-in shelving give warmth and character, while patio doors open onto a private, low-maintenance garden. The house totals about 814 sq ft and is freehold.
The location is a key draw: outstanding and good-rated primary and secondary schools are nearby, plus easy access to East Dulwich and Denmark Hill stations. Local amenities and the bars, cafes and restaurants of Lordship Lane are within a short walk, and fast broadband and excellent mobile signal support home working.
The property will be sold via Secure Sale online bidding (auction) — check terms before bidding. Practical considerations include a small plot, above-average local crime levels to note, and areas that need updating internally (dated lighting and some modernization required). The building is solid brick with assumed no cavity insulation, so improving thermal efficiency may be worthwhile.
For families or buyers seeking period character with scope to modernise, this home combines a sought-after address with tangible potential. The layout and garden offer straightforward extension or refurbishment possibilities subject to necessary checks and permissions.
2 bedroom terraced house for sale in Archdale Road, East Dulwich, London, SE22 — £700,000 • 2 bed • 1 bath • 814 ft²
4 bedroom semi-detached house for sale in Lordship Lane, East Dulwich, London, SE22 — £1,100,000 • 4 bed • 1 bath • 1919 ft²
1 bedroom semi-detached house for sale in Lordship Lane, London, SE22 — £1,100,000 • 1 bed • 4 bath • 1919 ft²
4 bedroom terraced house for sale in Landcroft Road, London, SE22 — £1,400,000 • 4 bed • 2 bath • 1691 ft²
4 bedroom terraced house for sale in Landells Road, East Dulwich, London, SE22 — £1,100,000 • 4 bed • 2 bath • 990 ft²
3 bedroom terraced house for sale in Archdale Road, East Dulwich, London, SE22 — £1,100,000 • 3 bed • 1 bath • 1085 ft²














































