Extended kitchen-diner and private garden close to Zone 3 Overground stations.
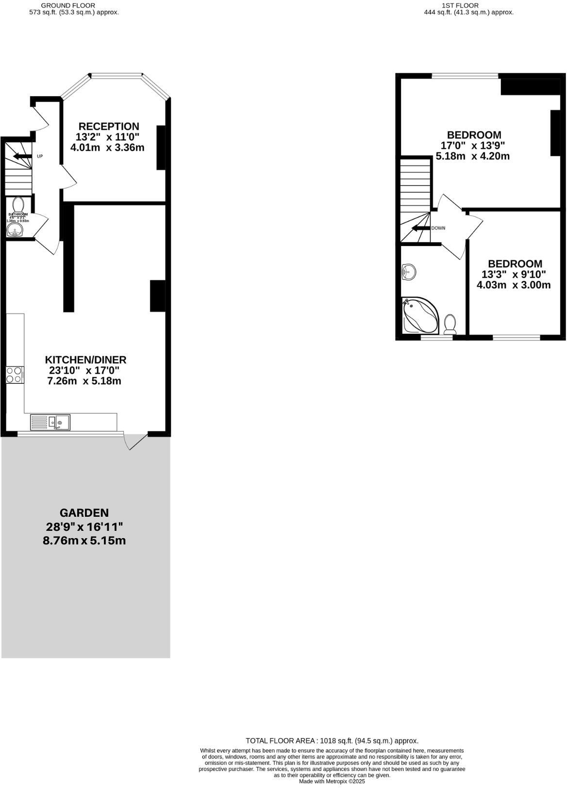
Freehold two-bedroom mid-terrace, 1,018 sqft overall size
A larger-than-average two-bedroom mid-terrace on Risley Avenue offers roomy living and genuine potential in N17. The ground floor provides a spacious front reception and an extended open-plan kitchen/diner that opens onto a private rear garden — a rare find for this street. Two first-floor bedrooms and a three-piece bathroom complete a practical layout for a first-time buyer or buy-to-let investor.
The house benefits from gas central heating, double glazing and a freehold title. Its position is commuter-friendly: Bruce Grove and White Hart Lane stations (Zone 3, London Overground) are both within easy reach, and local primary and secondary schools have strong Ofsted ratings, making the location convenient for families.
There are some straightforward improvement opportunities: the property’s solid brick walls likely lack modern insulation, the glazing dates from before 2002, and the EPC is D. These factors mean energy-efficiency upgrades could reduce running costs and add value. The plot is small and the area is classified as very deprived, which may affect long-term capital growth compared with more affluent neighbourhoods.
Overall this terraced home is a practical, well-sized purchase for a first-time buyer seeking space to personalise, or an investor looking for a rental-ready property near good transport links. Expect some refurbishment and energy upgrades to maximise comfort and future resale potential.
2 bedroom terraced house for sale in Risley Avenue, London, N17 — £515,000 • 2 bed • 1 bath • 625 ft²
2 bedroom terraced house for sale in Tower Gardens Road, London, N17 — £465,000 • 2 bed • 1 bath • 670 ft²
2 bedroom terraced house for sale in Lismore Road, London, N17 — £650,000 • 2 bed • 1 bath • 843 ft²
3 bedroom terraced house for sale in Rosebery Avenue, London, N17 — £595,000 • 3 bed • 1 bath • 921 ft²
3 bedroom terraced house for sale in Lordship Lane, London, N17 — £529,950 • 3 bed • 1 bath • 857 ft²
2 bedroom terraced house for sale in Fryatt Road, London, N17 — £499,950 • 2 bed • 1 bath






























































