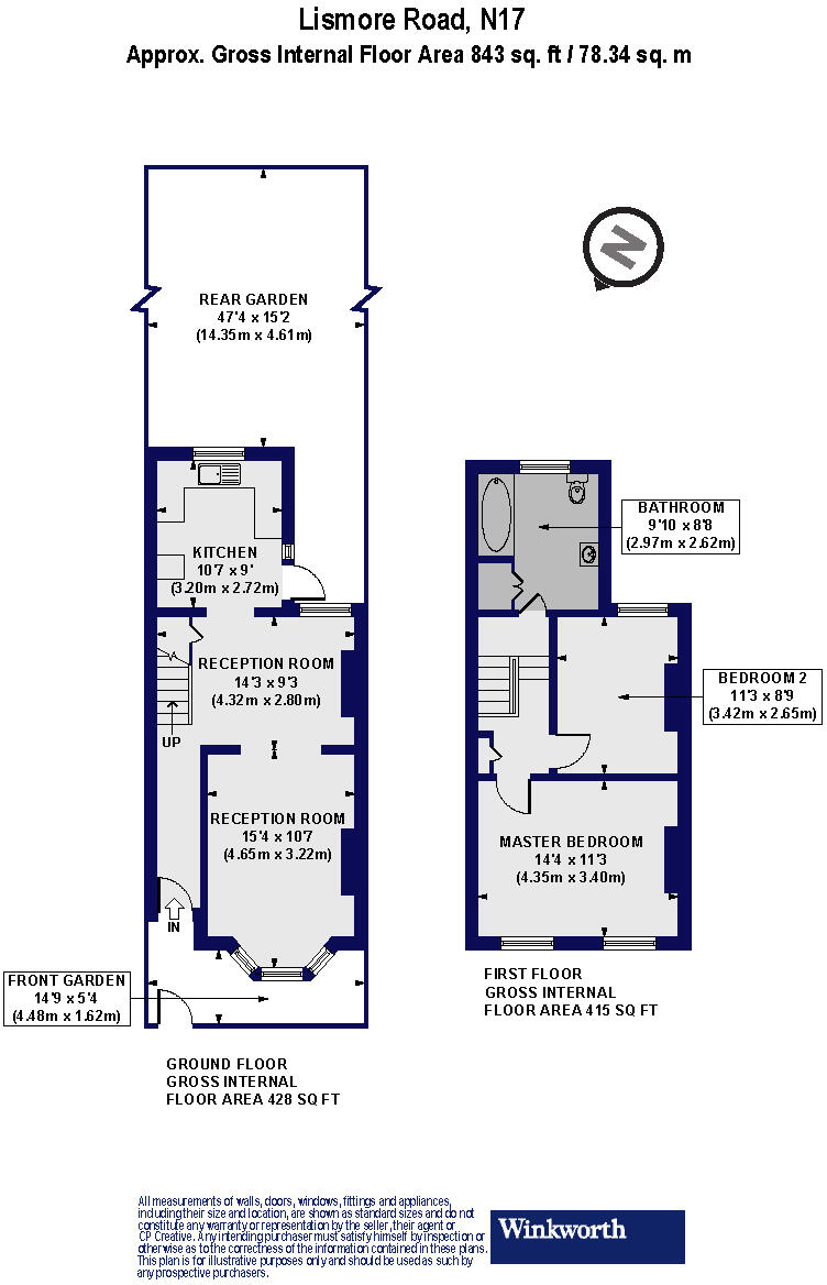
Characterful two-bedroom terrace with a large south-facing garden and extension potential..
Two double bedrooms with bright, bay-front main bedroom
Open-plan ground floor with wood burner and wooden floors
Modern kitchen opening onto 47ft south-facing garden
Freehold; 843 sq ft — comfortable family-sized home
Potential to extend or reconfigure (STPP)
Electric storage heating; higher running costs likely
Double glazing installed before 2002; replacement may be needed
Solid brick walls assumed uninsulated — retrofit recommended
Arranged over two floors, this two-bedroom mid-terrace blends period character with a bright, open-plan layout. The ground floor features a bay-fronted living room with a wood burner, wooden floors, and a modern kitchen that opens directly onto a long 47ft south-facing garden — a rare outdoor asset for central Tottenham.
Upstairs are two naturally bright bedrooms and a family bathroom. At 843 sq ft the house is a comfortable size for a young family or couple, with scope to reconfigure or extend (subject to planning). Excellent transport links (Seven Sisters/Bruce Grove) and strong local schools make the location especially appealing for commuters with children.
Buyers should note the property’s heating is electric storage heaters, the glazing predates 2002, and the original solid brick walls are assumed uninsulated — all factors that affect running costs and may need upgrading. The plot is small despite the long garden, and the surrounding area scores as deprived, though it benefits from improving local amenities and green spaces.
This freehold home offers immediate move-in condition with clear potential to add value through insulation, heating improvements, or an extension (STPP). It’s well suited to buyers seeking a characterful, centrally located family house with a large south-facing garden and city connections.
2 bedroom end of terrace house for sale in Siward Road, London, N17 — £500,000 • 2 bed • 1 bath • 700 ft²
3 bedroom terraced house for sale in Dunloe Avenue, London, N17 — £600,000 • 3 bed • 1 bath • 1030 ft²
2 bedroom terraced house for sale in Fryatt Road, London, N17 — £475,000 • 2 bed • 1 bath • 748 ft²
3 bedroom terraced house for sale in Foyle Road, London, N17 — £550,000 • 3 bed • 1 bath • 1173 ft²
2 bedroom terraced house for sale in Spencer Road, London, N17 — £485,000 • 2 bed • 1 bath • 693 ft²
2 bedroom terraced house for sale in Poynton Road, N17 — £550,000 • 2 bed • 1 bath • 797 ft²






















































