Spacious four-bedroom home with large garden and garage in a quiet village cul-de-sac.
Detached four-bedroom family home on a large plot
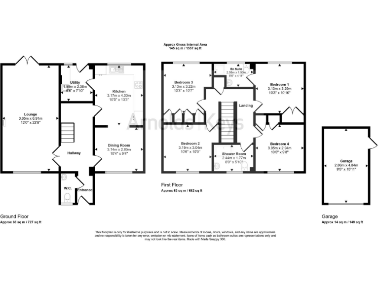
Set at the end of a quiet cul-de-sac in picturesque Erpingham, this detached four-bedroom home sits on a generous plot with well-maintained gardens and useful outdoor features including a pond and patio. The interior is presented in good order and designed for family living: a dual-aspect living room with wood-burning stove, an open-plan dining kitchen, utility room and ground-floor cloakroom. Four double bedrooms occupy the first floor, one with an ensuite, alongside a modern family shower room.
Practical advantages include a large driveway with space for multiple vehicles, a detached single garage with power and lighting, double glazing installed after 2002 and mains services; the property is freehold and carries no flood risk. Heating is provided by an oil-fired boiler and radiators — effective for rural locations but something to budget for with running and future servicing costs. Broadband is average and there is no mobile signal at the property, which may affect remote working or mobile-dependent households.
This home will suit families seeking a peaceful village location with good access to nearby market towns, countryside and the coast. The nearby primary and secondary schools have mostly positive Ofsted outcomes, though the village primary is listed as 'requires improvement'. The council tax is above average and buyers should note the property dates from the early 1990s, so routine maintenance and potential modernisation projects may be expected over time.
4 bedroom detached house for sale in Eagle Road, Erpingham, Norwich, NR11 — £435,000 • 4 bed • 2 bath • 1020 ft²
3 bedroom link detached house for sale in John Franklin Way, Erpingham, Norwich, NR11 — £270,000 • 3 bed • 1 bath • 980 ft²
3 bedroom detached house for sale in Blacksmiths Lane, Erpingham, NR11 — £465,000 • 3 bed • 2 bath • 2804 ft²
3 bedroom detached bungalow for sale in Eagle Close, Erpingham, Norwich, NR11 — £375,000 • 3 bed • 2 bath • 992 ft²
2 bedroom detached bungalow for sale in School Road, Erpingham, NR11 , NR11 — £285,000 • 2 bed • 1 bath • 748 ft²
4 bedroom detached house for sale in Leonard Medler Way, Hevingham, Norwich, NR10 — £575,000 • 4 bed • 2 bath • 1838 ft²


























































































