Spacious plot and approved plans for family living in tranquil Suffolk countryside.
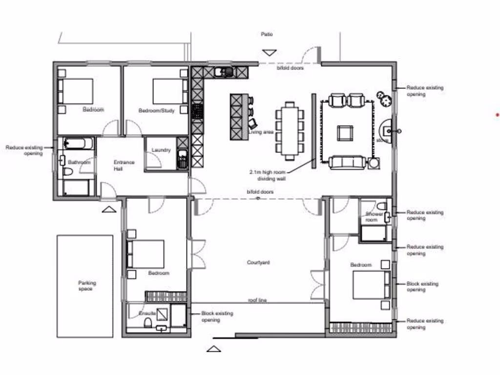
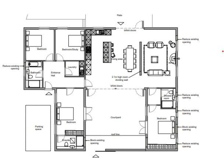
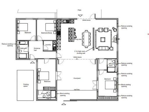
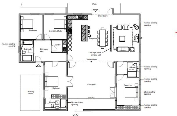
Full planning permission for 4-bed single-storey dwelling (DC/25/02353)
A rare barn conversion opportunity with full planning permission to create a single-storey four-bedroom home in a peaceful Suffolk hamlet. The existing 1930s barn has consent (planning ref DC/25/02353) for an open-plan layout, three bathrooms and generous living space across circa 1,900 sqft, ready for a buyer to follow the approved scheme and complete the build.
Set within approximately 1.81 acres, the plot includes formal garden areas, a private courtyard, extensive paddock suitable for equestrian use and three separate parking areas. Wide rural views and mature hedging give privacy and a strong smallholding feel, ideal for family living, hobby farming or those wanting space and seclusion.
Buyers should note this is a conversion project: the barn requires full completion works and associated costs, and purchasers must satisfy themselves about build responsibilities, statutory obligations and services. There is a medium flood risk for the area; prospective buyers should check Environment Agency guidance and drainage requirements before committing.
This property will suit buyers seeking long-term lifestyle value — a single-storey, accessible home in a prosperous rural setting with fast broadband and low local crime. The approved plans substantially reduce planning risk, but the conversion and ongoing maintenance of grounds are material considerations for budgeting and timelines.
Barn conversion for sale in Buxhall, Stowmarket, Suffolk, IP14 — £500,000 • 1 bed • 1 bath • 4413 ft²
4 bedroom barn conversion for sale in Boxted, Bury St. Edmunds, IP29 — £390,000 • 4 bed • 4 bath • 2378 ft²
4 bedroom barn conversion for sale in Hawstead, Bury St Edmunds, Suffolk, IP29 — £1,275,000 • 4 bed • 3 bath • 4255 ft²
3 bedroom detached house for sale in Boxted, Bury St Edmunds, Suffolk, IP29 — £599,950 • 3 bed • 2 bath • 3197 ft²
4 bedroom detached house for sale in Pilgrims Barn, Bury Road, Hitcham, Suffolk, IP7 — £675,000 • 4 bed • 3 bath • 1820 ft²
Plot for sale in Replacement Dwelling at Moat Farm, Parliament Heath, Groton, Suffolk, CO10 — £425,000 • 4 bed • 3 bath • 2291 ft²


































































