Quiet cul-de-sac home with parking for two and strong school catchment.
South-facing tiered rear garden with paved and decked seating areas
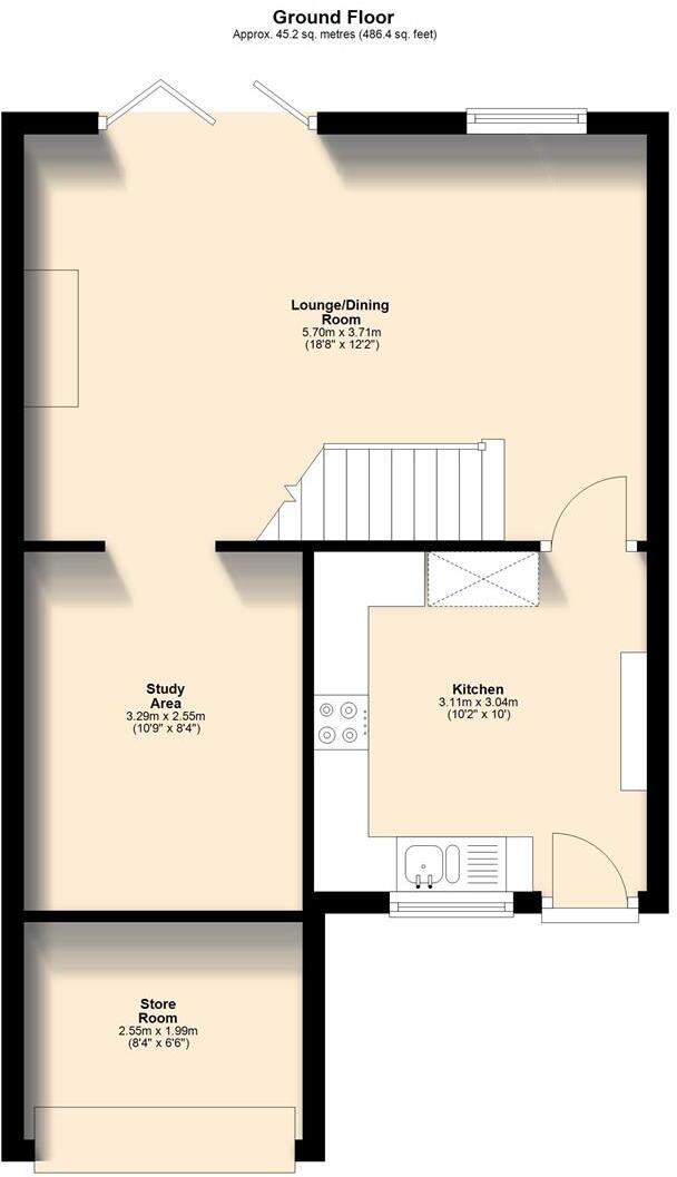
A well-proportioned three-bedroom terrace in a quiet Plympton cul-de-sac, this home offers easy family living with useful outdoor space and off-street parking. The living/dining room flows to the rear garden via bi-fold doors, and the south-facing tiered garden captures afternoon sun across paved and decked seating areas. The kitchen and bathroom are modern, and the house benefits from gas central heating and double glazing throughout. Energy rating: band C.
Practical features include a driveway for two cars and a store room with plumbing where the front of the garage once stood. That store could be reverted to garage use, and the property previously had planning permission for a front porch (permission has lapsed). Note the seller reports the former garage-to-store work was done by a builder but building regulations were not obtained — buyers should factor this into any plans for alteration.
The home suits family buyers seeking a mid-market three-bed near good primary schools and local amenities. The plot is small but private; the south-facing garden and hot tub offer good outdoor living for afternoons and evenings. Cavity walls are assumed uninsulated and there is a single family bathroom plus separate WC, so some buyers may want to update insulation and consider reconfiguring facilities.
Overall this is a practical, average-sized family home with immediate usability and modest potential to add value through approved alterations and insulation improvements. Buyers wanting a fully registered garage conversion or immediate planning permissions should allow for additional costs and checks.
3 bedroom semi-detached house for sale in Dunstone View, Plymstock, PL9 8TW, PL9 — £325,000 • 3 bed • 1 bath • 1055 ft²
3 bedroom semi-detached house for sale in Plympton, Plymouth, PL7 — £240,000 • 3 bed • 1 bath • 872 ft²
3 bedroom end of terrace house for sale in Stentaway Road, Plymstock, Plymouth, PL9 — £310,000 • 3 bed • 2 bath • 1454 ft²
3 bedroom terraced house for sale in Plympton, Plymouth, PL7 — £250,000 • 3 bed • 1 bath • 642 ft²
3 bedroom terraced house for sale in Plympton, Plymouth, PL7 — £240,000 • 3 bed • 1 bath • 827 ft²
3 bedroom semi-detached house for sale in Moorland Avenue, Plympton, Plymouth, PL7 — £270,000 • 3 bed • 1 bath • 790 ft²






































































































