### Key Features:
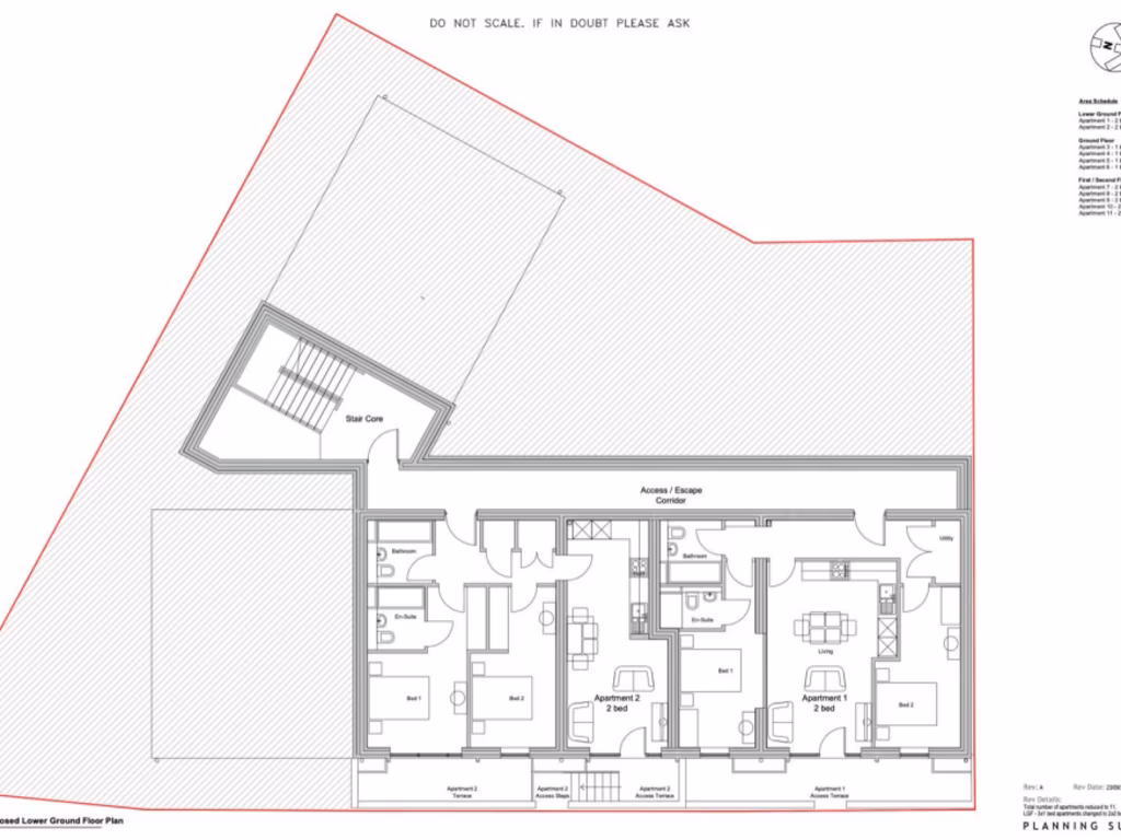
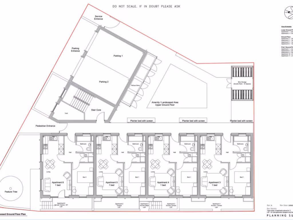
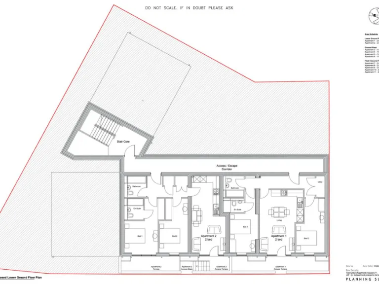
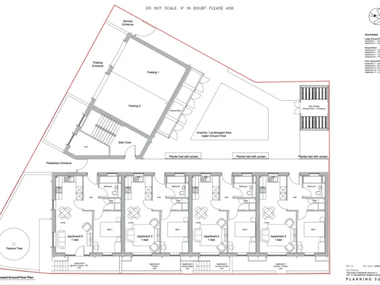
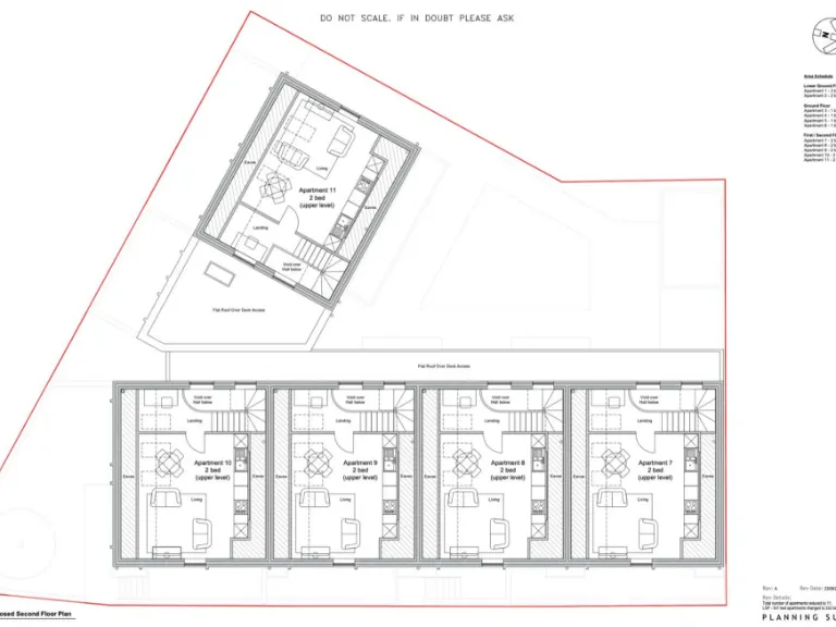
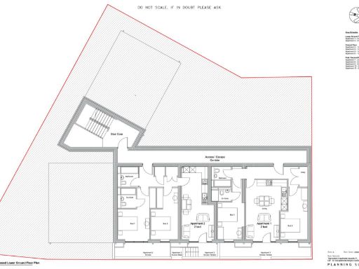
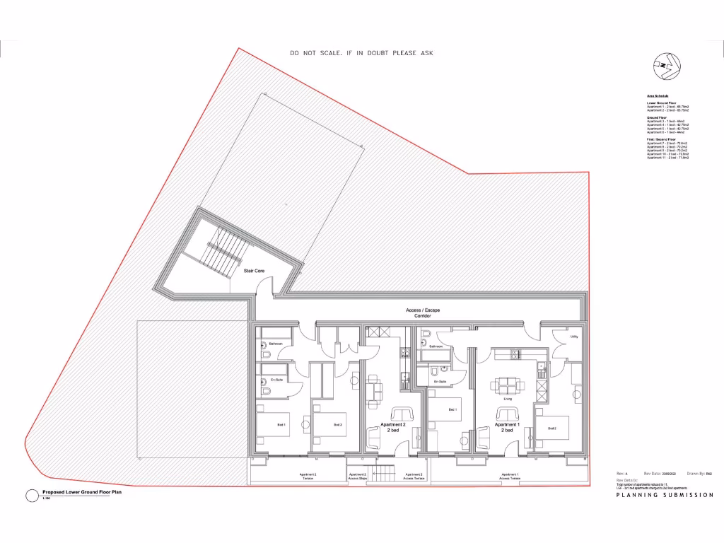
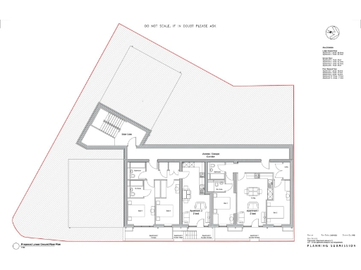
- **Planning Permission Granted**: For 11 apartments (7 two-bedroom, 4 one-bedroom).
- **Freehold Property**: Ensures complete ownership and flexibility.
- **Spacious Layout**: Total area of 3,922 sq ft with potential for modern urban living.
- **Parking and Bike Store**: Provision for 2 off-street parking spaces.
- **Affluent Area**: Located in a desirable neighborhood with good amenities and schools.
### Summary:
This exciting freehold site at the junction of Derbyshire Lane and Norton Lees Road offers a unique investment opportunity with planning permission already secured for 11 modern apartments. Boasting a diverse layout of 7 two-bedroom units (66-73 sq m) and 4 one-bedroom units (44 sq m), this property is perfect for investors looking to tap into the thriving rental market in Sheffield's Meersbrook area. The contemporary design includes large windows that flood the space with natural light, complemented by sleek interiors that promise a comfortable urban living experience.
Situated in a vibrant neighborhood, residents will benefit from nearby amenities, excellent local schools rated 'Good' or 'Outstanding', and robust transport links. While the area does show above-average crime rates, the property’s potential and favorable location suggest it could cater well to families and working professionals alike. Don’t miss this opportunity to develop a prime residential property that stands out in terms of attractiveness and future rental potential.
Land for sale in Land at Southbourne Road, Botanical Gardens, S10 — £550,000 • 6 bed • 6 bath • 5199 ft²
Land for sale in Lock Street, Sheffield, S6 — £1,200,000 • 1 bed • 1 bath
Land for sale in Lock Street, Sheffield, S6 — £1,200,000 • 1 bed • 61 bath
Residential development for sale in Milton Street, Sheffield, S3 7UF, S3 — POA • 1 bed • 1 bath
Land for sale in Wickersley Road, Rotherham, South Yorkshire, S60 — £400,000 • 1 bed • 1 bath • 4670 ft²
3 bedroom terraced house for sale in Store Street, Sheffield, South Yorkshire, S2 4DA, S2 — £135,000 • 3 bed • 1 bath • 1171 ft²














































