**Standout Features:**
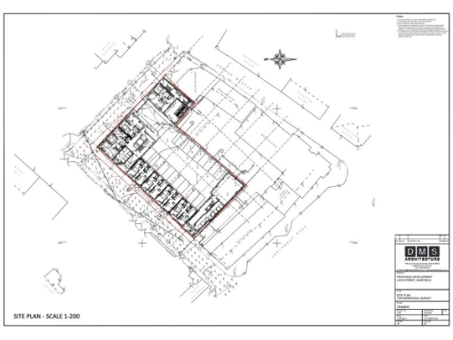
- Large building plot in coveted Walkley, Sheffield
- Full planning permission for 61 apartments (Ref. No: 18/00308/FUL)
- Groundwork has commenced, offering a head start for developers
- Projected development value of approximately £8 million
- Expected rental income of £55,000 per month
**Potential Concerns:**
- Current derelict state of the property; requires significant renovation
- The area has high crime rates and is noted as being deprived
Unlock a lucrative investment opportunity with this expansive building plot on Lock Street, Sheffield. Ideally positioned in the thriving Walkley area, this property comes with full planning permission for 61 apartments, already with groundwork underway, providing a unique advantage to developers looking to capitalize on the growing demand for housing in Sheffield.
With a projected development value around £8 million and the potential for monthly rental income of £55,000 post-completion, this venture presents an attractive proposition for investors aiming to expand their portfolio. You'll find yourself in a vibrant, urban area known for its community charm, excellent transport links, and proximity to local amenities and schools like St Mary's Church of England Primary and Walkley Primary School.
While the current derelict condition presents challenges, it also offers great renovation potential for the right investor looking to create something special in this lively conurbation. Don’t miss this exclusive opportunity to invest in a prime location—secure your future in Sheffield's real estate market today.
Land for sale in Lock Street, Sheffield, S6 — £1,200,000 • 1 bed • 61 bath
Land for sale in Land at Trippet Lane, Land at Trippet Lane, Sheffield, S1 — £50,000 • 1 bed • 1 bath • 2614 ft²
Plot for sale in Norton Lees Road , Norton Lees , Sheffield , S8 9BW, S8 — £550,000 • 1 bed • 1 bath • 3922 ft²
Residential development for sale in Ebenezer Street, Shalesmoor, Sheffield, S3 — £975,000 • 1 bed • 1 bath • 6026 ft²
Land for sale in Development Land At Worrall Road, Sheffield, S6 — £150,000 • 1 bed • 1 bath
Land for sale in North Of High Hazels Park, Infield Lane, Sheffield, S9 — £300,000 • 1 bed • 1 bath






















































