Large plot and strong extension potential in a well‑connected Abbots Langley location.
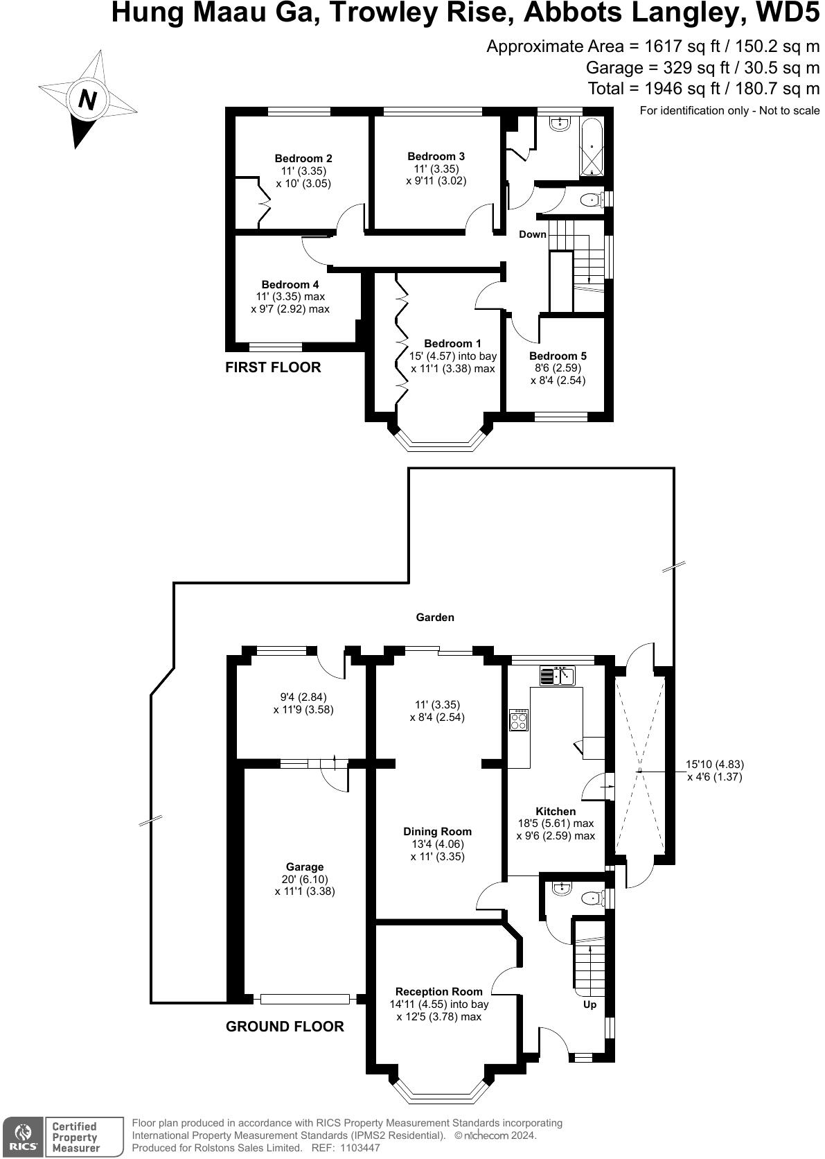
- Five bedrooms across two storeys, approximately 1,946 sq ft
- South-facing private garden with patio and established planting
- Driveway parking plus integral garage, garage suitable for conversion
- Large plot with potential to extend subject to permissions
- Needs renovation throughout; dated fixtures and décor
- Single family bathroom plus separate WC for five bedrooms
- EPC Rating D; cavity walls likely lack insulation
- Council Tax Band F — higher annual local charges
Spacious five-bedroom detached home in Abbots Langley offering nearly 1,950 sq ft of adaptable living across two storeys. The property sits on a large plot with a south-facing garden, driveway and garage, and presents strong scope for extension or internal reconfiguration to create contemporary family living.
The house currently requires modernisation: original mid‑20th century features remain, and many rooms need updating. There is one family bathroom plus a separate WC, cavity walls likely without insulation and an EPC rating of D. Council Tax Band F makes running costs higher than average.
Good transport links and local schools add practical appeal — Kings Langley station and the M25 are nearby, while highly rated secondary schools are within reach. This will suit a growing family seeking long‑term potential or a buyer prepared to refurbish for value uplift.
3 bedroom detached house for sale in Gallows Hill, Kings Langley, Hertfordshire, WD4 — £845,000 • 3 bed • 2 bath • 1332 ft²
6 bedroom detached house for sale in Abbots Road, Abbots Langley, WD5 — £1,500,000 • 6 bed • 3 bath • 3570 ft²
5 bedroom detached house for sale in Dairy Way, Abbots Langley, Hertfordshire, WD5 — £1,250,000 • 5 bed • 4 bath • 3184 ft²
5 bedroom detached house for sale in Abbots Road, Watford, Abbots Langley, WD5 — £1,750,000 • 5 bed • 4 bath • 4894 ft²
4 bedroom semi-detached house for sale in Popes Road,Abbots Langley,WD5 0EY, WD5 — £700,000 • 4 bed • 2 bath • 1404 ft²
4 bedroom end of terrace house for sale in Mallard Road, Abbots Langley, Hertfordshire, WD5 — £625,000 • 4 bed • 2 bath • 1044 ft²






































































