Large sunny garden, garage and renovation potential in highly desirable Formby.
Chain-free three-bedroom semi-detached house on a generous plot
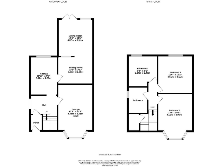
Set on a generous plot in sought-after Formby, this three-bedroom semi-detached house offers clear scope to create a comfortable family home. The layout includes two reception rooms plus an extended sitting room, a kitchen, and a single family bathroom upstairs. The property is chain-free and benefits from off-road parking and a garage.
The rear garden is a standout feature — larger than average with a sunny aspect and mature trees — ideal for children, entertaining or further landscaping. Internally the home retains period bay-window character and standard ceiling heights, but much of the interior requires modernisation and updating to meet contemporary expectations.
Practical information: the house is freehold, council tax band D, mains gas central heating with boiler and radiators, double glazing (install date unknown), and an approximate internal area of 884 sq ft. There is no flood risk and the neighbourhood records very low crime and high local affluence, close to good primary and secondary schools.
This property suits a family seeking space and long-term potential, or a buyer prepared to renovate to add value. Serious buyers should budget for modernisation works and check services and glazing history during survey and conveyancing.
3 bedroom semi-detached house for sale in Freshfield Road, Formby, Liverpool, L37 — £400,000 • 3 bed • 1 bath • 1516 ft²
3 bedroom semi-detached house for sale in Burlington Avenue, Formby, Liverpool, Merseyside, L37 — £220,000 • 3 bed • 1 bath • 1018 ft²
3 bedroom semi-detached house for sale in Alt Road, Formby, Liverpool, Merseyside, L37 — £260,000 • 3 bed • 1 bath • 655 ft²
3 bedroom semi-detached house for sale in Smithy Green, Formby, Liverpool, L37 — £220,000 • 3 bed • 1 bath • 1100 ft²
3 bedroom detached house for sale in Cable Street, Formby, Liverpool, Merseyside, L37 — £325,000 • 3 bed • 2 bath • 1102 ft²
3 bedroom semi-detached house for sale in Royal Crescent, Formby, Liverpool, L37 — £230,000 • 3 bed • 1 bath • 1008 ft²


































































































